清水江南别墅整装

设计说·第275期 | 589㎡新中式,东方典雅!

发布时间:2024-11-03

图片

乐大姐

FM104.8《家在苏州--乐大姐说装修》栏目特邀嘉宾

多次受邀成为院校家居授课讲师;
从事单位荣获装修装饰行业协会副会长称号;
98年至今,
为万千家庭打造幸福家居的同时,也相互成为了好朋友。
任何与装修有关的问题,欢迎您添加乐大姐微信:13390895455
乐大姐会为您做一对一解答。



项目地点 / 科技城幸福未来城(双拼)

项目面积 / 589㎡
项目风格 / 新中式
项目性质 / 别墅整装
项目状态/ 已交付

图片


每一套作品,都是私人定制



图片


新中式风格,汲取中国千年文化之精华,又与现代审美趋势相融合,打造出既大气又不失细腻的空间。它以厚重的底蕴和轻盈的触感,避免了沉闷与压抑,赋予每个角落雅致与和谐。比如本案这套589㎡新中式设计,初见便能触动人心,令人难以忘怀其独特的东方韵味图片~~

图片

图片

图片

图片

图片

图片

图片

图片

图片

图片

图片

图片

图片

图片

图片

图片

图片

图片

图片

图片

图片

图片

图片

图片

图片

图片

图片

图片

图片

图片

图片

图片

图片

图片

图片

图片

图片

图片

图片

图片

图片

图片

图片

图片

图片

图片

图片

图片

图片

图片

图片

图片

图片

图片

图片

图片

图片

图片

图片

图片

图片

图片

图片

图片

图片

图片

图片

图片

图片

图片

图片

图片

图片

图片


 平面方案 


图片
地下室原始户型图
图片
地下室改造后户型图
图片
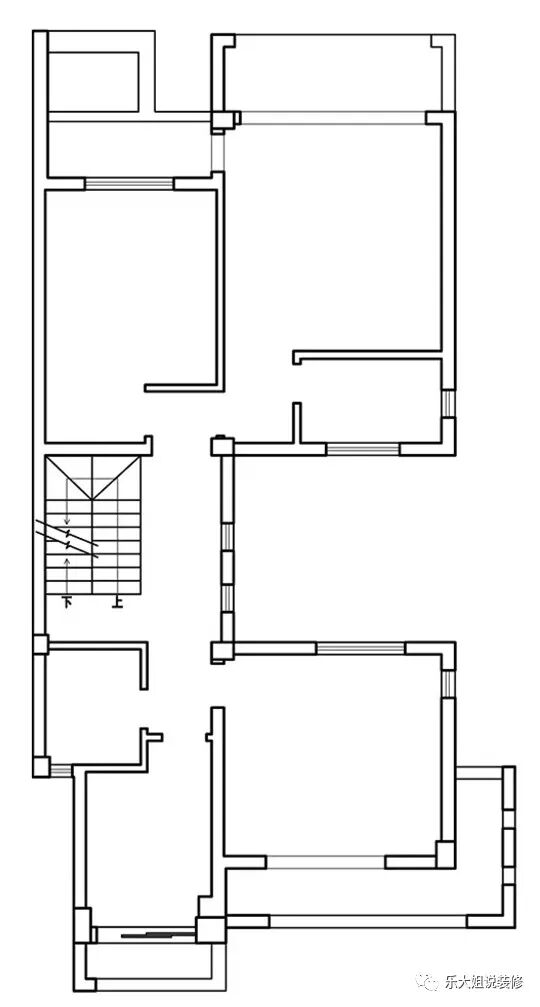
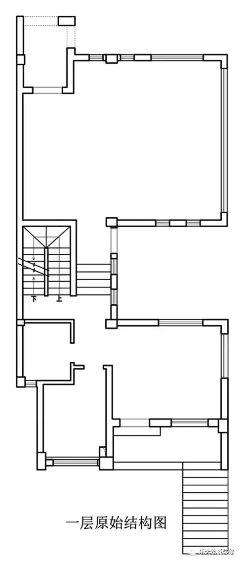
一层原始户型图
图片
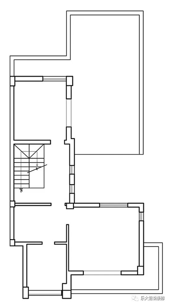
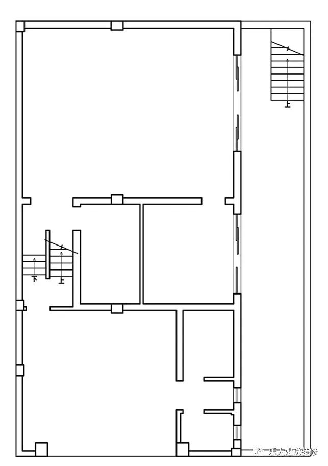
一层改造后户型图
图片
二层原始户型图
图片
二层改造后户型图
图片
三层原始户型图

图片

三层改造后户型图



 全景图 


图片
点击左下方“阅读原文”,即可在线免费看本案例全景图(360°)。



图片

本案这套双拼别墅业主买来养老住的,因此对它的功能布局、装修设计业主有很多自己的想法,并向乐大姐团队提出以下要求:卧室必须够多、够大,这样冬天和夏天可以换着朝向睡(本案共有6间卧室);卧室床的朝向必须根据他定的来,比如二楼次卧、三楼主卧的床要背靠卧室门的这面墙上;沙发必须靠墙(客厅开间有 7.7米),且沙发&电视背景一定要用石材……那么,设计该如何在这么多重局限中寻求突破呢?


 满意度100% 


图片
▲ 乐大姐团队和幸福未来城业主合影留念
拍摄现场,在和乐大姐、苏州电视台《第一时间》拍摄老师等聊天的过程中,男业主说“说到装修,八年前我们装了一套平层,花了八十万入住,这个代价在当时可不小呢!但是现在我们装的这套别墅的装修单价居然比那套平层还要低一些,平层当时找的半包,很多事情都要亲力亲为自己跑,根本没有乐大姐团这么到位的服务,也没什么效果。这也是为什么我认识这么多装修公司,却找你们乐大姐团队装修,关注这么久被你们先进的团队精神吸引了,每个人都是做实事的,很实在!我有个邻居他家和我们家户型一样的,但他家装得就没我家通透,户型结构规划得不行,而且全屋大理石,看上去特别闷。他们来我家看过回家后父子俩就开始互相埋怨了,觉得效果和我家没法比。我们亲家,前两年刚装了一套别墅,我觉得他家也不如我们家漂亮。这是我们第四次装修了,前三次都是半包,材料都买的品牌的,钱没少花,可人却累得很。这一次装修是最省心,也是最满意的!我儿子儿媳虽然几乎没参与,但对结果也是相当满意的!以后如果还要装修,乐大姐团队是我们唯一的选择!


图片

图片

▲ 乐大姐正在拍摄苏州电视台《第一时间》解析样板房装修知识点

女业主说对于这次装修,我要给你们打100分!你们选的软装,每一件我都觉得特别美!装完后我在老家的妹妹也来看过,她走到哪里说哪里漂亮,满口称赞!我们家小孙女,看完后更是不想走了,想立刻搬家!


图片
▲ 乐大姐正在拍摄苏州电视台《第一时间》解析样板房装修知识点
图片
▲ 竣工验收单上业主的评语
图片

图片

▲ 幸福未来城业主夫妻设宴宴请乐大姐团队贺竣工之喜



有感:



本案男业主作为一个做了四十多年土建工程的专业人士,选择乐大姐团队装修是想过程中自己少操心,更重要的是看中了我们的设计,落地后的美感。不过,毕竟有几十年的工程经验,男业主对装修有一些自己的执念,一定要坚持的理念,比如说一定要电视背景和沙发背景,一定要大理石,一定要实木家具……所以,这次合作就是一种碰撞、一种迁就,因为既要考虑业主的喜好,还要考虑业主找我们的初心,最后的结局皆大欢喜!

——by乐大姐

图片



END



往期案例回顾

设计说·第274期 | 169㎡极简高级灰,简而不凡!

图片

设计说·第273期 | 142㎡现代原木,自然清雅!

图片

设计说·第272期 | 263㎡东方之门,欧式极致奢华!

图片

设计说·第271期 | 这套221㎡叠墅的客餐厅,竟然在地下!

图片

设计说·第270期 | 360㎡新中式,老别墅的优雅新生!

图片

设计说·第269期 | 580㎡复古美式,我和你的慢时光!(下)

图片

设计说·第268期 | 349㎡无锡联排别墅,邂逅多维空间!

图片

设计说·第267期 | 503㎡新中式,拾韵江南,雅韵东方!

图片


图片



如果您觉得乐大姐说的内容很有价值

欢迎分享转发至您的朋友圈

让更多的朋友都能轻松装修,自在生活!


当然,您也可以添加乐大姐微信号13390895455

或扫描下方的二维码

说出您的装修难题、让乐大姐为您答疑解惑

不管您是装修完工了

还是即将装修的

或者正在装修的

乐大姐一定知无不言,言无不尽


图片


图片
在看是一种鼓励|分享是最好支持
点击右下角 写留言 发表你的心声

我们期待与您的交流

长按二维码添加乐大姐微信号

装修不烦 大姐来谈