清水江南别墅整装

设计说·第279期 | 197㎡大平层,不一样的现代简约!

发布时间:2024-12-05

图片

乐大姐

FM104.8《家在苏州--乐大姐说装修》栏目特邀嘉宾

多次受邀成为院校家居授课讲师;
从事单位荣获装修装饰行业协会副会长称号;
98年至今,
为万千家庭打造幸福家居的同时,也相互成为了好朋友。
任何与装修有关的问题,欢迎您添加乐大姐微信:13390895455
乐大姐会为您做一对一解答。


项目地点 / 石湖华城

项目面积 / 197㎡
项目风格 / 现代
项目性质 / 全屋整装
项目状态/ 已交付


图片


每一套作品,都是私人定制



图片


当代社会,随着越来越多的业主喜欢并选择做现代简约或极简风格的装修,很多时候会给人一种千篇一律、人云亦云的感觉,然而本案这套197㎡的大平层却不然。乐大姐团队在打造一个清爽、宜居、有质感的居家空间的同时,十分注重个性化的营造,特别加入了弧线、艺术漆等元素,让空间变得轻盈而随性,给人耳目一新的感觉图片~~

图片

图片

图片

图片

图片

图片

图片

图片

图片

图片

图片

图片

图片

图片

图片

图片

图片

图片

图片

图片

图片

图片

图片

图片

图片

图片

图片

图片

图片

图片

图片

图片

图片

图片

图片

图片

图片

图片

图片

图片

图片

图片


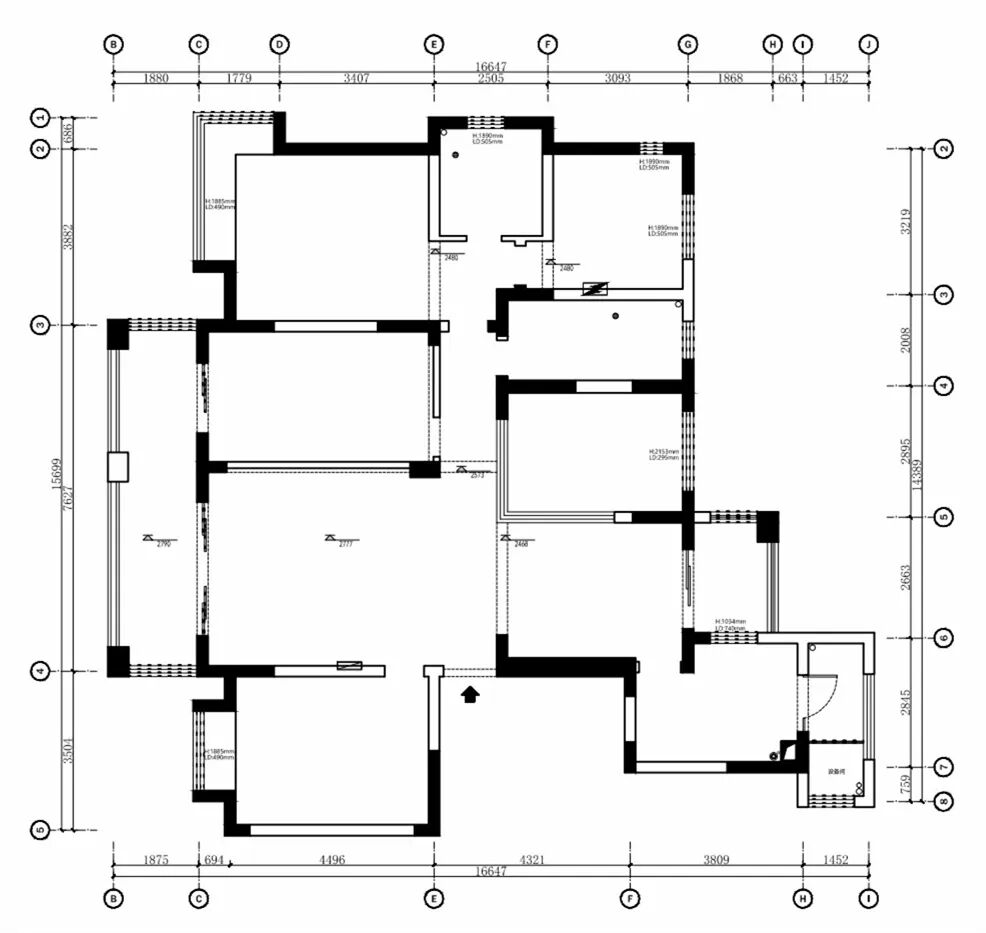
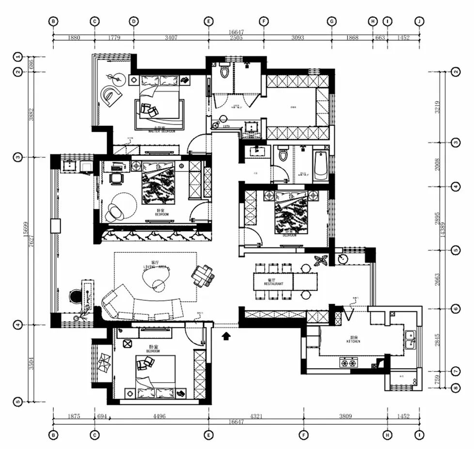
 平面方案 


图片
原始户型图
图片
改造后户型图


 全景图 


图片

点击左下方“阅读原文”,即可在线免费看本案例全景图(360°)。

https://vr.justeasy.cn/view/r91675q83d366v81-1679204769.html




图片

本案这套大平层属于改善型住房,业主不仅打算将其作为一家人以后常住的居所,未来两口子的养老也会在这,故对这套房的装修业主是有着长远的打算。也因此,我们的设计不止要着眼于当下,还要考虑到业主未来二三十年的需求。


风格上,业主对设计没有什么概念,不过可以明确的是喜欢简约时尚、好打理的家, 所以乐大姐团队为其量身定制了这套灰色调的极简风,同时穿插了十分特别的弧形设计,整个家显得既清爽大气又柔和温馨,业主看了后十分喜欢。


 满意度100% 


图片
▲ 乐大姐团队和石湖华城业主合影留念
拍摄现场,在和乐大姐、苏州电视台《第一时间》拍摄老师等聊天的过程中,男业主说“这次装修我是完全信任托付给乐大姐团队的,当初就是冲着乐大姐团队的口碑去的,第一次见面沟通就直接签约了。关于设计方面我也是完全尊重专业,事实证明,我的信任是对的,装修的结果我们一家人都很满意。我们现在住的房子之前是找朋友帮忙装的,没有这么系统的设计,更没有设计老师一步一步地跟进效果,虽然装的也还算行吧,但跟这次装修那是完全没法比的。这套房子我们是要一直住下去的,非常重视,所以我觉得只有乐大姐团队才能让我放心托付。果不其然,不论是过程还是最终的效果都让我们很是惊喜和感动!”


图片
▲ 乐大姐正在拍摄苏州电视台《第一时间》解析样板房装修知识点
男业主接着说道“所以,这次装修我要感谢乐大姐团队每一位为我家辛勤付出的人,我跟家里人几乎全程都不用操心的。刚开工的时候我还来过现场几次,一次次都让我觉得非常安心,后面除了必要的验收我都不来现场了(我老婆及孩子们整个装修过程就没有参与过),只需要等着最后的竣工就行了,可以说是甩手掌柜,名副其实的省心!能认识乐大姐团队,真的让我感到开心和荣幸!


图片
▲ 乐大姐正在拍摄苏州电视台《第一时间》解析样板房装修知识点
图片
▲ 竣工验收单上业主的评语
图片
▲ 石湖华城业主设宴宴请乐大姐团队贺竣工之喜



有感:



本案男业主当初来乐大姐团队沟通时就表示:他自己对装修不太懂,对于设计风格更是没有概念,两个孩子还小不参与装修,老婆也不太参与装修,说一家人就希望住简单大方的房子。这次到现场跟他相见,他对自己的装修过程及结果一直赞不绝口,我很是欣慰。乐大姐团队这么多年来一直坚持设计的超前性,不止要满足业主一家人当下的生活需求,更要考虑到未来几十年可能会产生的新需求,所以才会让那么多业主住上超过预期的家,才会有那么多样板房可以拍摄,那么多业主举办竣工酒,这就是乐大姐团队存在的意义,更是乐大姐团队存在的价值。

——by乐大姐

图片



END



往期案例回顾

设计说·第278期 | 235㎡现代简约,宁静暖屋!

图片

设计说·第277期 | 858㎡独栋别墅,典雅奢华的法式庄园!

图片

设计说·第276期 | 在243㎡下叠墅里,尽享意式雅奢生活!

图片

设计说·第275期 | 589㎡新中式,东方典雅!

图片

设计说·第274期 | 169㎡极简高级灰,简而不凡!

图片

设计说·第273期 | 142㎡现代原木,自然清雅!

图片

设计说·第272期 | 263㎡东方之门,欧式极致奢华!

图片

设计说·第271期 | 这套221㎡叠墅的客餐厅,竟然在地下!

图片


图片



如果您觉得乐大姐说的内容很有价值

欢迎分享转发至您的朋友圈

让更多的朋友都能轻松装修,自在生活!


当然,您也可以添加乐大姐微信号13390895455

或扫描下方的二维码

说出您的装修难题、让乐大姐为您答疑解惑

不管您是装修完工了

还是即将装修的

或者正在装修的

乐大姐一定知无不言,言无不尽


图片


图片
在看是一种鼓励|分享是最好支持
点击右下角 写留言 发表你的心声

我们期待与您的交流 


长按二维码添加乐大姐微信号

装修不烦 大姐来谈