清水江南别墅整装

设计说·第280期 | 576㎡独栋别墅,尽显东方气度!

发布时间:2024-12-06

图片

乐大姐

FM104.8《家在苏州--乐大姐说装修》栏目特邀嘉宾


多次受邀成为院校家居授课讲师;
从事单位荣获装修装饰行业协会副会长称号;
98年至今,
为万千家庭打造幸福家居的同时,也相互成为了好朋友。
任何与装修有关的问题,欢迎您添加乐大姐微信:13390895455
乐大姐会为您做一对一解答。


项目地点:吴中区鸿运家园(独栋)

项目面积:576㎡

项目风格:现代中式

项目性质:别墅整装

项目状态:正在施工



每一套作品,都是私人定制





写在前面的话

The Words Written In Front




本案这套独栋别墅是业主给家中老人精心准备的养老居所,平时也会带孩子回来住住,整体以老人的需求和生活习惯为主,所以适老化是设计的重点之一,也因此对设计及施工的要求很高,最终找到关注已久的乐大姐团为其量身定制。

风格上,选择了老人钟爱的中式,同时加入现代元素进行调和,从而打造出一套既古典又时尚的现代中式。效果出来后,一家三代人看了都非常喜欢,爱不释手!





图片


图片


图片


图片


本案的空间设计传承了东方风韵,端庄、典雅、大气,又融合了时下流行的现代主义理念,古今相继,从容自得,为这座养老别墅注入了独特的文化气质和非凡的大宅气度


非凡的大宅气度,从步入客厅的那一刻就铺展开来。设计老师根据一层原结构虽宽大却繁杂、分散的特点,巧妙地进行了空间重组,并通过中轴对称、借景、对景、框景等设计手法,形成层层递进、移步换景的中式大宅布局,既庄重又恢弘。

图片
图片

图片


以木饰面和浅灰色艺术漆为主的一楼公区

铺陈出温润柔和的家居氛围,同时又保留了贵雅、去除繁丽,让空间更具深度与人文气息。红木家具以其丰富的内涵、高雅的格调,营造出大气朗阔、古雅俊逸的空间气质美学。


而丝绒、花格、拉丝古铜等细节的点缀,则增添了一抹静谧与优雅,让人不由自主地沉醉于这份独有的闲暇与安宁之中。


图片

图片


电视背景墙采用了岩板材质,宛如一幅生动的水墨山水画,层峦叠嶂,邀人穿越时空,缓缓走入山水之间,体验东方自然的宁静与和谐。


无主灯作为主要照明,错落有致地散布于空间之中;中式吊灯则以其独特的造型,成为空间的装饰物。光影交错,虚实相生,极富层次趣味,让人深刻感受到艺术之美。


图片

图片


从古至今,门第之礼的讲究深扎于中国传统礼仪之中。


推开大门,一幅“锦鲤双嬉图”映入眼帘,传达出灵动和谐的自然意趣,寓意富贵吉祥。红木家具对称摆放其间,为空间增添了一份庄重、大气,彰显了东方美学的典雅与尊贵。


图片

图片
图片

以月牙门相隔的客餐厅之间,形成视觉的联动。隔而不断,是典型的东方审美,作为一种含蓄的呈现方式。镂空设计通过对隔与透、藏与漏、虚与实恰到好处地掌控,让空间聚合的同时又富有连续性,将东方的情怀缱绻其中。


此外,设计还在墙上开了一扇花窗,斑驳的光影和朦胧的景致从海棠花窗棂中透漏而出,若隐若现,含蓄雅致。


图片

图片


楼梯空间亦兼具审美意趣,山石与苍松在月光灯的笼罩下映出婆娑疏影,诠释着空静深微的禅宗美学。





图片


图片


图片


图片


餐厅以经典的赭石色、靛蓝作跳色,打破了灰调与深木色的中正平和,让整个空间瞬间亮眼了许多。在不经意中,撩拨人们的视觉神经,抵制审美疲劳。

餐边柜设计稳重而富有节奏,在强调现代感与艺术感的同时,更是承载着一种多元文化的创意革新与贯通融合。


图片

图片

图片


人字形顶,以古建斜屋顶为灵感,通过简洁明朗的形式,将面与线进行交叉、重叠,创造出独属于东方的美感和韵致。





图片


图片


图片


厨房采用U字型布局,打造了高效的洄游动线,使烹饪过程更加便捷。灶台区域特别设计了灯带照明,为做饭提供了充足的光线。

定制橱柜用色沉稳大气,白色系列墙砖纯净清雅,一深一浅间,更好地丰富了空间的层次。


图片
图片





图片


图片


图片


图片


茶室,以红木家具和深木色酿造出细腻温柔、雅正平和的氛围。配以中式的茶壶、书籍、摆件、挂画,丰盈了这份古典的况味。





图片


图片


图片


图片


这是业主父母的主卧套房,设置在一楼,日常进出更为方便。除了常规的衣帽间、卫生间配置外,还特别配备了保姆房,以便在老人年纪渐长时提供更便捷的照顾和陪伴。


图片

图片

图片


整体设计不以繁为美,恰到好处的线条,极具东方感的设色,加之和煦的灯光,营造出悠远空灵的中式意境,让人忘却外界的喧嚣。细微之处,金属线条的点缀,低调而不失品质。

起卧此间,可于世俗生活樊笼之外,品味东方,慢话时光。


图片

图片


老人房卫生间集洗漱、如厕、淋浴、泡澡四大功能于一体,提供了全方位的生活享受。特别是浴缸的设置,不仅考虑到了未来养老的需求,提供更高的安全性,还能有效缓解身体的酸痛和疲劳,带来更加舒适放松的沐浴体验。


适老化设计,不止于此。墙面后期会安装护栏,以确保使用过程中的稳定性和安全性。


图片
图片





图片


图片


图片


图片


二楼主卧套房,是业主夫妻的私密空间。设计以清浅淡雅的传统缟白/浅灰为主调,同时点缀以墨色、朱红、雅灰、湛蓝几种古韵色调,古雅秀逸的气质自空间的细节中悄然生发,意境悠远,一室清华。


图片

图片

图片


吊顶设计,别出心裁,经典的海棠花造型致敬东方美学,将古典的诗意氛围蔓延至每一个角落,成为整个空间的亮点






图片


图片


图片


图片


二楼的两个次卧套房,都是孙辈的房间,因此不同于其他空间的中式基调,采取了更受年轻人喜欢的现代简约风。

室内大面积的高级灰铺陈开来,为空间注入了沉静而抚慰人心的力量。干净利落的线条穿插其间,拉伸视觉感的同时,赋予空间简洁又不失大气的气场。家具陈设选取细腻的布艺、皮革材质,散发柔和天然的美学气质,让居者感受到生活的温柔与美好


图片

图片


顶面的处理,很是别具一格。因其上存在承重梁,不能拆除,故设计时通过层次吊顶将梁体和中央空调隐藏了起来,这样既解决了结构问题,又增添了空间的美感





图片


图片


图片


图片


图片


另一个孙辈房间,同样以黑白灰为主调,构建干净、雅致的空间气质,辅以温润柔和的材质质地、简洁凝练的线性关系,营造出静谧优雅且舒适的睡眠氛围。


图片

图片


房门的正反双色处理,巧妙地连接了不同区域的装饰风格,使得整个家居空间在保持个性的同时,也展现出统一和谐的美感


图片

图片


房内配备了独立的衣帽间和卫生间,确保了高度的居住舒适性和功能性。三分离的布局以及简洁明快的配色,彰显出硬朗而大气的气质。


图片

图片





图片


图片


起居室作为二楼的交汇空间,以电竞为主题,体现了父母给予孩子青春热爱的最大支持。线条与灯光的碰撞,让孩子们在交错的空间场景里,感受到更强烈、动感的科技与活力


平面方案

Flat Plan




图片

一楼原始户型图

图片

一楼改造后户型图

图片

二楼原始户型图

图片

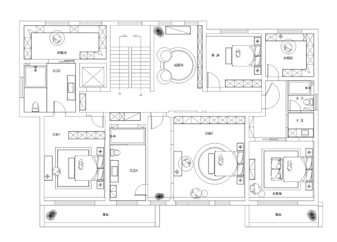
二楼改造后户型图

图片

三楼原始户型图

图片

楼改造后户型图


 本案一楼原始结构比较复杂,空间被大量非承重实墙分割成若干小间,不够大气规整。设计时将非必要的非承重墙体全部拆除,然后对功能进行重新布局,把动区(门厅、客厅、餐厅)全部规划在了朝南区域,并采取开放式设计,如此不仅营造出大宅才有的空间感,还最大限度地保持了公区的采光与通风。而静区(老人房)则设置在了远离马路的西南方位,且配备了保姆房、护栏、电梯等适老化设计,由此可见设计的用心。

②二楼根据业主一家的居住需求,规划了3间套房、1间客房和1间起居室,功能配置十分齐全,动线流畅,同时兼具私密性。

③整个三楼被设计成了私人会所,包含了棋牌室、台球室、健身区、休闲区等功能,极大丰富了业主一家人的生活。



全景图

Panorama




图片

点击左下方“阅读原文”,即可在线免费看本案例全景图(360°)。


END



往期案例回顾

设计说·第279期 | 197㎡大平层,不一样的现代简约!

图片

设计说·第278期 | 235㎡现代简约,宁静暖屋!

图片

设计说·第277期 | 858㎡独栋别墅,典雅奢华的法式庄园!

图片

设计说·第276期 | 在243㎡下叠墅里,尽享意式雅奢生活!

图片

设计说·第275期 | 589㎡新中式,东方典雅!

图片

设计说·第274期 | 169㎡极简高级灰,简而不凡!

图片

设计说·第273期 | 142㎡现代原木,自然清雅!

图片

设计说·第272期 | 263㎡东方之门,欧式极致奢华!

图片


图片



如果您觉得乐大姐说的内容很有价值

欢迎分享转发至您的朋友圈

让更多的朋友都能轻松装修,自在生活!


当然,您也可以添加乐大姐微信号13390895455

或扫描下方的二维码

说出您的装修难题、让乐大姐为您答疑解惑

不管您是装修完工了

还是即将装修的

或者正在装修的

乐大姐一定知无不言,言无不尽


图片


图片
在看是一种鼓励|分享是最好支持
点击右下角 写留言 发表你的心声

我们期待与您的交流 

长按二维码添加乐大姐微信号

装修不烦 大姐来谈