清水江南别墅整装

设计说·第283期 | 360㎡下叠墅的奢华蜕变

发布时间:2025-02-07

图片

乐大姐

FM104.8《家在苏州--乐大姐说装修》栏目特邀嘉宾

多次受邀成为院校家居授课讲师;
从事单位荣获装修装饰行业协会副会长称号;
1998年至今,
为万千家庭打造幸福家居的同时,也相互成为了好朋友。
任何与装修有关的问题,欢迎您添加乐大姐微信:13390895455
乐大姐会为您做一对一解答。


项目地点 / 地燕风华(下叠)

项目面积 / 地上145㎡精装+地下215.1㎡毛坯
项目风格 / 意式轻奢
项目性质 / 别墅整装
项目状态/ 已交付


图片


每一套作品,都是私人定制



图片


隐匿于地面之下的地下室,往往因其采光差、通风不好被不少业主视为鸡肋空间。然而,令很多人意想不到的是,匠心独运的设计却可以赋予它新生,使之成为光与影、艺术与奢华并蓄的奢华隐秘之境。比如本案这套360㎡下叠墅的地下室,竟然被打造成了休闲度假的天堂,在这里不仅可以打台球、跑步,还能攀岩、观影、品茗、打牌……,今天就跟乐大姐一起到现场看一看吧图片~~

图片
图片
图片
图片
图片
图片
图片
图片
图片
图片

图片

图片

图片

图片
图片
图片
图片

图片

图片
图片
图片
图片
图片

图片

图片
图片
图片
图片
图片
图片
图片
图片
图片
图片
图片
图片
图片
图片
图片
图片
图片

图片

图片

图片

图片

图片

图片

图片

图片

图片

图片

图片

图片

图片

图片

图片

图片

图片

图片

图片

图片

图片

图片

图片

图片

图片

图片

图片

图片

图片

图片

图片

图片

图片


 平面方案 


图片

负二层原始户型图

图片

负二层改造后户型图

图片

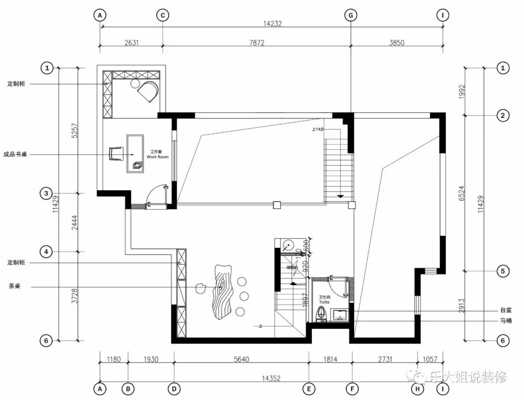
负一层原始户型图

图片

负一层改造后户型图

图片

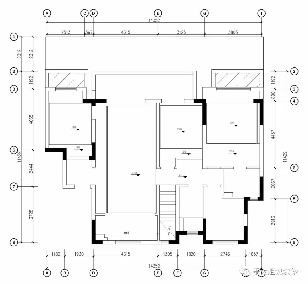
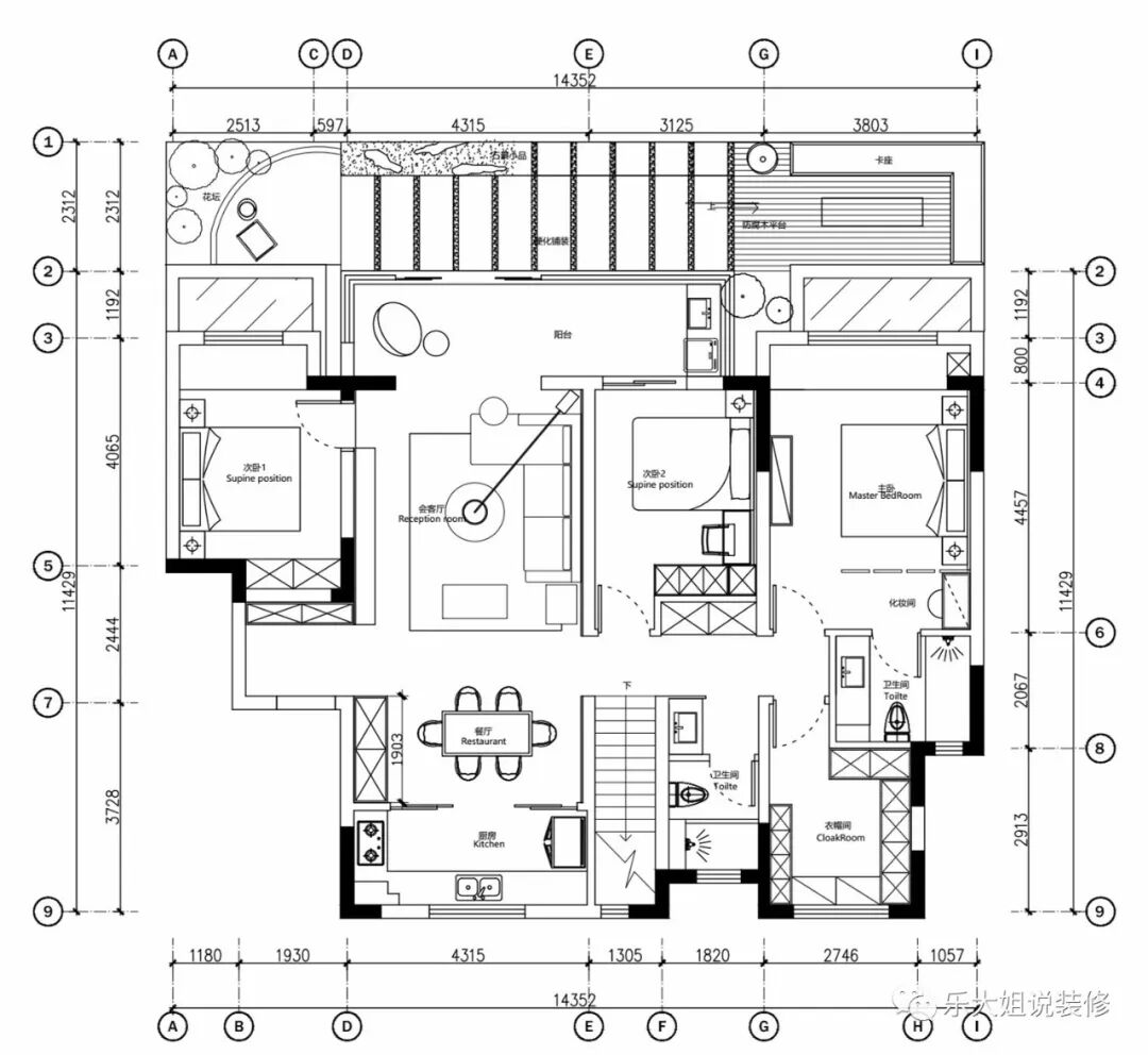
一层原始户型图

图片
一层改造后户型图

 全景图 


图片
点击左下方“阅读原文”,即可在线免费看本案例全景图(360°)。
https://vr.justeasy.cn/view/mb16d72g61686529-1680147408.html



图片

本案这套下叠墅,虽说是精装房,但仅一楼是精装,地下两层都是毛坯,而业主买这套房子主要是计划以后养老住的,所以对装修的功能和品质要求非常高,原开发商做的精装根本无法达到他们的标准,为此他们找到了乐大姐团队一是完成地面一楼的软装搭配,二是想将地下的空间利用好。


风格上,本案女业主喜欢轻奢的感觉,而原精装现场的门和地板颜色都偏深,所以乐大姐团队为业主一家量身定制了这套低调又张扬的意式轻奢风。


 满意度100% 


图片

▲ 乐大姐团队和金地燕风华业主合影留念

拍摄现场,在和乐大姐、苏州电视台《第一时间》拍摄老师等聊天的过程中,女业主说“这次装修,可以说是既省心又满意。整个过程我老公几乎没参与,我自己呢,也是不怎么到现场的。不过,到后期效果慢慢呈现的时候,我激动得几乎每天都到现场看变化,有时候一天来好几趟呢,我们家装修我是越看越喜欢。我老公也是起劲得很,装修还没有完全结束,他就开始约朋友来现场打麻将、打台球了,朋友还将小孩子带到现场攀岩,来的人都说我家太好看了!我老公原来跟他的朋友圈每周都要在外面打麻将、打台球,一年下来要用掉上万块,关键外面环境还不好,接下来除了必要的出差,估计我老公是不愿意往外跑了,在家里就能打了。”

图片

▲ 乐大姐正在拍摄苏州电视台《第一时间》解析样板房装修知识点

女业主接着说道“我们装修时,小区里蛮多邻居也在装,我去看过好几家的装修现场,跟我们家一样户型的邻居们几乎都把地下共享空间搭掉了,面积是多了很多,但走进去既闷又压抑,难受得很,效果跟我家实在没法比。很多邻居来我家参观,都对我家的装修羡慕得不得了!有的邻居看了我家的效果回去后,以样学样式地模仿。还有邻居看完我家后,把自己家刚刚装好的门及门套都拆换掉了。之前有一次,我们小区管家还联系我说有邻居想来我家参观。所以,我觉得我们家是最漂亮的。当初我跟我老公就是冲着乐大姐团队的效果和服务选择的,事实证明我们的选择非常正确,乐大姐团队真的是每一步都落在了实处。以后除了工作及必要性的出门,其它时间我只想待在家里。”

图片

▲ 乐大姐正在拍摄苏州电视台《第一时间》解析样板房装修知识点

图片

▲ 竣工验收单上业主的评语

图片

▲ 金地燕风华业主夫妻设宴宴请乐大姐团队贺竣工之喜



有感:



地下室的装修常常令很多业主头疼,因为规划的功能慢慢地就不用了,甚至最后变成了鸡肋的杂物间。然而,地下室如果规划得好,却可以成为一家人最喜欢待的地方。比如就像本案业主说的,很多邻居家贪面积大,都将层高4米多的地下室搭成了两层,却没有考虑到地下采光差和只有2米的层高带来的压抑感。这种地下室一般都没人想待,慢慢就成了杂物堆,也成了装修中难以释怀的遗憾!而本案的地下室,业主说所有来过现场的人都觉得好看,邻居们更是羡慕得不得了!这就是,好的设计决定生活的品质!

——by乐大姐

图片



END



往期案例回顾

设计说·第282期 | 131㎡极简黑白,静谧纯粹!

图片

设计说·第281期 | 858㎡法式混搭独栋,优雅绽放!(下)

图片

设计说·第280期 | 576㎡独栋别墅,尽显东方气度!

图片

设计说·第279期 | 197㎡大平层,不一样的现代简约!

图片

设计说·第278期 | 235㎡现代简约,宁静暖屋!

图片

设计说·第277期 | 858㎡独栋别墅,典雅奢华的法式庄园!(上)

图片

设计说·第276期 | 在243㎡下叠墅里,尽享意式雅奢生活!

图片

设计说·第275期 | 589㎡新中式,东方典雅!

图片


图片



如果您觉得乐大姐说的内容很有价值

欢迎分享转发至您的朋友圈

让更多的朋友都能轻松装修,自在生活!


当然,您也可以添加乐大姐微信号13390895455

或扫描下方的二维码

说出您的装修难题、让乐大姐为您答疑解惑

不管您是装修完工了

还是即将装修的

或者正在装修的

乐大姐一定知无不言,言无不尽


图片


图片
在看是一种鼓励|分享是最好支持
点击右下角 写留言 发表你的心声

我们期待与您的交流 

长按二维码添加乐大姐微信号

装修不烦 大姐来谈