清水江南别墅整装

设计说·第287期 | 604㎡新中式联排,古韵典雅!

发布时间:2025-02-09

图片

乐大姐

FM104.8《家在苏州--乐大姐说装修》栏目特邀嘉宾

多次受邀成为院校家居授课讲师;
从事单位荣获装修装饰行业协会副会长称号;
1998年至今,
为万千家庭打造幸福家居的同时,也相互成为了好朋友。
任何与装修有关的问题,欢迎您添加乐大姐微信:13390895455
乐大姐会为您做一对一解答。


Feb.6

287ISSUE

China chic


ENJOY  LIFE
诗与美好
不期而遇

ASPIRATION & ROMANTIC


每一套作品,都是私人定制



项目地址 / 中航樾玺

项目风格 / 新中式
项目面积 / 604㎡
项目性质 / 别墅整装
项目状态 / 正在施工





东方意境,现代解构

Oriental artistic conception

modern deconstruction.



客厅篇 ○
       文化传承  灵魂归属

寻一处  诗意栖居
图片


图片


图片


图片


当代社会中,人们一面坚守文化传承,一面拥抱时代审美,精神追求与物质审美的超越与融合,沉淀出人文与物质的美好。


本案,亦是如此。设计游走在东方与现代的创想之间,巧妙萃取清雅含蓄的中式元素,将东方美学的精髓悄然融入当代生活的每一寸肌理,从而打造出兼具时尚与雅致、简约与诗意双重魅力的生活场景,舒缓了疲惫于都市节奏的身心。


图片


图片


整个空间以干净素雅的硬装作底,电视背景的大理石纹理演绎了一幅自然山水的画卷,简洁的形式、硬朗的线条,不同材质与肌理的碰撞,将行云流水般的东方韵律,与富有张力的现代浪漫感结合。


图片


图片


图片


沙发主背景提取水墨山水画的剪影做不对称式设计,沉静的灰调与趋近自然的木色相互交织,一刚一柔,一冷一暖,勾勒出一幅静谧而深远的画面,呈现出极为浓郁的东方情调。

在这里,时间仿佛被拉长,外界的喧嚣与繁杂被温柔地隔绝在外,只剩下内心的宁静与悠然。


图片


图片


图片


客厅的原建筑是错层式设计,与餐厅之间形成视觉落差,层次丰富,引人入胜。而高挑空间再搭配低矮家具,不止在视觉上巧妙放大了空间尺寸,更营造出一种视野豁然开朗的开阔感,大宅气度扑面而来

沙发区以中轴对称的形式布局,方正空间围合对称结构,完美构筑礼序与和谐之美。




餐厅篇 ○
       人间烟火  最抚人心

寻一处  诗意栖居
图片



图片


图片


图片


图片


圆形餐桌,不仅是味蕾的盛宴之所,更是团圆的象征,凝聚家的温馨与幸福。配色上,增添了暖色的调和,营造出一种舒适惬意的氛围。餐边柜、摆件的选配,为空间注入精神符号,显得沉稳而高级,品位而高雅。


图片


图片


图片


环抱式结构的电梯楼梯,不仅是连通上下空间的工具,东方情韵与现代骨骼的大胆融合同样在此呈现。横平竖直的空间线条与周边的装饰相得益彰,提升了空间视觉层次的同时,赋予居者独特的居住体验。




厨房篇 ○
       打破沉闷  彰显格调

寻一处  诗意栖居
图片



图片


图片


图片


白色台面与黑色岛台、灰色柜门相映,打破沉闷,简约而不失质感,有序中彰显格调,营造出既沉稳大气又功能满满的烹饪空间,让做饭成为享受生活的艺术。




二楼主卧篇 ○
       舒适淡雅,老有所安

寻一处  诗意栖居
图片



图片


图片


图片


图片


二楼主卧套房,是业主夫妻的卧室,其设计的精髓在于营造无与伦比的睡眠体验。每一寸空间、每一份质感、每一处布局与装饰,皆以柔和细腻为基调,为居者打造一方宁静致远的休憩之所。


图片


图片


床头背景的设计,尤为巧妙。

因承重柱的存在,原墙面是凹凸不平的。设计老师并没有选择简单地遮掩,而是顺应其结构,将墙面拉平的同时,依着柱子的尺寸,打造了一个内嵌式的壁龛,群山峻岭的微景观坐落其间,仿佛一幅静谧的山水画卷,将东方的诗意与浪漫悄然融入空间之中,整个卧室充满了自然的“呼吸感”,又兼具实用性。



二楼次卧篇 ○
       一室典雅  写意风流

寻一处  诗意栖居
图片



图片


图片


图片


次卧以黑、深灰、棕色等深色为主,较之公共区域更添几分沉稳内敛。

床头背景的图案呈祥云起伏之态,首位相接,连绵不绝,仿佛一幅流动的画卷。日光透过轻柔的窗帘,自在穿梭间,照见一室典雅,写意风流。




三楼主卧篇 ○
       繁简有序  时尚年轻

寻一处  诗意栖居
图片



图片


图片


图片


三楼主卧是小业主未来的婚房,故以年轻人更喜欢的现代风进行打造。整体以低饱和度色彩为主,让卧室瞬间变得静谧雅致。少量高饱和度装饰的点缀,则为空间注入了时尚与活力。


简洁流畅的线条与柔和的灯光相互交织,以利落的笔触勾勒出层次感,简单舒适,温馨自然。


图片


书房以半开放式的姿态洄游于主卧动线之中,串联起生活的宁静与温馨片段。口袋移门轻巧地隐去了门的固态束缚,消弭了一切阻隔感,让自然光线可以自由穿梭,不同功能间又彼此独立。


图片


图片


盥洗区一台、一镜、一绿枝,呈现出极简的雅致之美,散发出精致舒适而又惬意从容的生活气息。




三楼儿童房篇 ○
       洁净明亮  童趣自然

寻一处  诗意栖居
图片



图片


图片


图片


儿童房是给未来的孙辈准备的,考虑到目前尚无法确定性别,故设计的要点紧紧围绕着“舒适”、“成长性”与“多样性”


清新的木绿搭配纯净白、淡雅灰,宛如春日暖阳洒在嫩绿草地上,很是可爱、温馨,不论男宝还是女宝都很适合。


图片


图片


不失童真的玩具、摆件,则为空间注入欢快因子,趣味盎然。




地下室篇 ○
       悟言一室  快然自足

寻一处  诗意栖居
图片



图片


图片


图片


图片


地下室,更多的是沉淀自我、享受生活所在。


设计老师利用情境氛围的渲染,营造出一个多层次、多功能、互动式的感知体验空间,将城市的冰冷和喧嚣隔离在建筑之外,赋予居者更美好的生活愿景。


图片


图片


图片


茶室,采取开放式布局,经典现代的金属、自然的原木材质与写意古典的陈设造型,于茶香中巧妙糅合,国风雅韵油然而生。

不同造型、材质的座椅随意摆放,更显随性悠然。


图片


图片

图片


图片



拾级而上,踏入错层空间,映入眼帘的是以大色块为主基调的设计,温润的肌理与丰盈细腻的材质相互交织,仿佛在空间中弹奏出一曲跃动的旋律。




写在后面 ○
        诗与美好  不期而遇

寻一处  诗意栖居
图片




本案这套联排别墅,业主买了之后一直空置着,现在考虑到孩子长大了,虽暂未有女朋友,但婚房的筹备却要先提上日程。同时,业主夫妻也计划将这里作为未来的养老居所。因此,房子的装修不仅要满足年轻人的生活需求和审美喜好,还要兼顾到第三代小朋友以及家中长辈的居住空间,充分考虑四代同堂的生活场景与审美需求。

为此,乐大姐团队根据年轻人以及业主夫妻的喜好量身定制了这套现代中式的作品。整体设计以暖色系为主,营造出温馨、舒适的氛围,既符合年轻人对时尚与个性的追求,又契合长辈对传统韵味的向往。



平面方案 ○
       诗与美好  不期而遇

寻一处  诗意栖居
图片



图片

地下室原始户型图

图片

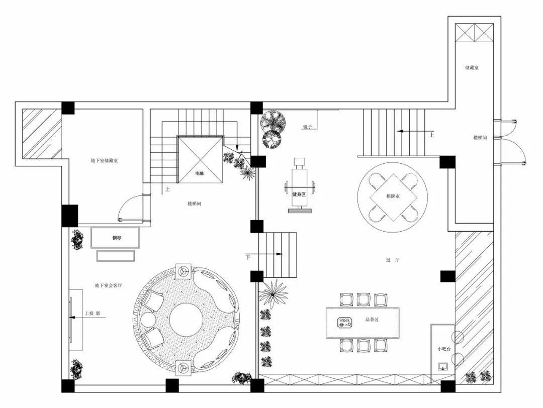
地下室改造后户型图

图片

一楼原始户型图

图片

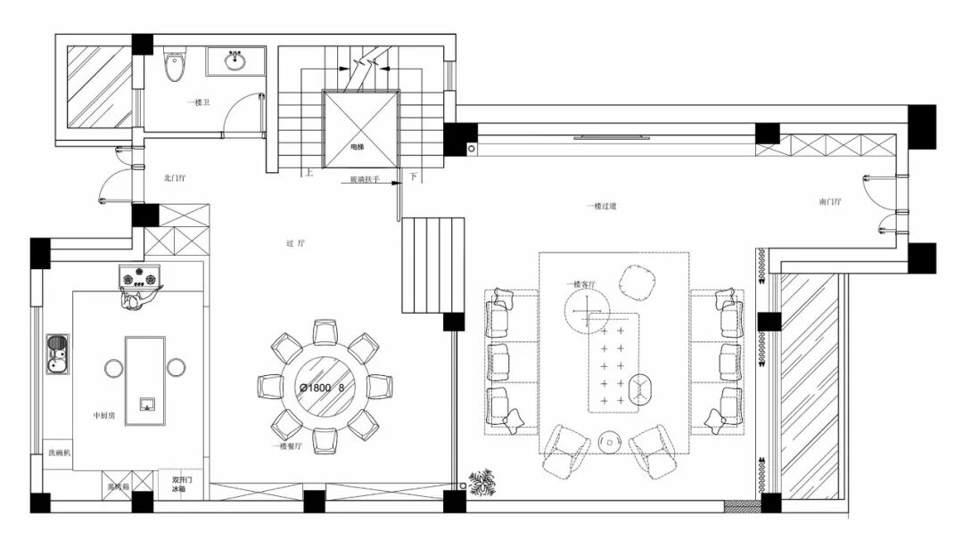
一楼改造后户型图

图片

二楼原始户型图

图片

二楼改造后户型图

图片

三楼原始户型图

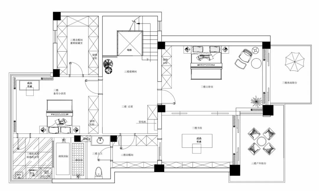
图片

三楼改造后户型图


本案这套联排别墅虽体量大,楼层多,但因其结构较方正,涉及大的户型改造并不是很多。
 调整一楼错层的楼梯踏步位置,如此不仅优化了上下楼的动线,还让楼梯电梯区域看上去更加完整、大气。
 因本案餐厅面积足够大,业主又想在厨房规划个岛台,故将厨房往餐厅扩了部分空间,北入户玄关收纳空间也因此得以增加。
 二楼原本有两个套房,但因平时以业主夫妻居住为主,而他们又提出功能满足的前提下不希望房间过大,为此将南套房一分为二,大部分作为业主夫妻的主卧,剩下的规划成了南次卧;北套房则将内卫调整成外卫,变成了北次卧。同时,预留了充足的空间,用来做衣帽间、储藏间以及洗衣房,极大提升了生活的便利性。
 三楼是儿子未来小家庭的休息空间,所以两个套房都保留了下来。但,同时也预留了充足的空间做洗衣房,避免晾晒时需要上下跑,大大节省了时间与精力。
 将通往地下车库楼梯间的部分墙体敲掉,释放空间,纳入到地下室,打造成健身区与地下入户景观带,从而使鸡肋空间变废为宝。



全景图 ○
       诗与美好  不期而遇

寻一处  诗意栖居
图片




图片

点击左下方阅读原文,即可在线免费看本案例全景图(360°)







END



往期案例回顾

设计说·第286期 | 199㎡精装改造,多巴胺点亮生活!

图片

设计说·第285期 | 210㎡联排,至纯,至简!

图片

设计说·第284期 | 445㎡别墅升级改造,重焕新生!

图片

设计说·第283期 | 360㎡下叠墅的奢华蜕变

图片

设计说·第282期 | 131㎡极简黑白,静谧纯粹!

图片

设计说·第281期 | 858㎡法式混搭独栋,优雅绽放!(下)

图片

设计说·第280期 | 576㎡独栋别墅,尽显东方气度!

图片

设计说·第279期 | 197㎡大平层,不一样的现代简约!

图片



图片





如果您觉得乐大姐说的内容很有价值

欢迎分享转发至您的朋友圈

让更多的朋友都能轻松装修,自在生活!


当然,您也可以添加乐大姐微信号13390895455

或扫描下方的二维码

说出您的装修难题、让乐大姐为您答疑解惑

不管您是装修完工了

还是即将装修的

或者正在装修的

乐大姐一定知无不言,言无不尽



图片


图片
在看是一种鼓励|分享是最好支持
点击右下角 写留言 发表你的心声


我们期待与您的交流 

长按二维码添加乐大姐微信号

装修不烦 大姐来谈