
乐大姐
FM104.8《家在苏州--乐大姐说装修》栏目特邀嘉宾;
为万千家庭打造幸福家居的同时,也相互成为了好朋友。任何与装修有关的问题,欢迎您添加乐大姐微信:13390895455,
每一套作品 都是私人定制
项目地址 / 东望雅苑
项目面积 / 165㎡
项目风格 / 包豪斯中古风
项目性质 / 精装修软装搭配
Every home has its own story,
the design should tell it.
Every home has its own story, the design should tell it.
随着越来越多的精装房涌入人们的生活,大家也开始面临更多的空间困惑、功能不足、审美需求,而这一切的改写就在你决定改变它的那一刻开始有了变化……
The design should
tell it.
提到中古风,
或许你会立刻想到那种沉稳、复古的色调?
胡桃木的家具、暖黄的灯光,
仿佛每一寸空间都散发着岁月的静谧。
但本案,
你会发现——中古风,
也可以如此明亮多彩~
看惯了纯粹风格的鲜明棱角,有时混搭的风韵更让人着迷。本案以包豪斯和中古风格为载体,将过去的经典与现代的元素完美融合;大胆运用多巴胺色彩,搭配各种材质、造型与软装,形成既有对比冲突又相互和谐统一的空间秩序,最终呈现出一个复古多元又充满活力的家居氛围,整个家都chill了起来~



客厅,作为整个空间的核心区域,业主希望它不仅仅是一个可以“待得住”的地方,更能成为家中的娱乐聚焦中心。为此,设计舍弃了常规的电视茶几布局,采用了移动式电视框架和轻便式茶几,让空间变得灵活而多变。卧室门做了隐形设计,与整面收纳柜完美融合,既保证了私密性,又让空间看起来更加整洁有序。明亮的色彩点缀其间,如同灵动的音符,打破了沉闷,带来一丝俏皮与活力。


色彩,是塑造空间氛围的关键。
想象一下,在复古的木质基底上,点缀一抹明亮的黄色、活泼的绿色,甚至是大胆的粉色,整个空间瞬间被点亮,仿佛注入了无限的活力。


将原有南次卧的非承重墙拆除,用复古的玻璃移门代替。移门打开时,书房与客厅融为一体,整个公共区域瞬间变得开阔大气;移门拉上后,又可回归独立空间,兼具开放互动与私密性。餐厅家具融合了业主喜欢的金属与线条,用现代感的视觉元素适当中和餐厨空间的中古氛围,自然而然流露出一种清冷随性的舒适感,仿佛在诉说着工作回家后的那份久违的松弛。
柜面的黄色、蓝色与绿色,则为空间增加了几许热烈和暖意。


入户玄关以木质作为主导,搭配柔和灯光,呼应空间温和、自然、宁静的气质,归家自带仪式感。

主卧的设计,延续整体中古木色的基底,搭配柔和的色调与细腻的材质,营造出一个既静谧又充满质感的休憩空间。
为了增加层次感,设计在细节处加入了金属元素,如床头灯的金属支架、衣柜的拉手,冷峻的金属光泽与温暖的木色形成微妙对比,既现代又不失格调。



考虑到业主后期居住对储物空间的高需求,设计别出心裁。整个柜子采用骨骼线柜门,不仅保证了收纳的便利性,更让空间的立体感和造型感拉满。功能与美感的平衡,在此得以完美诠释。


与之相邻的北房间被纳入到了主卧,规划成了衣帽间兼梳妆区。

书房不止用来办公,还装满了业主夫妻对生活的热爱。在这里,他们可以弹钢琴、打游戏、看书、欣赏自己的收藏,功能和情感在此交融,释放出无限的活力与温馨。



书柜的设计,独具匠心。将钢管的坚固与玻璃的通透巧妙结合,再加上座椅电镀金属的光泽,共同营造出一种独特的工业美学。现代与复古在此交织,格调与实用并存。

本案业主夫妻是一对高级知识分子,对艺术与审美有着自己独到的见解。他们喜欢金属银的质感、色彩鲜明的装饰,偏爱胡桃木的木制品以及立体感强的结构线条。然而,开发商交付的现代风精装现场与之相去甚远。于是,他们找到乐大姐团队,希望进行局部改造+软装搭配。
设计老师深入了解业主的个性与喜好后,巧妙将中古风与包豪斯风相结合,大胆碰撞中古的复古韵味与现代的简约理性,为他们量身定制出一套与众不同的混搭风家居空间。


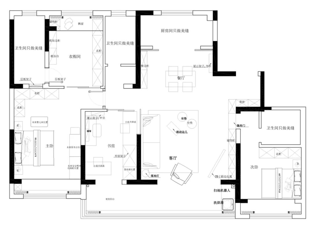
本案因是精装修项目,涉及到的户型改造并不多:
①考虑到本案常住人口不多,仅需保留两房,故将北次卧与主卧打通,形成集卧室、衣帽间、梳妆区、休闲区、独立卫浴于一体的主卧套房,极大提高了居住的舒适度与便利性。
②将中间南次卧与客厅相邻的非承重墙拆除,改用复古的玻璃移门,从而增加了空间的通透性与互动性,公区因此变得开阔又大气。
③把双阳台全部纳入到室内,拓展室内空间的同时,还将室外的湖景引入室内,让自然美景成为生活的一部分,提升了整体居住体验。
点击左下方“阅读原文”,即可在线免费看本案例全景图(360°)。

如果您觉得乐大姐说的内容很有价值
欢迎分享转发至您的朋友圈
让更多的朋友都能轻松装修,自在生活!
当然,您也可以添加乐大姐微信号13390895455
或扫描下方的二维码
说出您的装修难题、让乐大姐为您答疑解惑
不管您是装修完工了
还是即将装修的
或者正在装修的
乐大姐一定知无不言,言无不尽
我们期待与您的交流