清水江南别墅整装

设计说·第290期 | 431㎡独栋别墅,繁简有序!

发布时间:2025-03-22

图片

乐大姐

FM104.8《家在苏州--乐大姐说装修》栏目特邀嘉宾

多次受邀成为院校家居授课讲师;
从事单位荣获装修装饰行业协会副会长称号;
1998年至今,
为万千家庭打造幸福家居的同时,也相互成为了好朋友。
任何与装修有关的问题,欢迎您添加乐大姐微信:13390895455
乐大姐会为您做一对一解答。


图片



290 ISSUE

2.27/SS






每一次样板房的拍摄,

每一次竣工酒的举行,

不仅仅是装修成果的一次展示,

更是承诺一次又一次的实力呈现。

圆一个理想家居之梦,

筑一方盛满温情的居所。

这个过程中

乐大姐团队和业主相识、相知、相交,

一次装修,一生朋友。



图片

图片

图片



Design is the process of

going from an existing condition to

one that is preferred.







1

「看别人的家,装自己的生活」

现代风因其简洁、实用且富有设计感的特点这么多年来一直经久不衰,深受业主们的青睐很多人在装修时首先想到的大概就是现代风格,本案亦是如此。当初业主来沟通时表达非常喜欢现代感。但毕竟是一套面积不小的别墅,该如何在保持现代风格核心特色的同时,进行个性化定制呢?


图片


图片


图片


图片


图片


图片


图片


图片


图片


图片


图片


图片


图片


图片


图片


图片


图片


图片


图片


图片


图片


图片


图片


图片


图片


图片


图片


图片


图片


图片


图片


图片


图片


图片


图片


图片


图片


图片


图片


图片


图片


图片


图片


图片


图片


图片


图片


图片


 平面方案 

图片
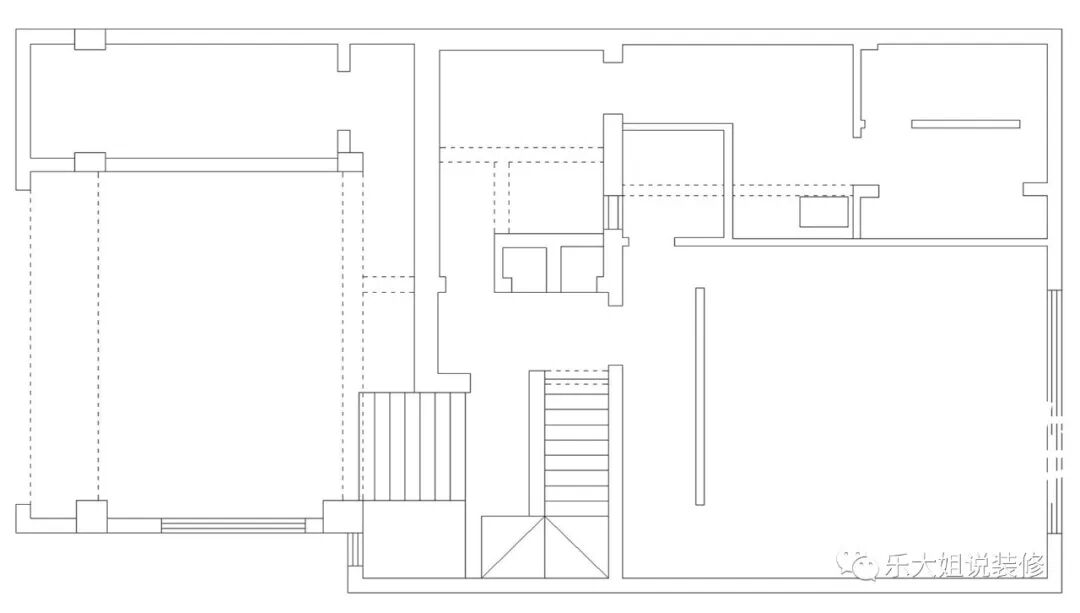
地下室原始户型图
图片
地下室改造后户型图
图片
一楼原始户型图
图片
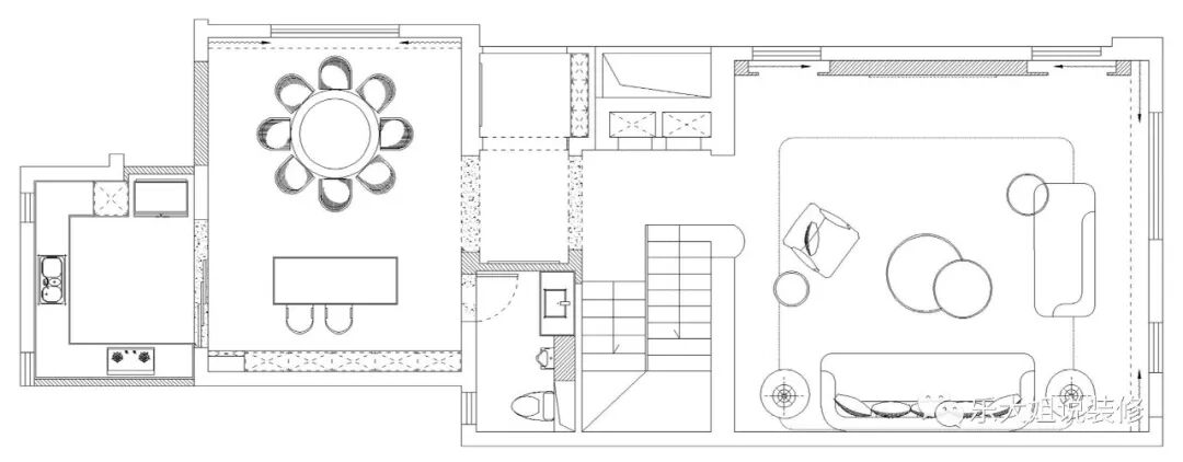
一楼改造后户型图
图片
二楼原始户型图
图片
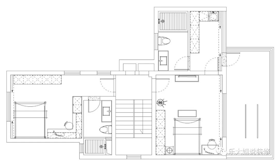
二楼改造后户型图
图片
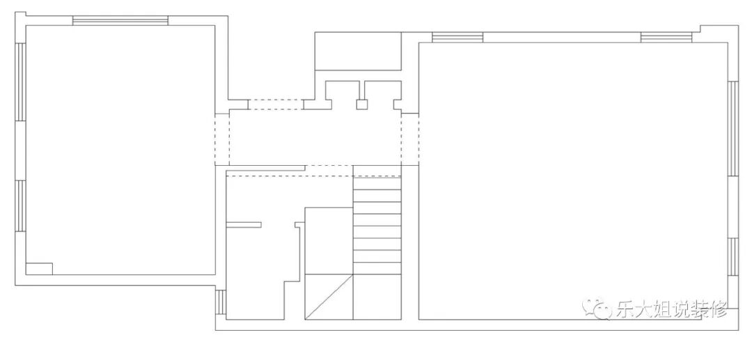
三楼原始户型图
图片
三楼改造后户型图

 全景图 


图片
点击左下方“阅读原文”,即可在线免费看本案例全景图(360°)。






2

「业主说 · 装修背后的故事」


本案这套内独栋别墅是业主10年前买的,但没有时间、精力去装修,就一直搁置着,现在家里的小朋友们慢慢都长大了,加上业主也想改善下家人的生活,所以找到了乐大姐团队。风格上,本案业主提出希望简单点,不要过多的装饰,但同时又十分看重品质和功能,那么这两者之间怎样才能做到平衡呢?如何设计才能实现业主理想中的家呢?


值得一提的是,这个小区的房子交付时自带三恒系统,三恒系统的房子对于装修施工的限制颇多,要求更高,那又需要注意哪些呢?


 满意度100% 


图片
▲ 乐大姐团队和朗诗绿色街区业主合影留念


拍摄现场,在和乐大姐、苏州电视台《第一时间》拍摄老师等聊天的过程中,男业主说“说到我们家的这一次装修,我要表扬你们乐大姐团队的有太多的地方。首先就是你们团队的工作人员真的特别负责,从头到尾每一个过程都盯着,把每一个点都落到了实处,即使我自己提供的东西,你们也帮我全程对接、把关,让我们真的很省心。第二个点就是材料特别好,我们有个邻居找熟人装的,总价比我们还高了三分之一,落地效果和我们家根本没法比,装修过程还很操心,而且用材也很一般,关键比我家早开工半年,交付却比我们还晚。第三点,我们把我们之前的婚床,欧式的老家具带了过来,没想到经过设计老师的处理,十分协调。其实,我们能和乐大姐团队结缘,也是朋友介绍的,他们小区有人是你们团队装的,他们看了你们的落地成品后非常后悔没找你们,但自家装修已到中期了,后悔也来不及了。有次我们聊到装修的事,他就说装修你们一定要去找乐大姐团队,不能像我们一样到时后悔,所以我们关注了你们团队两年,家里要启动装修就直奔你们而来了。


图片

图片
▲ 乐大姐正在拍摄苏州电视台《第一时间》解析样板房装修知识点


他接着说道“还有一个朋友,也去你们公司咨询了,觉得价格不在自己的计划内,就选择了自己装,结果还没住进去砖都裂了,来维修的工作人员居然身上还穿着别的公司的衣服!关键到最后价格甚至超过当初你们团队规划的!其实,这已经不是我们第一次装修了,我们夫妻俩的婚房找的一个远亲装的,十几年前装了一百万左右,效果很一般,工期还拖了很久。入住前我们自己还把柜子换了,重新刷了漆,原来的实在看不下去。专业的事情还得专业人来说,我有个哥们儿是做工装的,我们家装好后他也来家里参观过,跟我说我们家装得很漂亮呢!年前我们家举行乔迁仪式时,来了很多亲戚、朋友,邻居们也来了,他们都说家里装得很漂亮,还问我是哪家公司装的,我说清水江南,物超所值!



图片

图片

▲ 朗诗绿色街区业主夫妻设宴宴请乐大姐团队贺竣工之喜




有感:



朗诗绿色街区这个案子,虽打造的是比较常见的现代风格,但我们非常注重软装跳色的运用,巧妙营造出温馨的家居氛围。同时,出于对性价比的考量,我们采用了很多环保且时尚的新型材料。此外,本案开发商交付时做了三恒系统,设计时若考虑不周全,不仅会影响三恒的效果,甚至还能影响到设备以后的运行。所以,乐大姐团队的方案都是因人而异,每一套都是独家定制!由于我们团队目标一致,设计的量身定制,服务的细节把控,最后才有超越效果图的落地,才有这么多业主的认可,让我们觉得装修这件事,越做越有价值!
——by乐大姐

图片


END



往期案例回顾

设计说·第288期 | 220㎡极简大平层,内敛的优雅!

图片

设计说·第284期 | 445㎡别墅升级改造,重焕新生!

图片

设计说·第283期 | 360㎡下叠墅的奢华蜕变

图片

设计说·第282期 | 131㎡极简黑白,静谧纯粹!

图片

设计说·第281期 | 858㎡法式混搭独栋,优雅绽放!(下)

图片

设计说·第280期 | 576㎡独栋别墅,尽显东方气度!

图片

设计说·第279期 | 197㎡大平层,不一样的现代简约!

图片

设计说·第278期 | 235㎡现代简约,宁静暖屋!

图片


图片


如果您觉得乐大姐说的内容很有价值

欢迎分享转发至您的朋友圈

让更多的朋友都能轻松装修,自在生活!


当然,您也可以添加乐大姐微信号13390895455

或扫描下方的二维码

说出您的装修难题、让乐大姐为您答疑解惑

不管您是装修完工了

还是即将装修的

或者正在装修的

乐大姐一定知无不言,言无不尽


图片


图片
在看是一种鼓励|分享是最好支持
点击右下角 写留言 发表你的心声

我们期待与您的交流 

长按二维码添加乐大姐微信号

装修不烦 大姐来谈