
乐大姐
FM104.8《家在苏州--乐大姐说装修》栏目特邀嘉宾;
为万千家庭打造幸福家居的同时,也相互成为了好朋友。任何与装修有关的问题,欢迎您添加乐大姐微信:13390895455,
项目地址 / 平江观棠
项目面积 / 155.7㎡
项目风格 / 现代法式
项目性质 / 精装修软装搭配
项目状态 / 正在施工
Explore the mystery of timemeet
Every home has its own story, the design should tell it.
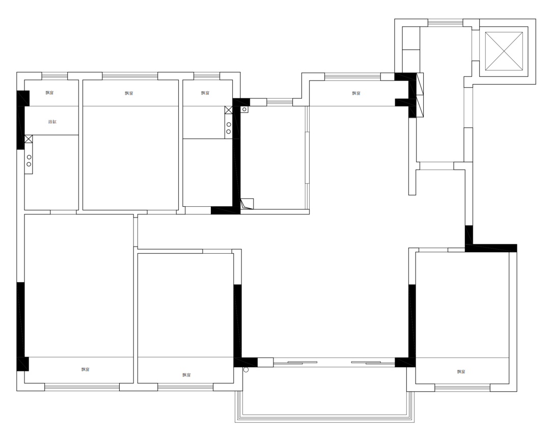
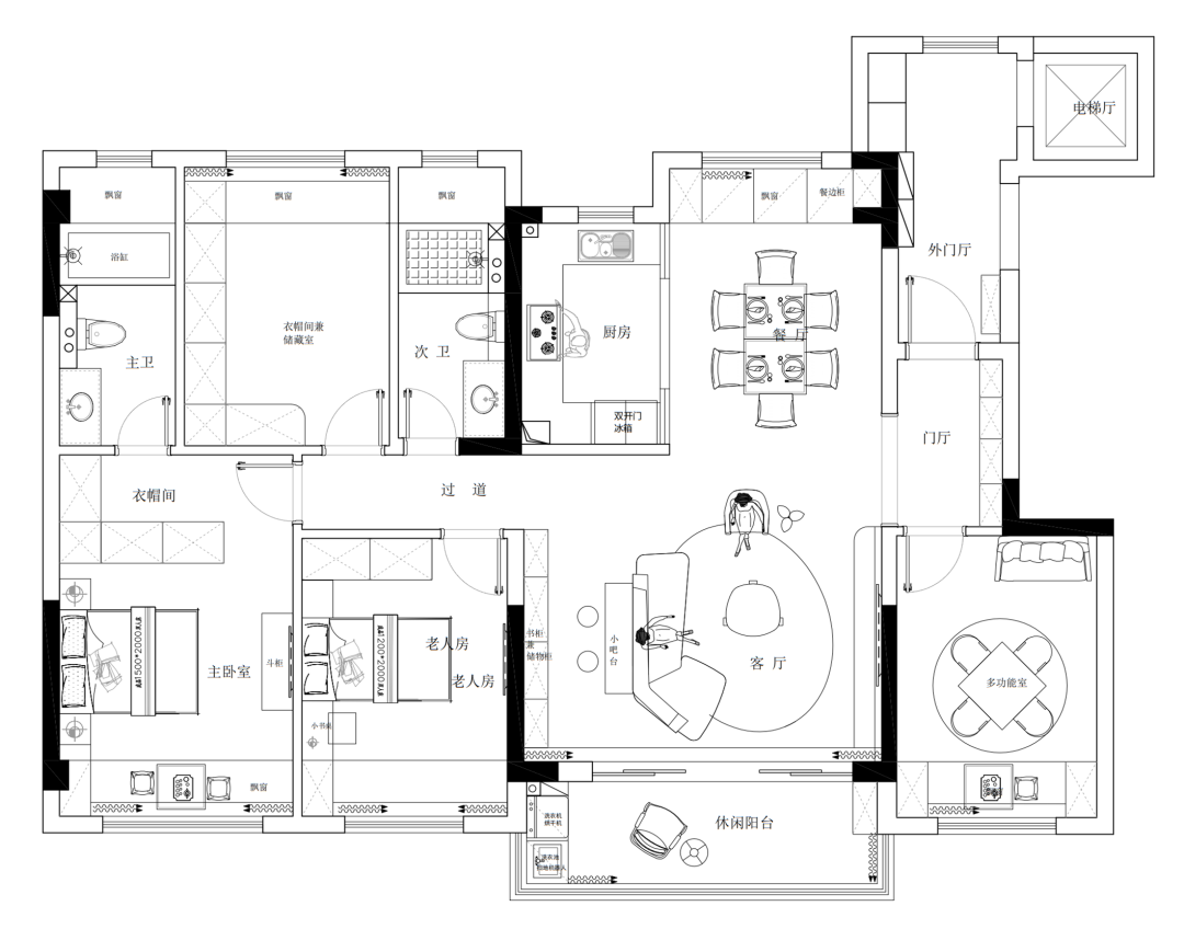
开发商精装交付的现场只有基础的硬装,软装全无,功能规划也不是很清晰,这样的房子肯定是无法直接入住的,特别是本案业主对生活品质的要求很高,看乐大姐团队如何通过软装丰富业主夫妻的养老生活……
The design should
tell it.
提到法式,
很多人都以为是年轻人的专属。
然而,在养老房中,
法式也能绽放出别样的光彩,
化作触手可及的温馨与优雅。
养老生活
不再是单调的日常,
而是一场充满浪漫与诗意的旅程~



每个人的心中,都装着一个理想家的样子,而设计不仅是为了能够舒适的居住,更是将理想家变成美好生活的行动。
本案摒弃传统法式的繁复奢华,仅以优雅细腻的法式线条游走于整个空间,搭配顶面的精致角花,既延续了法式的浪漫与高级感,又使空间更具层次感和视觉冲击力。

轻盈的奶油白配色,优化采光、提亮空间的同时,将慢生活安静温柔的气质展现得淋漓尽致,也让整个家充满暖意与慵懒的氛围。在这里养老,仿佛一切喧嚣与负累都能瞬间被清除与净化。
流动的光影下,点缀其间的橙色、蓝色,打破了空间单一色调的沉闷感,增添了一抹灵动与活力。


相对原精装现场的冰冷苍白,乐大姐团队的软装以一种平和的方式融入,增加精致感的同时,也将现代生活的功能需求恰到好处地融入到法式浪漫中,整体氛围瞬间拔高,法式的优雅、低奢,在空间中弥散开来。


餐桌设置在窗前,纯净的色调让整个空间温柔且放松。搭配精致的角花、简约的线条和整洁的布局,增加了空间的视觉感,让居者能更加从容地享受生活,构建属于自己的烟火。



主卧床头背景采用了经典的雕花设计,搭配柔软的亚麻床品,慵懒感铺面而来。红色的半墙,宛如一束温柔的暖阳,悄然点亮了整个空间,让活力在不经意间流淌。柜门的黄铜把手带着岁月的痕迹,却更显优雅。

床边的飘窗,被打造成了小小茶室。坐在这里,无论是独自品茗,还是夫妻对坐闲话家常,都别有一番惬意。



次卧是业主母亲的房间,整体布局更注重休憩、舒适等功能的需求。极简的法式线条、角花、灯带,通过对细节的考究,营造出层次分明的视觉效果。精心布置的飘窗,成了休憩与观景的绝佳角落。
更换后的房门在法式线条的勾勒下,宛如一幅幅精雕细琢的装饰画,精致有调性。

独立衣帽间兼顾实用收纳与视觉美感,展现出高端定制的精髓。
在养老生活中,棋牌室&茶室是重要的休闲空间。这里没有过多繁复的装饰,仅通过家具与软装营造出宁静舒适的氛围,不论是与老友相聚,还是独自消磨时光,都让人感到格外放松与惬意。
本案业主是乐大姐团队的老客户,之前给女儿买的房子也是委托乐大姐团队装修的。这次的精装房,业主夫妻是买来养老的,同样对居住品质的要求很高。而,开发商交付的现场显然不符合他们的需求,但全部拆除又太浪费,因此找到乐大姐团队做软装搭配。风格上,考虑到楼层不高,采光不是非常理想,加上业主一家人对美式、法式比较喜欢,故为其量身定制了一套浅色系的现代法式,仅通过线条、房门、家具、软装、色调等搭配,将一套简单、冰冷的房子变成了功能齐全、温馨舒适的家。① 本案不涉及户型改造,仅通过功能规划以及地砖、柜体、木门、软装搭配等实现了家居风格的转变与居住品质的提升。点击左下方“阅读原文”,即可在线免费观看本案例全景图(360°)

如果您觉得乐大姐说的内容很有价值
欢迎分享转发至您的朋友圈
让更多的朋友都能轻松装修,自在生活!
当然,您也可以添加乐大姐微信号13390895455
或扫描下方的二维码
说出您的装修难题、让乐大姐为您答疑解惑
不管您是装修完工了
还是即将装修的
或者正在装修的
乐大姐一定知无不言,言无不尽
我们期待与您的交流