清水江南别墅整装

设计说·第308期 | 139㎡意式极简,雅奢格调!

发布时间:2025-10-18

图片

乐大姐

FM104.8《家在苏州--乐大姐说装修》栏目特邀嘉宾


多次受邀成为院校家居授课讲师;
从事单位荣获装修装饰行业协会副会长称号;
1998年至今,
为万千家庭打造幸福家居的同时,也相互成为了好朋友。
任何与装修有关的问题,欢迎您添加乐大姐微信:13390895455
乐大姐会为您做一对一解答




MINIMALIST

HOME FURNISHINGS

极简家居主义
图片


项目地址 / 园区招商文禧

项目面积 / 139㎡

项目风格 / 意式极简

项目性质 / 精装房软装搭配

 项目状态 / 正在施工





每一套作品,都是私人定制



    




01
 改造前VS改造后 


 -Before and After Renovation-

在标准化的精装房时代,千篇一律的空间布局与审美,难以契合业主对家的个性化期待。家,不仅是居住的容器,更是情感与个性的寄托。当需求与现实碰撞,一场关于家的重塑悄然开启。









02
 客厅空间 
 -Living Room-


图片

图片


设计,是生活态度的一种表达。奢华并非浮于表面,而是那些本质的、能够触摸到的细节与质感。


本案摒弃繁复的装饰,以克制的高级感为核心,通过考究的材质碰撞、低饱和度的色彩叙事以及流畅的线条语言,诠释了现代精英阶层对品质生活的深层追求。


图片


推开家门,入户玄关的通顶木饰面与次卧门融为一体,是空间递出的第一张名片。深色木纹的质感,如同安宁的生活底色,与简洁的白色系岩板碰撞,深浅相交,线条与色调、灯光相呼应,家的温馨,从玄关处就细细铺陈


图片

图片


图片


客厅中,一组黑色皮质沙发以其饱满而沉稳的形态锚定空间的重心,成为视觉焦点。沙发背景通过岩板与灯带的艺术化组合,巧妙打破了大面积木饰面可能带来的沉闷压抑,以轻盈的形态丰富了视觉层次,同时提供局部照明。


图片

图片


电视背景采取嵌入式设计,整体干净利落,木质与黑灰色的搭配,简约而不失质感。下方的电子壁炉,光影摇曳间,氛围感直接拿捏。


去掉传统的电视柜,对原有传统阳台进行改造,把阳台扩入室内,拉伸空间维度的同时,利用连贯的材质贯穿,将承重墙很好地过渡。




03
 餐厅空间 
 -Dining Room-


图片

图片


餐厅与北阳台无缝衔接,解决了餐厅面积小、收纳严重不足的尴尬。依窗而设的西厨区,为日常烹饪与用餐增添了更多便利与舒适。


图片

图片


浅色系的餐桌搭配深灰色餐椅,形成经典的色彩对比,简约而富有层次。黑玻材质的移门,将开发商精装交付的厨房与重新设计的餐厅隔绝开来,既通透又独立,不影响视觉统一的美感。




04
 主卧空间 
 -Master Room-


图片

图片

图片


主卧没有过多装饰,以空间留白为底色,用几何线条重构秩序,勾勒出空间的层次与呼吸感。墙面铺陈灰调艺术漆,搭配悬浮床头柜、缀以精致吊灯,意式质感与个性艺术交融,于极简中探寻生活本质的优雅与松弛。






图片

图片



▂▃▅


想象一下,在这样一个留白的空间里,

阳光透过窗户洒在地板上,

你可以自由自在地活动,没有丝毫的束缚,

心灵也随之变得轻盈。





05
 女 儿 房 
 -Daughter's Room-

图片

图片


女儿房以灰调与粉色系的撞色铺陈出温柔的基底,床头背景采用草莓熊搭配暖黄色调,营造出可爱又温馨的氛围。床右侧的悬浮台面,兼具床头柜与书桌的功能,实用又节省空间。


目之所及皆是蓬勃生机,每一寸角落都在编织着女孩儿关于梦幻与成长的想象,让这个空间成为她最温暖的小天地。


图片




06
 儿 子 房 
 -Son's Room-


图片

图片

图片


男孩房以蓝色为主调,床头背景采用汽车造型,搭配暗藏的灯带,营造出炫酷梦幻的氛围。色彩与材质的碰撞,既契合男孩儿的心性,亦以细节设计守护成长时光的舒适与便捷。

图片




07
 衣 帽 间 
 -Coat Room-

图片


这个空间面积虽小,却规划了多种功能。一侧的衣柜排列整齐,木质与白色柜体搭配,沉稳又清新。而另一侧书桌的设置,既时尚又实用,解决了夫妻俩办公的需求





08
 写 在 后 面 
 -Written Behind-


本案属于精装房,对于开发商交付的现场,女业主说:“文禧花园这套房子是我们一家人长久居住的,我对家居设计有较高的要求和审美,希望可以打造出一个别具一格的理想之家。之前也接触过其他几家装修公司,看了他们的设计案例,总觉得缺少一些能打动我的亮点,风格比较普通,没有那种让人眼前一亮的感觉。后来,隔壁邻居热情地向我们推荐了你们乐大姐团队,还展示了他家装修的效果图。虽然不完全是我心仪的风格,但从那些设计细节里我能真切感受到你们深厚的专业功底和卓越的设计水准,所以决定委托给你们团队。”


乐大姐团队设计老师根据业主的实际需求以及喜好,为其量身定制了一套意式极简的作品,简约而不失质感,舒适而不乏格调,女业主看了后表示这才是她理想中家的样子。





09
 平 面 方 案 
 -Flat Plan-


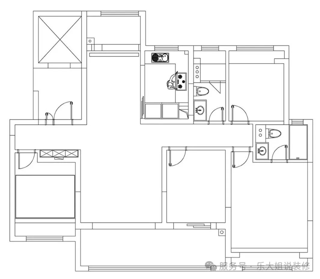
图片

原始户型图

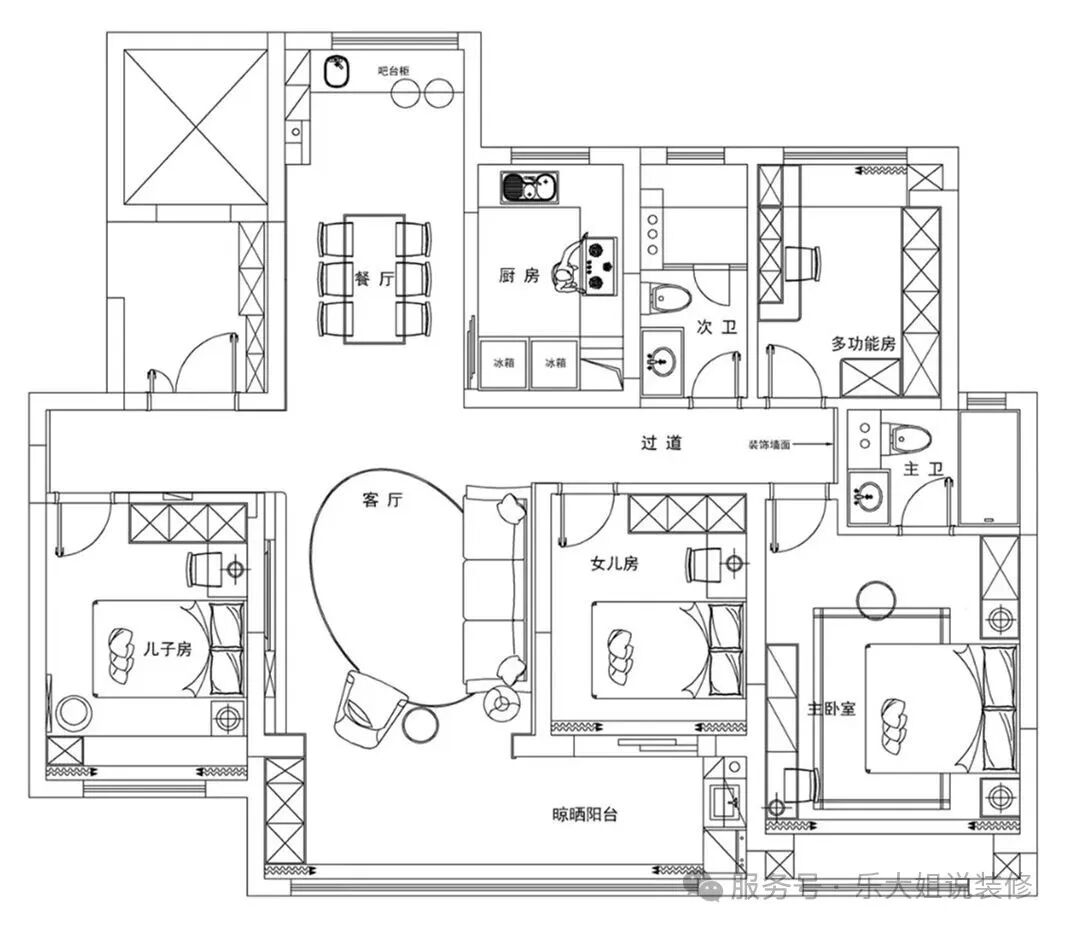
图片

改造后户型图


① 本案原有的精装现场基本保留,仅拆除了南北阳台的移门及墙体。然后,通过功能规划以及背景、柜体、家具、软装搭配等实现了家居风格的转变与居住品质的提升。





10
 全 景 图 
 -Panorama-

图片

点击左下方“阅读原文”,即可在线免费观看本案例全景图(360°)。






END



往期案例回顾

设计说·第307期 | 458㎡法式豪宅的优雅新生

图片

设计说·第306期 | 201㎡意式轻奢,格调生活再定义!

图片

设计说·第305期 | 290㎡老房重装后,竟然这么出彩!

图片

设计说·第304期 | 214㎡老房重装,东方侘寂,归心之所!

图片

设计说·第303期 | 134㎡中古风,住进南洋旧梦里!

图片

设计说·第302期 | 185㎡现代美式,优雅摩登!

图片

设计说·第301期 | 248㎡现代风,永恒的经典!

图片

设计说·第300期 | 214㎡现代复古,时光低语,自在栖居!

图片




图片





如果您觉得乐大姐说的内容很有价值

欢迎分享转发至您的朋友圈

让更多的朋友都能轻松装修,自在生活!


当然,您也可以添加乐大姐微信号13390895455

或扫描下方的二维码

说出您的装修难题、让乐大姐为您答疑解惑

不管您是装修完工了

还是即将装修的

或者正在装修的

乐大姐一定知无不言,言无不尽



图片


图片
在看是一种鼓励|分享是最好支持
点击右下角 写留言 发表你的心声


我们期待与您的交流


长按二维码添加乐大姐微信号

装修不烦 大姐来谈