清水江南别墅整装

设计说·第313期 | 317㎡现代,一半烟火,一半清欢!

发布时间:2025-10-18

图片

乐大姐

FM104.8《家在苏州--乐大姐说装修》栏目特邀嘉宾

多次受邀成为院校家居授课讲师;
从事单位荣获装修装饰行业协会副会长称号;
1998年至今,
为万千家庭打造幸福家居的同时,也相互成为了好朋友。
任何与装修有关的问题,欢迎您添加乐大姐微信:13390895455
乐大姐会为您做一对一解答




项目地址:吴江半岛印象(联排)
项目面积:317.2㎡+院子101.8㎡
项目风格:现代简约
项目性质:别墅整装
项目状态:已完工

图片


ENJOY IN LIFE.
家居设计 | 实景案例赏析 | 现代简

每一次样板房的拍摄,

每一次竣工酒的举行,

不仅仅是装修成果的一次展示,

更是承诺一次又一次的实力呈现。

圆一个理想家居之梦,

筑一方盛满温情的居所。

这个过程中,

乐大姐团队和业主相识、相知、相交,

一次装修,一生朋友。



每一套作品
都是私人定制


Design must be adapted to local conditions 

and customized to meet the unique needs of each family.



图片


图片


○○○
舒适宜居
Livable
Comfortable



01
现场实景照片
看别人的家  装自己的生活
Comfortable
Livable


现代简约,以其时尚舒适、干净利落的特征被很多装修业主所青睐所选择,但怎样在简约中展现个性,打造出与众不同的家居环境呢?今天跟乐大姐一起走进这套317㎡联排别墅,看它如何以其独特的设计和细节,脱颖而出图片~~


图片

图片


图片

图片

图片

图片

图片

图片

图片

图片

图片

图片


图片

图片


图片

图片

图片

图片

图片

图片

图片

图片


图片


图片

图片

图片

图片

图片

图片

图片

图片

图片


图片

图片

图片

图片

图片

图片

图片

图片

图片

图片

图片

图片

图片

图片

图片

图片

图片

图片

图片

图片

图片

图片

图片

图片

图片

图片

图片

图片

图片

图片

图片

图片



TIME

20250828




「 平面方案 」
○●

FLAT PLAN


图片
地下室原始户型图
图片
地下室改造后户型图
图片
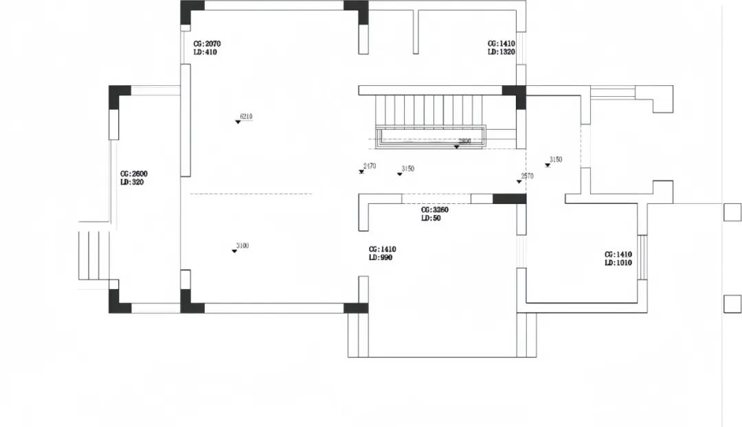
一楼原始户型图
图片
一楼改造后户型图
图片
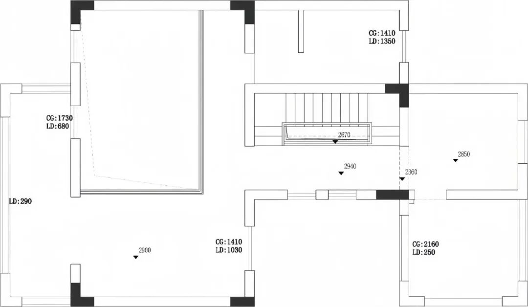
二楼原始户型图
图片
二楼改造后户型图
图片
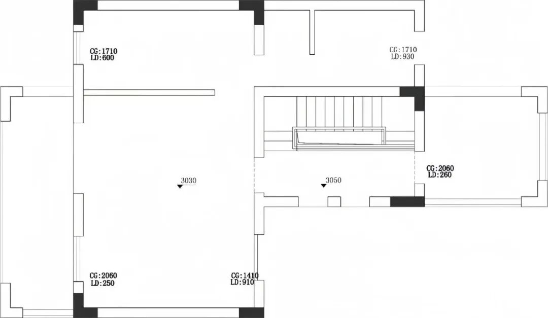
三楼原始户型图
图片
三楼改造后户型图


「 全景图 」
○●

PANORAMA


图片
点击左下方“阅读原文”,即可在线免费观看本案例全景图(360°)。



图片


○○○
舒适宜居
图片
02
业主说
装 修 背 后 的 故 事
Comfortable
Livable
本案这套联排别墅是套改善型住宅,更是业主夫妻两以后的养老房住所(孩子们住在这里的时间比较少,因为现在在外读书,未来又要独立出去),所以设计时乐大姐团队以满足业主夫妻两的需求为主,而后再兼顾孩子们的喜好。


风格上,因女业主喜欢现代简约,男业主喜欢自然舒适,所以最终整体以简约的现代风为基调,同时软装上带一些原木的调性,从而营造出一种男女业主都爱的悠闲惬意的度假式生活节奏。


「 满意度100% 」

图片
乐大姐团队和吴江半岛印象业主合影留念

拍摄现场,在和乐大姐、苏州电视台《第一时间》拍摄老师等聊天的过程中,男业主说“这次装修我来现场真的很少,有时候可能一两个月才来看一次,因为放心呀,服务群里今天做什么,明天做什么,接下来的计划是什么一目了然。我对乐大姐团队的信任,也来源于你们的口碑,这么多年认真做一件事的企业,肯定不会差的。还有就是,我们在过程中提出的任何要求,都会第一时间得到解决。我之前装修过三次,第一次是自己装的,一天到晚在现场,对接材料,对接每一个节点,很是操心;第二次是找的装修公司,当时可以说是简装,毫无美观性可言,大失所望;所以,第三次我又选择了自装,一套130多的平层装了一年多,花了七十多万,因为没有整体统筹,采光特别好的房子被我装得大白天都要开灯(颜色没把握好)!“


图片
乐大姐正在拍摄苏州电视台《第一时间》解析样板房装修知识点

这次装修本来想把预算给我爱人,全权交给她,她也不愿意操心,后来选择了乐大姐团队。四次装修下来,没有对比就没有伤害,虽然次数多,但只有这次才装成了这辈子我想要的家。所以,这也是我最后一次装修了!我女儿对她的房间特别满意,无论是床、背景和软装都非常喜欢。儿子对自己的房间也甚是喜欢,还问我什么时候搬家呢?!本来我们不急着装修的,疫情时我们那栋楼第一个被封,太压抑了,觉得还是有个独门独院的房子好。以后我们乡下的自建房改造,还要找乐大姐团队!我为大家挑选了糕点作为伴手礼,希望像我们家装修一样高高兴兴!


图片

图片

乐大姐正在拍摄苏州电视台《第一时间》解析样板房装修知识点


图片

图片

▲吴江半岛印象业主设宴宴请乐大姐团队贺竣工之喜




TIME

20250828


图片
03
乐大姐说
幸福家,点点评
Comfortable
Livable

乐大姐团队服务的案子,很多业主都有两次以上的装修经历,有的之前装修花了很多精力,还不断加钱,过程中扯皮,入住后也得不到好的售后服务,这都让他们觉得很受伤。找乐大姐团队后,这些问题都没有了,甚至有很多业主想不到的服务,让他们很惊喜,很满意。本案施工过程中服务群里业主几乎零表达,但今天他们脸上洋溢着的笑容,让我觉得通过我们的努力让业主感到幸福,这是乐大姐团队存在的意义。我们的一次装修,让业主觉得一次投入,终身享受。也因此,我们彼此之间才能“一次装修,一生朋友”。


○○○
舒适宜居

END


往期案例回顾


设计说·第312期 | 158㎡二手房的时尚蜕变

图片

设计说·第311期 | 458㎡独栋别墅,法式绮梦!(下)

图片

设计说·第310期 | 185㎡意式轻奢,定义全新养老生活!

图片

设计说·第309期 | 160㎡宋式美学,入住诗境!

图片

设计说·第308期 | 139㎡意式极简,雅奢格调!

图片

设计说·第307期 | 458㎡法式豪宅的优雅新生

图片

设计说·第306期 | 201㎡意式轻奢,格调生活再定义!

图片

设计说·第305期 | 290㎡老房重装后,竟然这么出彩!

图片



图片



如果您觉得乐大姐说的内容很有价值

欢迎分享转发至您的朋友圈

让更多的朋友都能轻松装修,自在生活!


当然,您也可以添加乐大姐微信号13390895455

或扫描下方的二维码

说出您的装修难题、让乐大姐为您答疑解惑

不管您是装修完工了

还是即将装修的

或者正在装修的

乐大姐一定知无不言,言无不尽


图片


图片
在看是一种鼓励|分享是最好支持
点击右下角 写留言 发表你的心声

我们期待与您的交流 


长按二维码添加乐大姐微信号

装修不烦 大姐来谈