
乐大姐
FM104.8《家在苏州--乐大姐说装修》栏目特邀嘉宾;
为万千家庭打造幸福家居的同时,也相互成为了好朋友。任何与装修有关的问题,欢迎您添加乐大姐微信:13390895455,
项目地址 / 莱茵花园
项目面积 / 232.6㎡
项目风格 / 现代混搭
项目性质 / 别墅整装
Every home has its own story,
the design should tell it.
A home like this is the life we all yearn for.
房子住久了,或者买的二手房,往往会出现水电老化、风格过时等一系列问题,想要提高居住舒适度,不妨考虑一下重装或者局部改造。本案属于老房重装,通过前后对比,让大家感受下老房子是如何焕发全新生机的
~
Explore the mystery
of the traces.
当代生活的场域注重于对品质和风格的追求,本案设计不拘于常规,以复古&混搭的态度,结合现代主义的高度理性,还原生活的本真与温情,在舒适与格调中找到精准的平衡,带给老房子新的思考。
空间中大量使用温柔的暖白色系,深色木饰面点缀其中,一深一浅、一刚一柔间,形成色彩与空间的分割韵律。材质的碰撞增强视觉张力,设计的美感与艺术性巧妙融合,共同沉淀出有电影氛围的质感家。
本案的改造隐于各个角落:墙体做柜体,柜体呈饰面,一致的设计语言贯穿了整个空间,兼具实用和审美的双重属性。
造型独特的家具,为整个空间注入摩登的艺术气质。浅咖沙发和暖白地毯平衡了木饰面的浓郁色调,以留白的方式为视觉提供缓冲,也为居者营造心理舒适区。
当自然的光影穿过百叶帘的缝隙,浸漫一室,空间中的一切都蒙上了薄薄的光晕,别有一番朦胧美。
本案餐厅和厨房的面积都不大,为此设计将两者的墙面、地面、柜体统一进行规划,从而一改之前餐厨拥挤不堪的局面,极大拉伸了视觉空间感,拓展了储藏空间,动线也更加流畅 。
冷暖色调的交替以及吊顶的差异化设计,不止清晰划分了空间,还为空间增添了丰富的层次感。
对于质感的强调,让整个餐厨空间充满高级感。
木饰面、哑光砖、大理石、金属与皮质等多种材质的搭配,层次高级、张弛有度。圆形餐桌椅的设计感被加倍放大,摩登而优雅,为用餐时光增添了几份情调。

楼梯以浓淡有致的韵律串联起空间的层次,恰似一幅立体的镂空屏风。盈盈灯光洒下,光影交错,氛围感瞬间拉满。
二楼主卧的设计,极为简约,造型与色彩极简的床头设计,搭配精心挑选且带有复古调性的床、床头柜、吊灯,直观地表达了业主夫妻的审美——追求时尚与复古均衡且微妙的美。
极简的床头背景上,泛起“涟漪”,灯光、木质、线条的层次渐变与叠加,虽看似简单,却在细节处展现出丰富的层次与质感,尽显设计的用心。
书房区域色调上的接续,将公区整体所营造的氛围感纳入了主卧,又巧妙实现了主卧的功能分区。
次卧在延续公区木质元素的基础上,进一步强化了复古韵味。墙上的装饰组画,藤编的床靠背、床头柜、写字台,花朵造型的吊灯……,无一不在渲染着一种浪漫、自由而优雅的氛围,空间气质跃然呈现。
电视背景两侧采用弧面过渡,丝滑地衔接门垛和承重柱的同时,视觉上还削弱了边界的生硬,让空间更具连贯性和轻柔的包裹感。
现代高品质生活离不开对于自在舒适感的追寻,卫浴空间内整洁有序的软装陈设,极简的色调,让人卸下疲惫,以轻松的姿态投入日常生活中去。
整个三楼都是女儿的私人空间,因此三楼的楼梯平台被打造成了起居室。一侧的书柜温馨雅致,整齐摆放着小主人喜爱的书籍与物件。舒适的懒人沙发随意放置在角落,让人心生欢喜。
而吊顶的设计,更是别出心裁。通过蓝天白云灯膜的运用,打破了传统吊顶的单调。踏入三楼,抬头便能看到一片“天空”,梦幻又浪漫。
主卧设计以一面半高深色木墙作为视觉焦点,不仅有效强化了空间的主次关系,也延续了整套别墅一贯的设计符号语言。一侧精心配置的壁灯与挂画,以不对称的方式化解了原始结构的难题,展现出平衡之美,既克制简约,又深刻诠释了“少即是多”的设计理念。
衣帽间,以定制的深色木材贯穿,彰显沉稳内敛格调。微妙的细节处理,透露出高级的品位。衣柜转角延伸形成的书桌,最大程度地利用了空间,丰富了功能。浅色系的配色,削弱了柜体的厚重感,轻盈而优雅。
三楼作为顶楼,顶面结构不规则,设计在此顺势而为打造衣帽间,实现了空间的高效利用。
本案这套别墅位于寸土寸金的苏州园区。业主当初买的二手房,自带装修,当时觉得还不错,就直接入住了。然而住了几年后,现在看哪里都觉得老旧、拥挤,因此他们决定重新装修。在选择装修公司时,业主非常看重最终的落地效果,所以多方面了解下来最终选择了乐大姐团队。
风格上,业主既喜欢现代的时尚摩登、干净利落,又对复古、自然的元素颇有兴趣,为此我们为其量身定制了一套现代混搭风,效果出来后业主一家人非常满意,爱不释手。
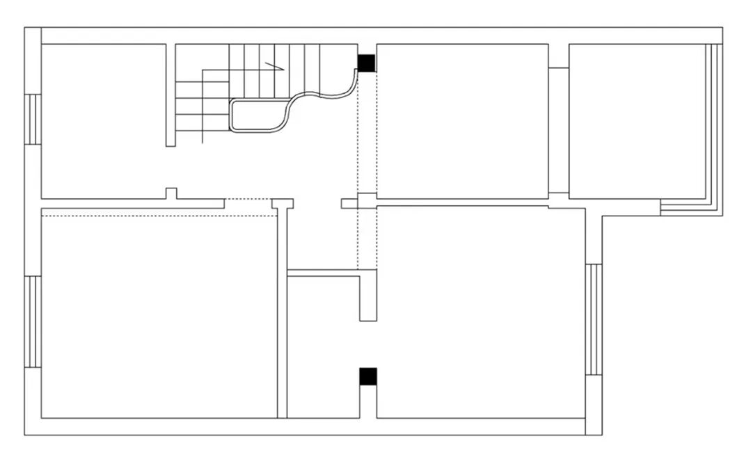
① 本案一楼原始户型南北通透、采光优越,因此设计时未做任何户型改动,更多的集中在优化功能、丰富收纳、升级配置和改变风格上。
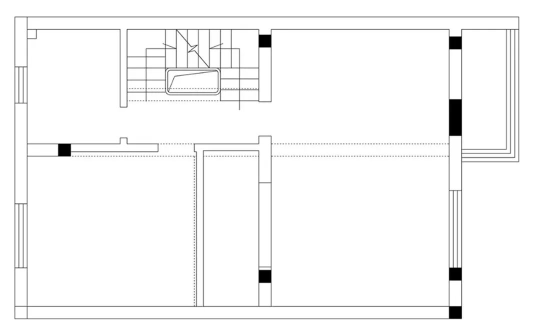
② 二楼的次卧是给老人准备的,原面积太小。设计时将主卧的衣帽间纳入到次卧,增加实用面积。而主卧在床尾区域打造了书房+衣帽间+阳台休闲区,功能依然很丰富。
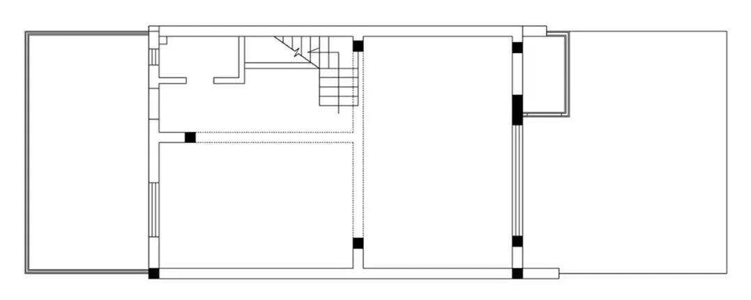
③ 三楼原结构是有两房的,面积都不大,且存在层高高低不一的异形顶。考虑到整个三楼都是女儿的专属空间,将北房间部分空间(层高较高处)纳入到女儿房,规划成衣帽间+书房。剩余区域,则打造成了独立的衣帽间。
④ 三楼的卫生间面积很小,仅5.3㎡,且是斜顶,常规的三大功能规划完很是拥挤。为此,台盆柜借用了相邻北次卧的部分空间,让出开门的距离,同时功能规划尽可能依着层高最高点来设计,从而使得卫生间的三大功能得以从容排布。
点击左下方“阅读原文”,即可在线免费看本案例全景图(360°)。
设计说·第313期 | 317㎡现代,一半烟火,一半清欢!
设计说·第312期 | 158㎡二手房的时尚蜕变
设计说·第311期 | 458㎡独栋别墅,法式绮梦!(下)
设计说·第310期 | 185㎡意式轻奢,定义全新养老生活!
设计说·第309期 | 160㎡宋式美学,入住诗境!
设计说·第308期 | 139㎡意式极简,雅奢格调!
设计说·第307期 | 458㎡法式豪宅的优雅新生
设计说·第306期 | 201㎡意式轻奢,格调生活再定义!

如果您觉得乐大姐说的内容很有价值
欢迎分享转发至您的朋友圈
让更多的朋友都能轻松装修,自在生活!
当然,您也可以添加乐大姐微信号13390895455
或扫描下方的二维码
说出您的装修难题、让乐大姐为您答疑解惑
不管您是装修完工了
还是即将装修的
或者正在装修的
乐大姐一定知无不言,言无不尽
我们期待与您的交流