清水江南别墅整装

设计说·第316期 | 134㎡禅意栖心之境,养老雅居!

发布时间:2025-10-30

  

图片

乐大姐

FM104.8《家在苏州--乐大姐说装修》栏目特邀嘉宾

多次受邀成为院校家居授课讲师;
从事单位荣获装修装饰行业协会副会长称号;
1998年至今,
为万千家庭打造幸福家居的同时,也相互成为了好朋友。
任何与装修有关的问题,欢迎您添加乐大姐微信:13390895455
乐大姐会为您做一对一解答



图片
图片
中式
心归处
禅意栖



项目地址:姑苏区凤凰熙岸

项目风格:新中式

项目面积:133.6㎡

项目性质:全屋整装

项目状态:已竣工



本案是为业主夫妻打造的长久自住养老居所,设计围绕新中式风格展开,并巧妙融入宋式美学的雅致意蕴。整体空间摒弃繁复装饰,于简约中彰显传统风骨,同时兼顾当代生活的实用与温暖,旨在营造一处既有文化底蕴,又能承载日常温情的温馨之家。






图片
图片
-壹-



图片






图片


图片


图片



告别传统中式的庄重压抑,新中式更懂当代人的审美需求。本案恰到好处地萃取了宋式美学的“雅淡”灵魂,用轻盈的线条、通透的布局与柔和的色调,消解了传统中式的厚重感。


在这里,没有堆砌的符号,只有中式韵味的自然流露,搭配绿植与光影,让整个空间如文人墨客的书斋般,满是诗意与禅意,让人得以安放疲惫的身心。



图片


图片



打破客厅与阳台之间的阻隔,将两个空间融为一体。原本独立的区域相互贯通,不仅让客厅的视觉尺度瞬间拉伸,更让室外的光线毫无遮挡地涌入室内,照亮每一个角落。



图片


图片



客厅沙发背景墙处,我们嵌入了定制多宝阁。它不仅是业主陈列心爱饰品的理想之选,其风格更与客厅软装浑然一体。在满足实用功能之余,更让空间层次分明,兼具通透的呼吸感



图片


图片


图片



电视背景墙采用半开放式定制柜设计,兼具储物与展示双重功能,柜身底板融入中式纹样,细节处彰显雅致。左侧预留空间打造中式端景,与右侧柜体形成虚实对比。整面背景墙,各局部小景既可独立成趣,组合在一起又浑然一体,实现了功能与美学的丰富统一。






图片



图片
-贰-


图片




图片


图片



空气在开阔的空间里自由流通,无论是置身于客厅,还是闲坐于阳台窗边,都能感受到空间的通透与敞亮,生活的舒适感也随之倍增



图片


图片



阳台巧做分区,隐藏晾衣区让空间告别杂乱,里面的空间作为家政间,妥善收纳打扫工具,实用又不外露破坏空间美感。顶部预留一根隐藏衣架,兼顾未来所需。最是那道中式山水纹片纱,轻隔阳台与家政间,纹理间呼应着窗外景色,也为茶室添了几分雅致意境,在此小坐,悠然自得。



图片


图片



客厅与南阳台间的横梁,我们以木饰面包裹收边。这一设计不仅在视觉上横向延展了空间,提升了开阔感,更通过与客厅其余木饰面的呼应,强化凸显了风格,让整体风格更显协调统一。






图片



图片
-叁-






图片


图片


每一块青砖

每一片琉璃

都是岁月的痕迹



图片


图片


图片


图片



“四方食事,不过一碗人间烟火。”餐厨是家里最具烟火气的地方,也是家人情感的纽带。哪怕是简单的一日三餐,配上喜欢的餐具,精心挑选的挂画,或是充满生机的绿植与装饰摆件,光影流转间,每一餐都是温暖的相聚时刻



图片


图片



厨房的承重墙被我们巧妙“增厚”,定制柜体附着其上,再点缀一幅挂画。原本略显鸡肋的结构,不仅凭空多出了实用的储藏空间,更摇身一变成了家中一处雅致小景。顶面右侧的横梁,我们则以左侧吊顶与之对称,并在中央嵌入灯光膜。这一设计既巧妙弱化了横梁的突兀感,也让厨房空间有了柔和的呼吸感






图片
图片
-肆-


图片

图片



图片


图片


图片



延续新中式风格的主卧,是身心放松的港湾。精选温润实木家具,搭配带有肌理感的咖色窗帘,辅以低饱和度的山水楼阁中式挂画和素色软装,让空间褪去浮躁,尽显静谧安然



图片



一幅壁画,便是主卧的背景注脚。它未必夺目张扬,却以含蓄之姿铺陈意境,于无声处晕染氛围,成为空间里不容忽视的温柔存在



图片


图片



养老房的精髓在于慢享闲适时光。业主夫妻俩素有饮茶雅好,我们利用卧室飘窗,打造一方休闲茶台。凭窗而坐,推窗见景色,围坐品茗,便是日常里最惬意的小确幸



图片


图片



主卧与内卫的隔墙之上,一方饰有文竹纹样的八角窗悄然嵌入。这抹设计,既以雅致细节呼应了空间风格,更打破了实墙的沉闷,让光线与景致隐约相通,为休憩之地平添了几分休闲意趣与通透之美





图片

图片
-伍-



图片


图片


图片


图片



南次卧为孩子归家小住而备,设计巧思藏于细节。我们于梳妆台上方定制造型多宝阁,既能妥帖收纳日常化妆品,又以层层格子增添雅致韵味,让每次小住都满含心意。



图片


图片


图片



另外,床头背景采用藤编纹硬包,既贴合年轻人审美,又与整体风格相融。设计巧妙将其延伸至飘窗台,不仅统一了视觉,更放大了空间感,细节处见用心。





图片

图片
-陆-



图片



图片


图片



卫生间亦藏巧思,墙面悬挂中式挂画,瞬间消解冰冷感让这一常被忽略的空间也融入整体风格,兼具温度与美感。并贴心预留脏衣篓位置,细节考量让便利性融入生活的点点滴滴。





图片

图片
-柒-


新中式
图片



图片

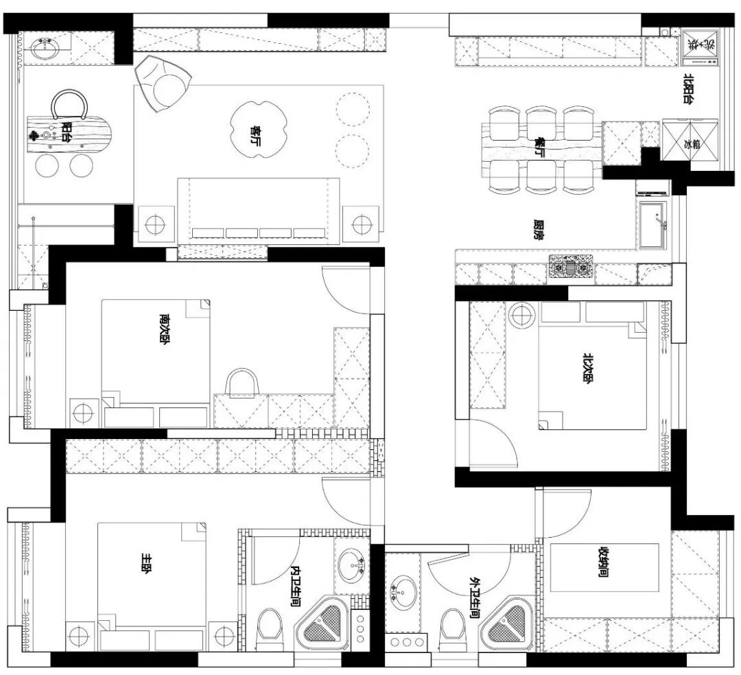
原始户型图 

图片

改造后户型图 


①凤凰熙岸这套毛坯平层,作为业主长久自住的养老房,为深度契合其实际需求、升级生活品质,我们对户型做了针对性的改造。


我们将北阳台与餐厅打通,一部分空间补充功能区,放置冰箱;另一部分用于摆放烘干机和洗衣机。在满足实用需求的同时,整体空间也因此变得更为敞亮通透。

③原始户型中,餐厅与厨房为两个独立的小空间。我们将其打通整合为餐厨一体区,并增设餐边柜功能。此举在丰富使用功能的同时,也让整个区域的采光与视野得到显著提升,更显明亮开阔。


④我们拆除了南阳台的非承重墙,将其与客厅打通融合,规划为一处可供品茗畅谈的休闲区;同时,利用阳台朝东的区域打造家政空间,既妥善收纳了拖把等清洁工具,也实现了隐形晾晒功能。


 针对南卧室(与主卧相邻)的户型缺角问题,我们通过墙体拉平处理,并嵌入定制“L”型衣柜。改造后,不仅有效增加了衣物储藏空间,更使南卧与主卧的空间形态均回归方正,利用率与规整度大幅提升。


⑥主卧内卫原始格局狭窄、功能难以完善的问题,设计上我们将其内卫向西挪动,并巧妙“借”用少量卧室空间。如此改造,卧室床尾释放出的空间,规划一整排柜子用于储藏。既未削弱主卧的开阔感,又让内卫得以完整配置各项功能,实用性大幅提升。






图片


图片
-捌-




图片

点击左下方“阅读原文”,即可在线免费观看本案例全景图(360°)。

https://vr.justeasy.cn/view/1w7l426t017ud944-1758796615.html





图片





END


往期案例回顾

设计说·第314期 | 233㎡别墅改造后,才是向往的生活!

图片

设计说·第313期 | 317㎡现代,一半烟火,一半清欢!

图片

设计说·第312期 | 158㎡二手房的时尚蜕变

图片

设计说·第311期 | 458㎡独栋别墅,法式绮梦!(下)

图片

设计说·第310期 | 185㎡意式轻奢,定义全新养老生活!

图片

设计说·第309期 | 160㎡宋式美学,入住诗境!

图片

设计说·第308期 | 139㎡意式极简,雅奢格调!

图片

设计说·第307期 | 458㎡法式豪宅的优雅新生

图片


图片



如果您觉得乐大姐说的内容很有价值

欢迎分享转发至您的朋友圈

让更多的朋友都能轻松装修,自在生活!


当然,您也可以添加乐大姐微信号13390895455

或扫描下方的二维码

说出您的装修难题、让乐大姐为您答疑解惑

不管您是装修完工了

还是即将装修的

或者正在装修的

乐大姐一定知无不言,言无不尽


图片


图片
在看是一种鼓励|分享是最好支持
点击右下角 写留言 发表你的心声

我们期待与您的交流  



长按二维码添加乐大姐微信号

装修不烦 大姐来谈