清水江南别墅整装

设计说·第320期 | 142㎡老宅新生,惊艳中古风!

发布时间:2025-10-30

图片

乐大姐

FM104.8《家在苏州--乐大姐说装修》栏目特邀嘉宾


多次受邀成为院校家居授课讲师;
从事单位荣获装修装饰行业协会副会长称号;
1998年至今,
为万千家庭打造幸福家居的同时,也相互成为了好朋友。
任何与装修有关的问题,欢迎您添加乐大姐微信:13390895455
乐大姐会为您做一对一解答



乐大姐团队原创
320期案例赏析
2025.10.16




每一套作品,都是私人定制



ENJOY IN AUTUMN.

项目地址:园区中央景城 


项目面积:142㎡


项目风格:现代中古风


项目性质:全屋整装


项目状态:已竣工



图片




图片

老房重装,是赋予空间新生的魔法。它从居住者的真实需求出发,打破固有格局,巧妙整合功能需求与美学质感,让原本老旧鸡肋的空间焕发出独特的魅力,成为真正贴合生活理想的温馨港湾。



本案业主夫妻热衷精致生活,常在家喝茶写字,对木头的原生态质感情有独钟。我们围绕这份需求,设计方案选择“从零开始”——拆除原有装修后,选用原木与白色乳胶漆构建空间骨架,再以浅胡桃色配米色的家居串联风格,让现代美学的大方与中古风的优雅共生。





○○○
舒适宜居
Livable
Comfortable



01
客厅空间
Comfortable
Livable



A good renovation

can enhance your happiness index.



图片


图片


不同于常规电视墙,以“衣柜+装饰柜”强化收纳,吊顶暗藏投影幕布。极简线条融于整体,封闭柜藏物与开放板展示格相连,木色温润撞黑色金属,避免了一整面柜体带来的沉闷压抑,让空间有了层次感和呼吸感,既沉稳大气,又不失现代的时尚摩登。


图片


拆除客厅与南阳台的移门,界限消弭后,空间骤然开阔。洗衣区承载生活琐碎。余下空间摆下单椅和小几,冲杯咖啡便能静享时光,寻常日子也有了松弛惬意感。



TIME

20251016



图片



「 DREAM HOUSE 」
○●


好的装修不是冰冷的设计,而是把家变成“情绪出口”,在这里,可以让人卸下所有负面情绪,自在安放身心的地方,便是家该有的样子


图片
图片
图片
图片
图片
图片



图片

布艺沙发裹着温柔质感,窝进去是慵懒,坐在地毯上倚着它是惬意,每一种姿态都是舒适;钓鱼灯在夜里亮起,暖光漫过角落,成了深夜里最贴心的温度;小茶几上的干枝透着自然野趣,为空间添了抹诗意;对面的单椅不闲置,是为家人围坐聊天、彼此陪伴预留的温馨角落


图片


图片


一盏水波纹灯悬于客厅,似有人悄悄向睡眠投了一颗石子,圆形的水波纹雕刻随光舒展,层层涟漪般的动态光影漫开来,将浪漫与松弛轻轻裹进空间。



○○○
舒适宜居
图片
02
阅读品茗区
Comfortable
Livable



图片


图片


用起地台的方式勾勒区域,木质地板铺就温润基底,圆弧阳角藏起“锋芒”,阅读品茗区也随之清晰。没有厚重的墙体,光与风在空间自由穿梭,让品茗时光变得无比舒适~


图片


一方小天地藏着双重惬意,可煮茶品茗尝百味,也能让业主在此静心“充电”。一整面木质书架配着灯光,层次感拉满,整齐码放着家人爱看的书,静坐于此便觉心安。



○○○
舒适宜居
图片
03
餐厨空间
Comfortable
Livable



图片


餐厨空间装着一家人的三餐四季,锅里的汤、盘里的菜、桌上的话,都是最真实的烟火气。正因为它牵动着每日的饮食与陪伴,这里的氛围才显得格外关键——要够温馨、够松弛,才能让每一餐都成了生活里的小确幸


图片


图片


图片


餐边柜是餐厨功能的体贴延续——它默默收纳着餐具、零食等日常琐碎,让台面始终清爽,又以贴合空间风格的设计自然融入,或木色温润、或线条简约,不刻意抢镜,却成了餐厨区里一道耐看的风景



○○○
舒适宜居
Livable
Comfortable



04
门厅
Comfortable
Livable



图片


图片


玄关处,钢架借吊顶稳稳托住柜体,下悬的灯带一路连向左侧鞋柜,进门时便有暖光轻轻引路。

柜体与墙面无缝相融,让空间更显开阔;左右两侧的哑光柜门做了对称处理,中间隐藏的竖向灯带悄悄晕开柔光,按压开启的设计省去把手,只留简洁。柜内多层隔板与分区妥帖收纳日常,灯光映着植物摆件,再衬上艺术背景墙,实用里藏着雅致,悄悄抬升了入户的格调



○○○
舒适宜居
Livable
Comfortab


05
卫生间
Comfortable
Livable



图片


卫生间巧做干湿分离,让日常使用更显清爽。干区的台盆柜特意设计成悬空样式,下方柜体既能妥帖收纳衣物、浴巾等用品,让杂物隐身,又以利落的悬浮线条告别沉闷,为空间颜值添上了精致一笔



○○○
舒适宜居
Livable
Comfortab



06
休憩空间
Comfortable
Livable



图片


图片


图片


主卧的储藏柜延续了温馨柔和的浅木色基调,细腻的木纹肌理自带自然暖意,搭配利落无冗余的简洁线条,将收纳功能与美学设计悄然融合。柜门隐去繁复五金件,阳光透过百叶帘洒在柜面上,光影流动间,让整个空间既保持了干净清爽的秩序感,又满是治愈人心的居家温度。


图片

图片

用夹绢玻璃做巧妙遮挡,既不让进门视线直接落在床上,化解尴尬,又借其朦胧质感让光线柔和渗透,让空间更显通透。床头柜选择藤编款式,温润的编织纹理自带慵懒气息,与部分藤编柜门形成细节呼应,触摸间满是自然松弛感
墙面挂着同色系挂画,淡雅色调与房间融为一体,画中意境悄然延伸了空间层次,让卧室在实用之外,多了一份让人静下心来的雅致



TIME

20251016


「 次卧空间 」
○●
图片
图片
图片


次卧的美,藏在“清浅”二字里。没有浓烈色彩,只以浅色墙面衬着白色柜体,木纹里浸着阳光的温度。墙面不做过多装饰,仅挂一组画,点缀其间。夜里,床头一盏暖光小灯亮起,光线柔和得像云朵,让这间小室,成为卸下疲惫、安放思绪的诗意归处




○○○
舒适宜居
Livable
Comfortab

07
多功能房
Comfortable
Livable

图片


不被定义的多功能房,是家的“百变空间”。白日里,这里是独处放空的地方,亦可是与亲人话家常的地方;夜幕降临,若有好友来访,把沙发展开成床,再用一盏暖光台灯点亮角落,这里便化作舒适的临时客房,让好友在温馨氛围中卸下旅途疲惫,用灵活设计,适配生活的每一种场景。




○○○
舒适宜居
Livable
Comfortab

08
Comfortable
Livable


图片

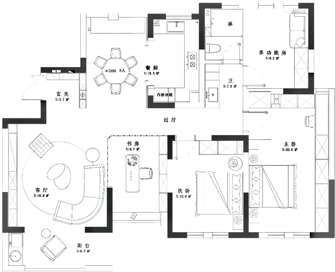
原始户型图

图片

改造后户型图


①中央景城这套房子曾是开发商精装交付,业主住了十余年。此次拆光重装,以适配业主当下的居住需求,我们做了针对性户型调整。


②原始户型入户即见餐厨,隐私性欠佳,我们设计端景隔断,以长虹玻璃实现透光不透明,巧妙遮挡。原右侧鞋柜阻碍客厅动线与视线,调整至左侧后,彻底解决这一问题。


③原餐厅面积仅6.4㎡,未设餐边柜:受空间限制,靠墙加柜会阻碍走动,收纳问题突出。我们借改造契机,打通堆放杂物、放置洗衣机的北阳台,将其纳入餐厅;并沿朝北窗户做半高柜与台面,台面颜色与厨房橱柜一致,既补充了收纳,又多出一处厨房延伸操作台。


本案业主为夫妻二人长期居住,两间卧室已满足需求。我们将原北次卧改造为开放式阅读品茗区,以一方雅致空间,承载业主对精致生活的追求。


本案主卧原是套房(含睡眠区、卫生间),但缺衣帽间,且女业主需书房,需求难满足。因业主两人长住、原户型四房两卫,且主卧门口卫生间阴暗,设计时拆除该卫生间并入主卧,进门左手做整排衣柜补收纳;同时为解决进门离床头近的隐私问题,设60公分夹绢玻璃隔断,浅木色柜体配简洁线条,营造干净自然感。




○●○●○●○●○●○●○●


09
全景图
Comfortable
Livable



图片



点击左下方“阅读全文”,即可免费在线观看本案例全景图(360°)

https://vr.justeasy.cn/view/1s1w73436982yg78-1753199980.html







END


往期案例回顾


设计说·第319期 | 574㎡法式独栋,生活的散文诗…

图片


设计说·第318期 | 234㎡栖心于雅,中古与侘寂共融!

图片


设计说·第317期 | 317㎡下叠,雅奢藏于细节~

图片


设计说·第316期 | 134㎡禅意栖心之境,养老雅居

图片


设计说·第315期 |144㎡意式轻奢,诠释高阶生活!

图片


设计说·第314期 | 233㎡别墅改造后,才是向往的生活!

图片


设计说·第313期 | 317㎡现代,一半烟火,一半清欢!

图片


设计说·第312期 | 158㎡二手房的时尚蜕变

图片


图片





如果您觉得乐大姐说的内容很有价值

欢迎分享转发至您的朋友圈

让更多的朋友都能轻松装修,自在生活!


当然,您也可以添加乐大姐微信号13390895455

或扫描下方的二维码

说出您的装修难题、让乐大姐为您答疑解惑

不管您是装修完工了

还是即将装修的

或者正在装修的

乐大姐一定知无不言,言无不尽



图片


图片
在看是一种鼓励|分享是最好支持
点击右下角 写留言 发表你的心声


我们期待与您的交流


长按二维码添加乐大姐微信号

装修不烦 大姐来谈