
乐大姐
FM104.8《家在苏州--乐大姐说装修》栏目特邀嘉宾,
赫博别墅设计创始人之一;
多次受邀成为院校家居的授课讲师;
98年至今,
为万千家庭打造幸福家居同时,也相互成为了好朋友。
任何与装修有关的问题,欢迎您添加乐大姐微信:13382100888,
乐大姐会为您做一对一解答。

新家,
新的生活,
一千个人心里,
就有一千种模样。
精装修越来越普及,但很多人认识到“精装修≠精致的装修”,它无法满足我们的日常生活需求——收纳不足,美观又跟不上审美。本案是一套由开发商提供的偏新中式精装修的房子,精装修(只有硬装)交付给业主之后,离业主的入住要求距离还是挺远的!另外,业主本身也不喜欢偏新中式风格的室内装修,就想改造一下!因为对于业主来说,这不仅是一个房子,未来十年、二十年、甚至一生都会生活在这个属于他们一家人的家里,住得舒适、满心欢喜才是心之所愿!值得去花时间、金钱和精力,把精装房变成理想中的家!
原始开发商装修的硬装略显厚重,业主更喜欢简约干练的现代风格,所以乐大姐团队设计师简化空间装饰,将原有的颜色厚重的电视背景墙/沙发背景墙拆除,用浅灰色的硬包+原木色的护墙板代替,提升了视觉美感,通透大气,不对称式的设计更显前卫时尚。大气之作的时光尽头,一幅画就能满室生辉,随意一放也百搭养眼。
客厅以黑白灰为基础色调,整体风格干净明快,纯洁安宁,视觉效果更敞亮。浅灰色的棉麻沙发组搭配了墨绿的绒布单椅,大理石肌理质感的组合茶几糅合了硬朗沉稳的都市感和满室生光的轻奢气质。冷与暖之间适度调和,久居也不会有单调乏味之感。干净清透的白色纱帘,搭配大理石台面的小几,知性而冷静,高级质感油然而生,圆润的流线造型增添了几分柔美感,视觉上的隐约穿透,形成了空间的轻盈感。

倡导轻生活的如今,唯美静心,是一种境界。
光可传达空间的情绪,合理布局产生秩序之美。通透的尺度、灵动的精致、照明点位的合理分布,让光线自然铺盖到每一处。


餐厅延续了客厅黑白灰的主色调,家具的选择都有着简练、优雅的外观,因此不但有十足的现代感,还具有一些轻奢感,整体巧妙融合,统一和谐。考虑到后期对储藏空间需求,乐大姐团队设计师用装饰柜代替了传统的餐厅背景墙,增加了储物空间,提升了视觉美感。原开发商配置的厨房与餐厅之间的移门门套颜色与整体风格不融合,所以将门套颜色进行了调整,这样更协调。

主卧将原有的硬包床头背景拆除,原有枣红色地板进行了更换,浅色系的壁布床头背景用金属线条进行修饰,相对于原有的深色系背景而言更温馨、精致、有质感。现代简约风的家具床品,释放着温婉的现代都市生活质感。
原木地板的自然清新,提升了空间的暖意,柔软了时光,营造出更加放松而舒适的休息环境。
没有复杂的装饰,以恰好满足的需求,居住在更为舒适的空间中,画是静默的诗,诗是语言的画,考究着对生活一丝不苟的表达。
女儿房原有的地板和墙面进行了调整,依旧延续了现代风格的简约,随性的布置更符合孩童天真烂漫的撒欢个性,跳脱的色彩也更符合孩童多姿多彩的缤纷世界,让她在一个最舒适的环境成长。
书房宽阔视野,涵养生活,是爱看书的主人流连缱绻的地方。新中式的风格、安静的色系、木色元素的运用,简约造型的书桌书柜,让书房多了一份返璞归真的气质。
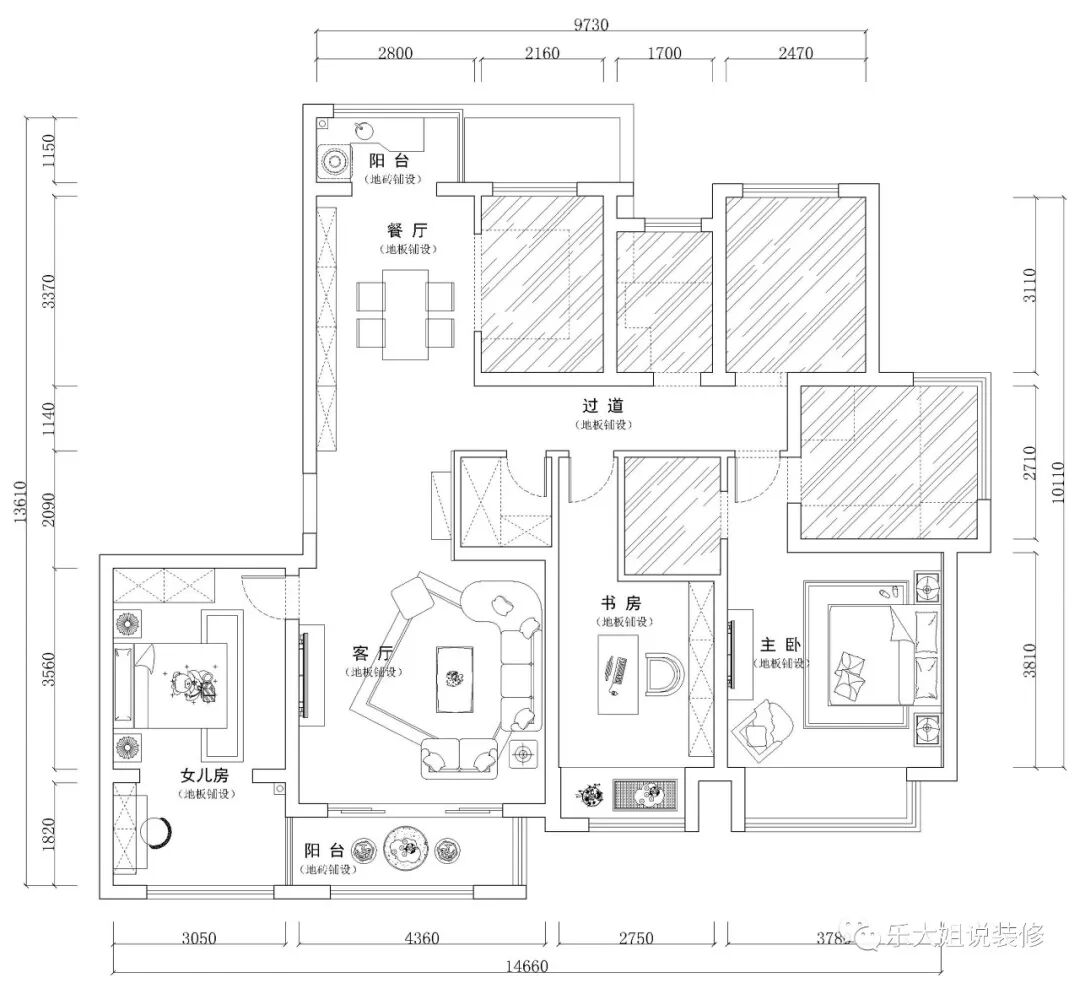
由于精装修的格局已定,所以墙体不建议大动,原始开发商的格局没有进行改动,保留了四房两厅的空间布局,不过乐大姐团队设计师通过硬装上的局部改动和后期的软装设计来实现了业主想要的最终呈现效果。【设计难点】
- 现场整体风格偏新中式,色调偏暖,地板的颜色还是红的,业主不喜欢;
- 女儿房将移门拆掉,将阳台纳入其中,增加整体空间感;
- 因精装房原来的风格偏新中式,整体色调偏暖,改造后设计师将整体色调调成中性,同时家居软装等选用了偏现代轻奢风格;
- 客厅、餐厅、过道等空间原有墙纸改为墙布,偏中式的主卧背景拆掉,改为用壁布处理的现代简约风格床头背景;
- 更换全屋地板,改成偏现代简约风格的鱼骨拼浅色地板;
- 餐厅、书房、主卧、女儿房等空间,设计功能强大的收纳柜;
- 更改顶面灯光设计,增加局部光源,选择色温更柔和的光源。
https://vr.justeasy.cn/view/9569775.html?from=timeline

如果您觉得乐大姐说的内容很有价值
欢迎分享转发至您的朋友圈
让更多的朋友都能轻松装修,自在生活!
当然,您也可以添加乐大姐微信号13382100888
或扫描下方的二维码
说出您的装修难题、让乐大姐为您答疑解惑
不管您是装修完工了
还是即将装修的
或者正在装修的
乐大姐一定知无不言,言无不尽