
乐大姐
FM104.8《家在苏州--乐大姐说装修》栏目特邀嘉宾,
赫博别墅设计创始人之一;
多次受邀成为院校家居的授课讲师;
98年至今,
为万千家庭打造幸福家居同时,也相互成为了好朋友。
任何与装修有关的问题,欢迎您添加乐大姐微信:13382100888,
乐大姐会为您做一对一解答。

所谓家,
是闹市的宁静一角,
是纯粹的情感疗愈之地,
你我待在此处,
三餐皆有味,
四季常暖人
……
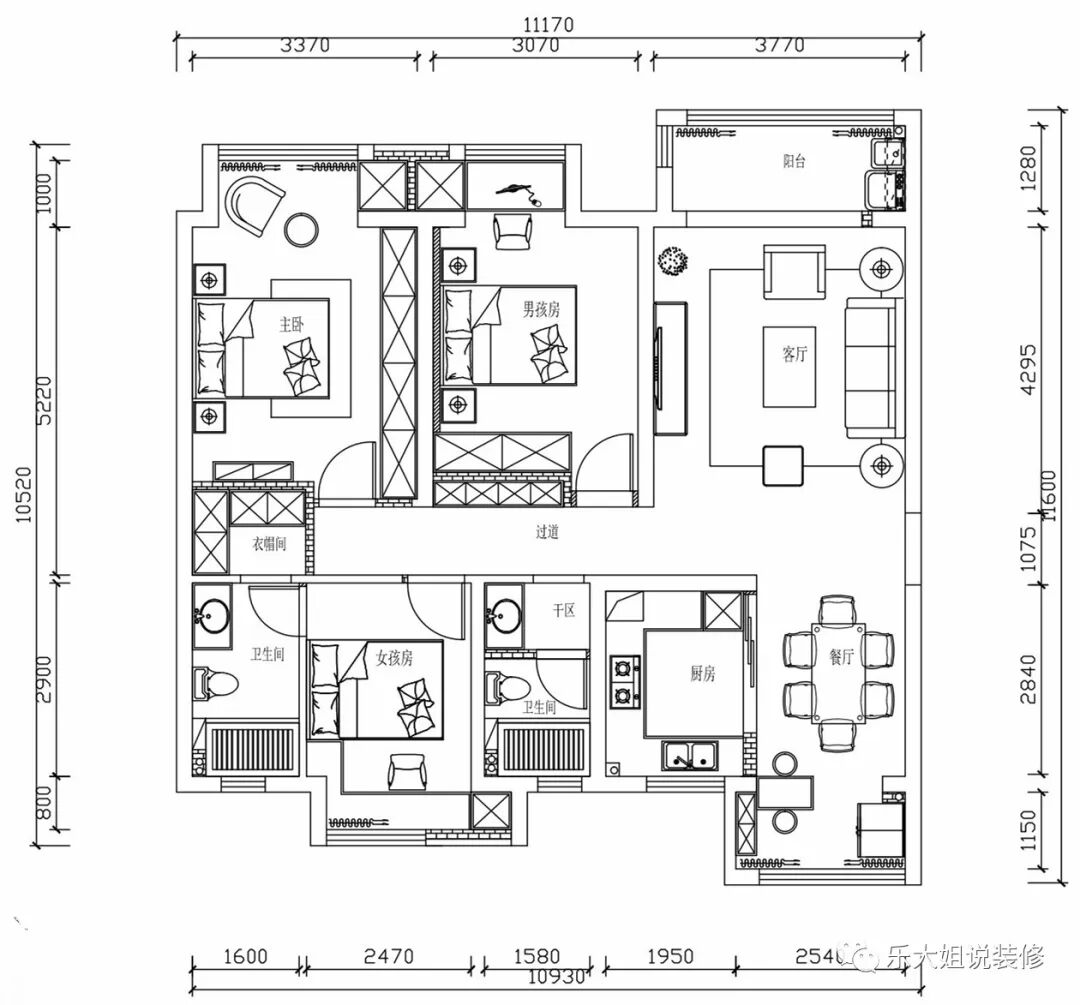
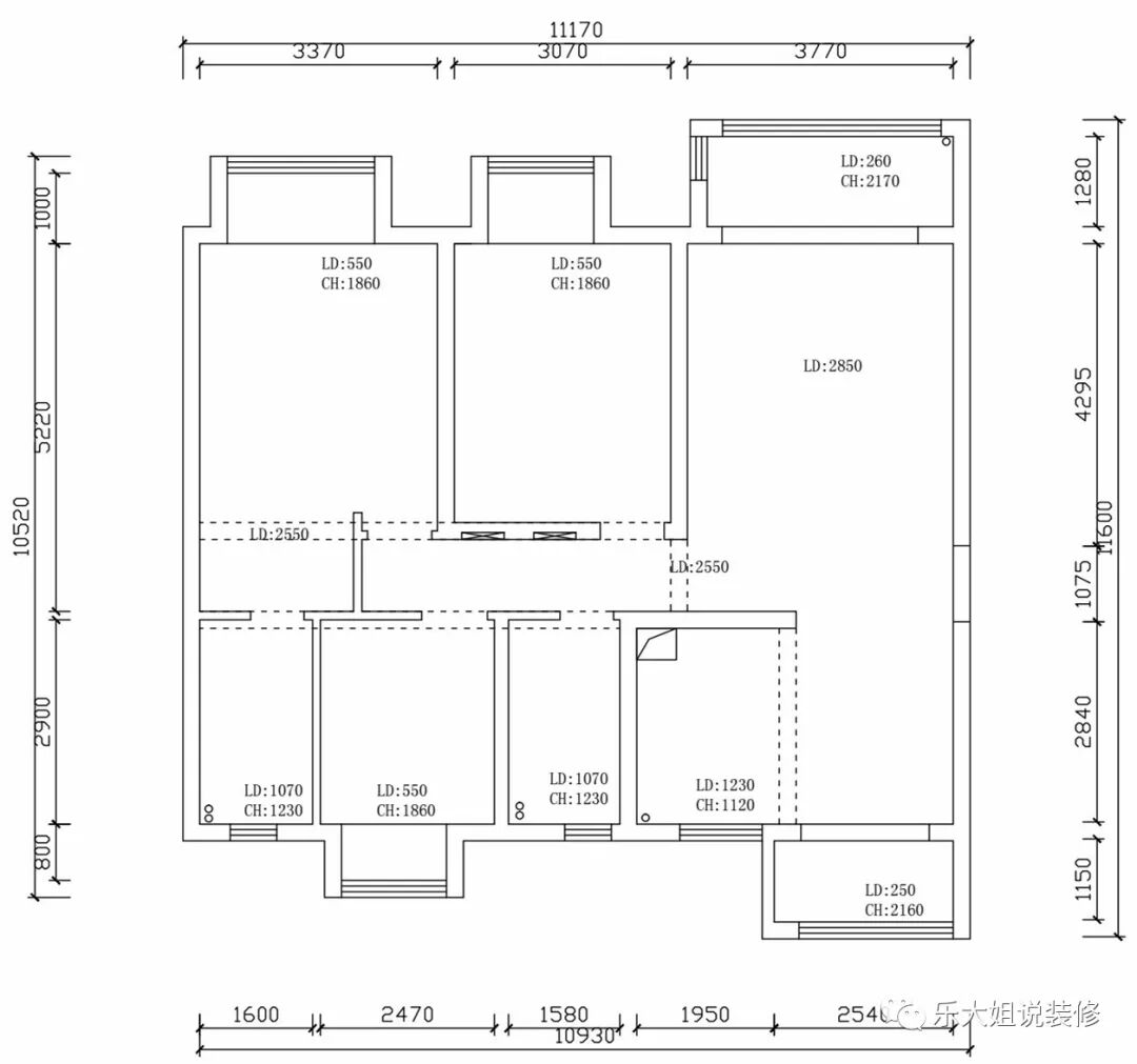
本案是一个四口之家,儿子已经上班了,女儿也正在读大学,这套房子主要是业主夫妻俩以后养老居住的,有着20年以上的居住计划。业主自己也在网上了解过很多风格,且经常出国旅游,住过很多的酒店和民宿,所以对于装修很有自己的想法,喜欢简约的设计。
功能方面希望储藏空间越多越好;希望家人回到家的时候有共同的活动区域,大家可以互相交流,但又能做到互不干扰;业主比较疼爱女儿,希望给女儿一个独立的空间,所以把主卧的衣帽间和卫生间全部给了女儿。阳台要满足洗衣、晾衣的功能。
客厅作为家中流动性较强的展示空间,乐大姐团队设计师始终思考着如何将家的温馨融入简约的现代主义。以专业的手法呈现一个极具设计感和仪式感的空间。打通客厅与阳台的隔断,整体空间尽量打开,让阳光自由洒入,增强了空间的采光与通透。客厅墙面以纯色为主,简单大气。追求用材的质感与整体软装的搭配,点缀淡蓝与暗粉色,在黑白灰形成的强烈对比下,软装呈现温柔的色彩打破硬冷,冷与暖之间适度调和,流露出几分知性与端庄、静谧与安详。电视背景墙与沙发背景墙均采用不对称式设计但同时又彼此相呼应,搭配恰如其分的灯光设计,让空间具有别样的灵动气息。

合理利用电视背景墙的收纳空间,定制的原木置物架与进出客厅/阳台之间的垭口材质相呼应,让各种物件整齐摆放,又可当做小型展示架,装饰客厅空间。
在这四方天地里,与家人一起感受日出日落,四季冷暖...客厅与餐厅相通,风格也相近。大理石桌面的餐桌与精致的餐具相配,时尚明快,椅子选择了蓝色与灰色,平衡了这里的色调。而上方几何形吊灯的金属质感提升了整个空间的精致感。在北阳台上设置了吧台和定制的收纳柜,料理时有更多的发挥空间,瓶瓶罐罐也有短暂的落脚点,让餐厅收纳空间最大化。早晨,妈妈在做早餐,孩子静坐吧台等待,温柔而细碎的阳光透过窗帘洒进房子里,一天的温暖从此刻开始。主卧沿用整体的设计风格,撇去多余的色彩和装饰,舍弃电视背景墙,改为整面墙的衣帽柜,将局限的空间功能最大化,展现业主对高效便捷生活的追求。乐大姐团队设计师用利落的线条勾勒,填充蓝、灰、白,金属壁灯和挂画为灰度空间增添一份暖意与现代意境,静谧而美好。
卫生间以灰色、白色为基地,简洁大气。以黑框玻璃作为干湿分离的隔断层,增加采光,符合通透干净的现代风格。
洗手台面向旁边延伸,增加实用性,台面下方及卫生间门背后设置收纳柜满足一切储藏和功能需求。为避免素色空间带来的乏味感,以绿色点缀,搭配绿植与装饰画,将现代时尚融入生活。- 本案户型整体比较方正,采光充足,各功能区划分比较明显,因此结构改动不是很大,改造主要集中在提高空间利用率上;
- 考虑到业主对储藏空间的需求,将客厅的电视背景墙与收纳展示柜相结合,这样既美观又起到简单的收纳功能;
- 乐大姐团队设计师将餐厅外的北阳台做成一个小小的吧台,丰富了餐厅的功能需要;
- 业主考虑到女儿的居住需求,将主卧的衣帽间和卫生间全部划给了女儿的房间,这样既增加了空间的舒适度,也确保了女儿房的私密性。

https://vr.justeasy.cn/view/9176062.html

如果您觉得乐大姐说的内容很有价值
欢迎分享转发至您的朋友圈
让更多的朋友都能轻松装修,自在生活!
当然,您也可以添加乐大姐微信号13382100888
或扫描下方的二维码
说出您的装修难题、让乐大姐为您答疑解惑
不管您是装修完工了
还是即将装修的
或者正在装修的
乐大姐一定知无不言,言无不尽