FM104.8《家在苏州--乐大姐说装修》栏目特邀嘉宾,任何与装修有关的问题,欢迎您添加乐大姐微信:13382100888,本案是一套联排别墅,业主是苏州人,房子买来是一家四口日常居住的,父母偶尔也会过来住住。业主拿房已经两年了,由于生二宝耽误了装修计划(二宝现在才几个月),期间有过N多装修公司打电话给他,让他很烦心!业主说:装修是件大事,不能只考虑个人关系选择,不然后面自己就没法安心了!
风格上,因小区外环境偏新中式,业主要求共享区间以新中式风格为主。卧室这类私人空间则根据居住者的喜好来定,大儿子现在上初中,有自己的想法,他的卧室以现代风格为主;女主人比较喜欢小美,故主卧的风格是小美式。
身处繁华,心入山林。人们对于生活的体验源起对自然艺术的向往。乐大姐团队设计师糅合日常生活与哲学,以静谧优雅的风格诠释现代中式的诗性与意韵,亦在其中营造生机与秩序,构建居住空间艺术且感性的美学姿态。
门廊相迎、入户玄关,门厅以开放包容的立意,迎接归人。片刻的停留,轻轻抖落凡尘。
玄关设计运用了大面积的浅色系,搭配山水、腊梅、花格等中式元素,彰显庄重典雅的气质,营造出蕴含东方文化的意境空间。

客厅延续了传统的围合式,布局中正、大气、开敞,家具在空间中的放置分合有致,既可众客以聚,亦可围合小叙,椅踏端庄、案几有序、器物风雅,极具大宅之气。不管是在沙发上享用一盏清茗,还是在一隅静享与书本的独处时刻,一种优雅的、精细化的新中式风格都会细细将你包裹。
客厅以简洁柔和的中性色为基调,通过深沉暗雅的色相过渡、自然纤维的融合渗透,把生命体无形的能量融入其中,创造出独特的审美,传递着当代东方美学的安然、笃定和恒久。同时,通透的空间格局,让居者无时无刻恣意享受明媚的光。
东方水墨与大理石的相遇,二维画卷与三维空间的互为映照,留出无限暇想的想象空间,于方寸之地,得山水之真趣。灯光线条经设计师纵横交错的布局,仰视时星光璀璨尽落眼底,博古架、背景墙在诗意光影中明暗交织、清隽有致,赋予空间独特的审美特质。沙发背景墙上一幅色彩素雅的“小桥流水人家”水墨艺术装置,宛如一颗氤氲的明月,为空间带来宁静与温馨。人行其间仿佛穿行于月光如水、云层缠绵的夜空,轻盈翩跹,自成一个世界。
每一处摆放都是空间画卷的笔触,黑、白、深、浅恰如其分,东方的静谧空灵和当代的简约利落,达成精神统一,与光和空气交织,晕染一幅自然水墨。客厅、餐厅、厨房流畅衔接,视线开阔,增加空间的互动性。乐大姐团队设计师以当代美学格调的构图与铺陈,凸显设计笔触之下的意境之美。
一盏精巧玲珑的吊灯下,雅致的饰品点缀营造每日与家人就餐的小小仪式感,如此美好的用餐空间,令一粥一饭间也变得悠然惬意。主卧作为主人最为私属的空间,设计师把它放在顶层,风格上也与整体的新中式迥然不同,是女业主喜爱的小美风。典型的米白配色,以实木为主,美式元素深浅搭配,明暗交替,急缓交错,是一个画卷,也是一件华衣。空间开阔,采光良好,顶面延续原有的结构加以斜坡式吊顶,使空间长宽高更为和谐。为营造复古雅致的睡眠环境,深灰色的背景墙在整个空间中起到了很大的作用,使整个空间更沉稳,不漂浮。主卧着重于日常间,在地台上窗户前浅酌盎然,回应春意暖阳,体现高质感生活细节,于空间每一处,绽放自然明媚的光泽。
主卫有窗,采光很好,乐大姐团队设计师以大面积的浅灰色墙地砖打造更加明亮的卫浴空间。
干湿分离,淋浴间、浴缸、马桶都以小隔间分开。功能丰富齐全,慢慢享受生活带来的美好。
中式风格的主要元素离不开山水的贯穿,只是用不同的符号存在空间。通过设计传达古韵雅致的意境,舒缓自然的藏纳于内。
三层次卧是儿童房,设计相对年轻,现代风格带点新中式元素,空间色调清中有雅,舍去深木色的木装饰,多采用浅色系材质,白色的柜体,米灰色的壁布,简约的吊顶,都比较符合年轻人的审美。在精妙的细节设计中,见微知著。自然而艺术的气息,是融入生活的真切感悟。光与植物,自然的纹理与韵味在同一空间共奏清雅格调,带来纯粹而放松的休憩时光。由于原始结构中一楼是车库,外面还有个露天的院子(但被楼梯占用了),层高不是太高,采光通风很差,乐大姐团队设计师通过后期的设计改造把除了两个车位外其他剩余空间都高效利用起来,院子也做得更宽敞舒适些。一层入户长廊左侧作为储物的空间,用于存放衣服和随身物品,正对水墨山水背景,营造一种古典的气韵。
同时一层右侧则为业主配备了一个私人影音室和棋牌室,为日常使用和朋友聚会提供一个娱乐区域。
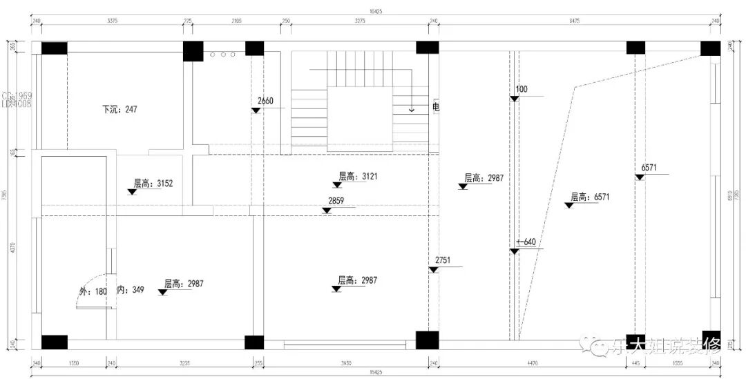
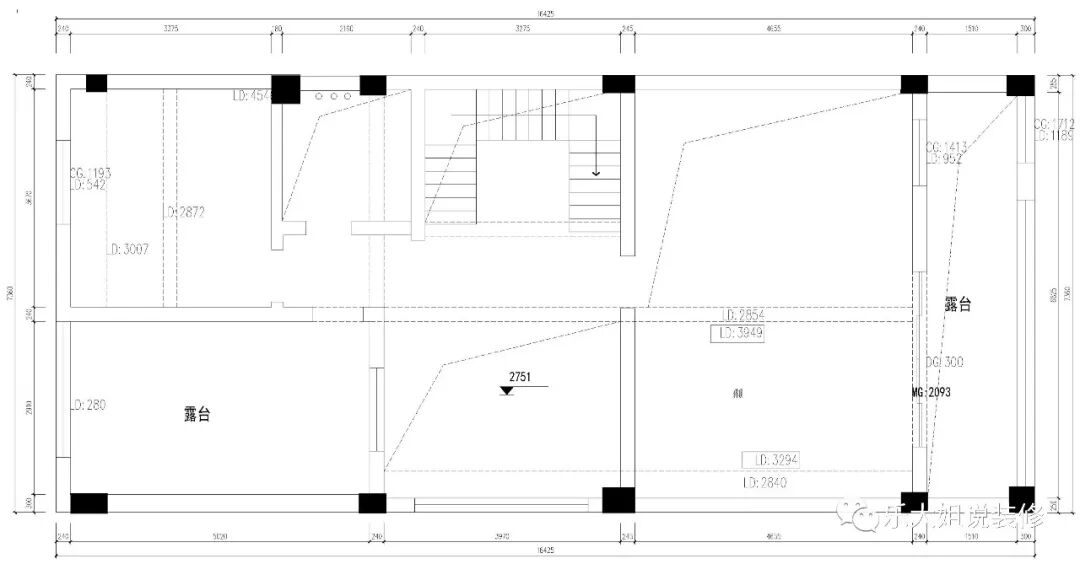
一楼原始户型图

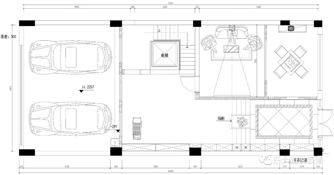
一楼改造后户型图

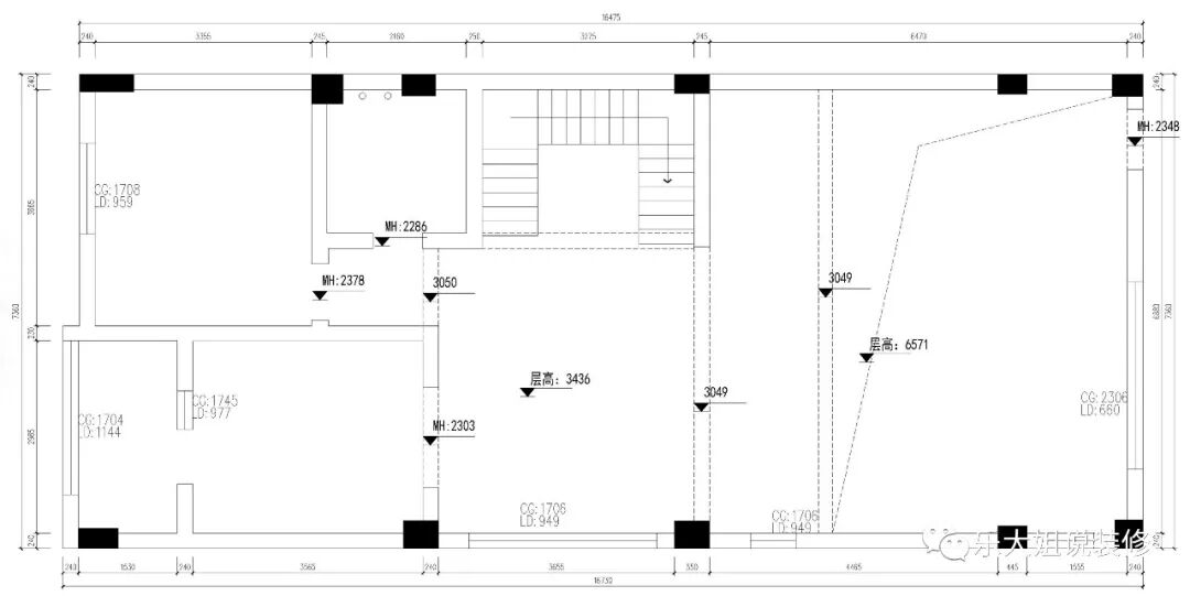
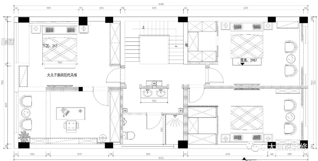
二楼原始户型图

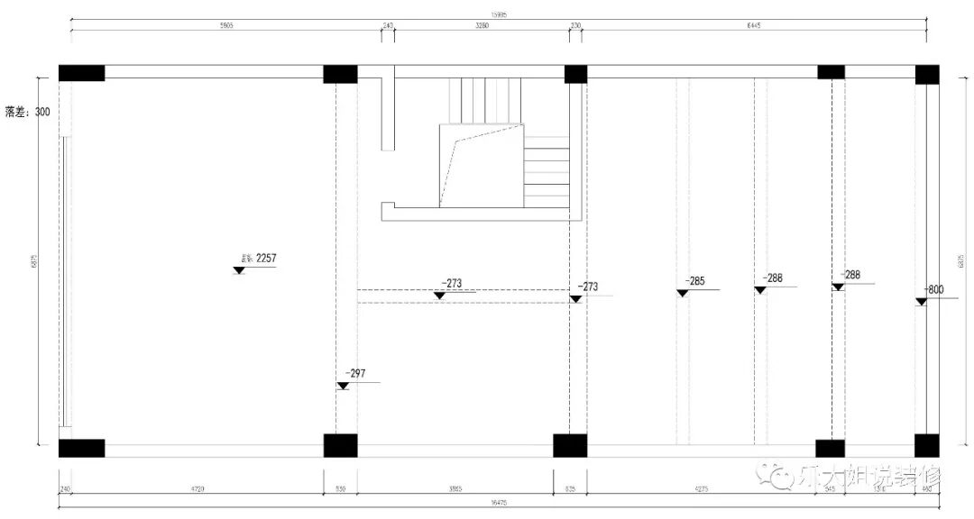
二楼改造后户型图

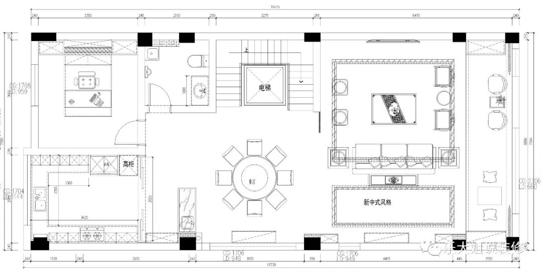
三楼原始户型图

三楼改造后户型图

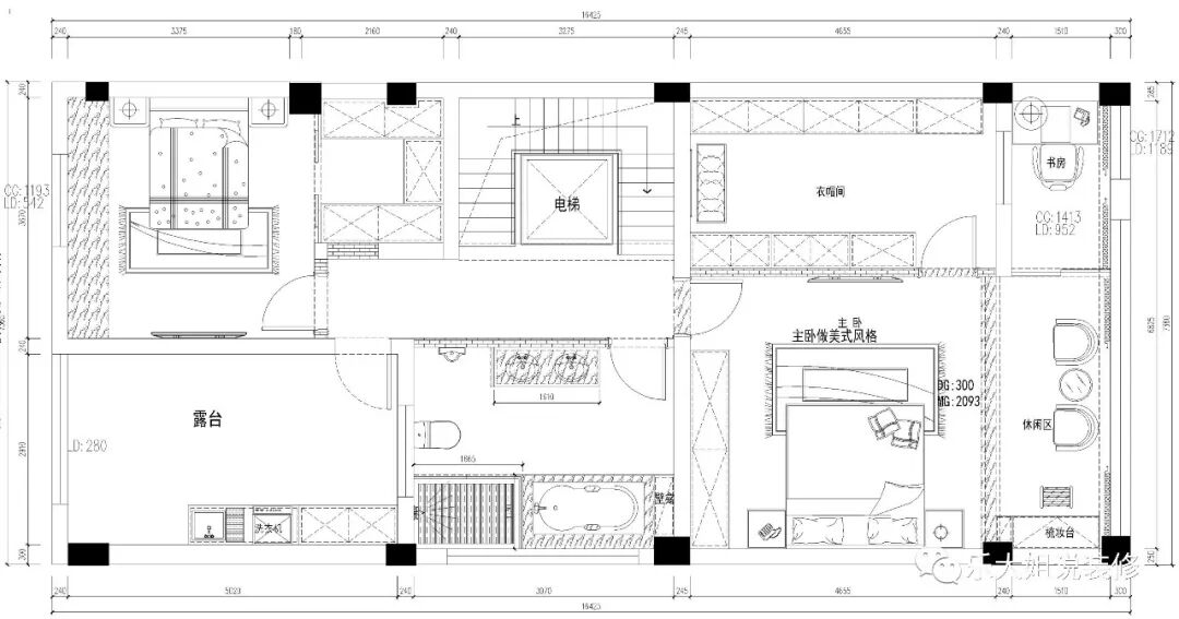
四楼原始户型图

四楼改造后户型图
- 因本案总层数在后期土建改造后会达到五层,所以乐大姐团队设计师根据业主的需求在楼梯间加装电梯,直达每个楼层,方便快捷;
- 将原始户型中的厨房位置外扩至阳台,这样厨房空间更宽敞,满足了业主对厨房功能性的需求,同时在中式厨房的基础上外加了一个蒸烤位和早餐台,方便日常使用;
- 根据业主的需求,主卧区域采用套间设计——睡眠空间+卫生间+衣帽间+休闲平台+书房,其中独立书房是将原始户型中的露台通过后期的土建改造实现的,这样的设计大大提高了主卧空间的利用率和舒适度;
- 次卧采用的也是套间设计,功能上除了卧室,还有书房和衣帽间,除此以外也预留了小朋友们的玩耍空间;
- 客厅除了沙发休息区还设计了茶室,茶室既加强了空间的中式氛围和生活体验感,也便于亲朋好友间交流。
https://vr.justeasy.cn/view/9146064-1603187076.html?from=timeline

如果您觉得乐大姐说的内容很有价值
欢迎分享转发至您的朋友圈
让更多的朋友都能轻松装修,自在生活!
当然,您也可以添加乐大姐微信号13382100888
或扫描下方的二维码
说出您的装修难题、让乐大姐为您答疑解惑
不管您是装修完工了
还是即将装修的
或者正在装修的
乐大姐一定知无不言,言无不尽