发布时间:2020-04-29

客厅/Living Room
本案为平层空间,乐大姐团队设计师以开放的布局思维对空间展开设计,在室内营造平静又具备穿透感的有序氛围。自然光透射进室内,与室内多个面碰撞并发生交集,谱写不同的光谱。
整体空间以大气的黑白灰为主色调,通过融入木的质感以及不对称式挂画的过渡,呈现简洁明快的生活气息。灰色地毯搭配现代家具,茶几、边桌、台灯与挂画则在稳重的空间里做轻盈点缀。
电视背景墙很简洁,用浅灰色大理石错落铺贴,设计了不同的尺寸增加了墙面的层次感。灯带由客厅的吊顶延伸而来,黑色的电视固定在墙面上。
底部和侧手边的浅色实木柜体成为收纳柜,为大理石背景增设一丝趣味感层次感,给人的感觉简洁又时尚。同时,也有足够的空间可以摆放书籍、CD和艺术品。
餐厅/Dining Room
客餐厅一体化的设计,在视觉上保持了现代家居的层次感。延伸客厅电视柜的餐边柜设计,增加了空间收纳与日常生活的便利,同时用白色中和木饰面,使整个空间看起来温和不显花哨,贴合墙面且没有突兀感,间层之间的灯带消除了木材的沉闷感。
主卧/Master Room
主卧的自然氛围得益于整体软硬装的搭配,木质地板、米灰色墙面的大背景,为整个空间打下沉稳的基调,地毯、主灯、床头柜、床头灯现代感强烈,丰满整片空间,金属的细节带来一丝轻奢感,简约之中体现品味。
得益于飘窗优渥的采光,主卧通透明亮。清晨醒于暖阳中,为心灵种下一点光明,夜晚眠于星光下,洗去一身疲惫,怡然自得。
女儿房/Daughter's Room
卫生间/Toilet
主卫生间也包含了大量爵士白大理石,在灯光的照耀下有种纯净透亮的感觉,灰色的地面反而使整个空间沉静下来。洗漱台与沐浴区半分离让空间更开阔,并有一定的延伸感。梳妆镜柜门增添明亮的灯带打造人性化的卫浴空间。
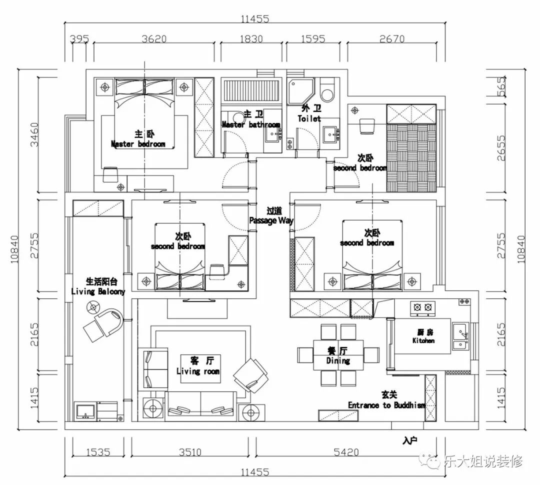
平面方案/Flat Plan
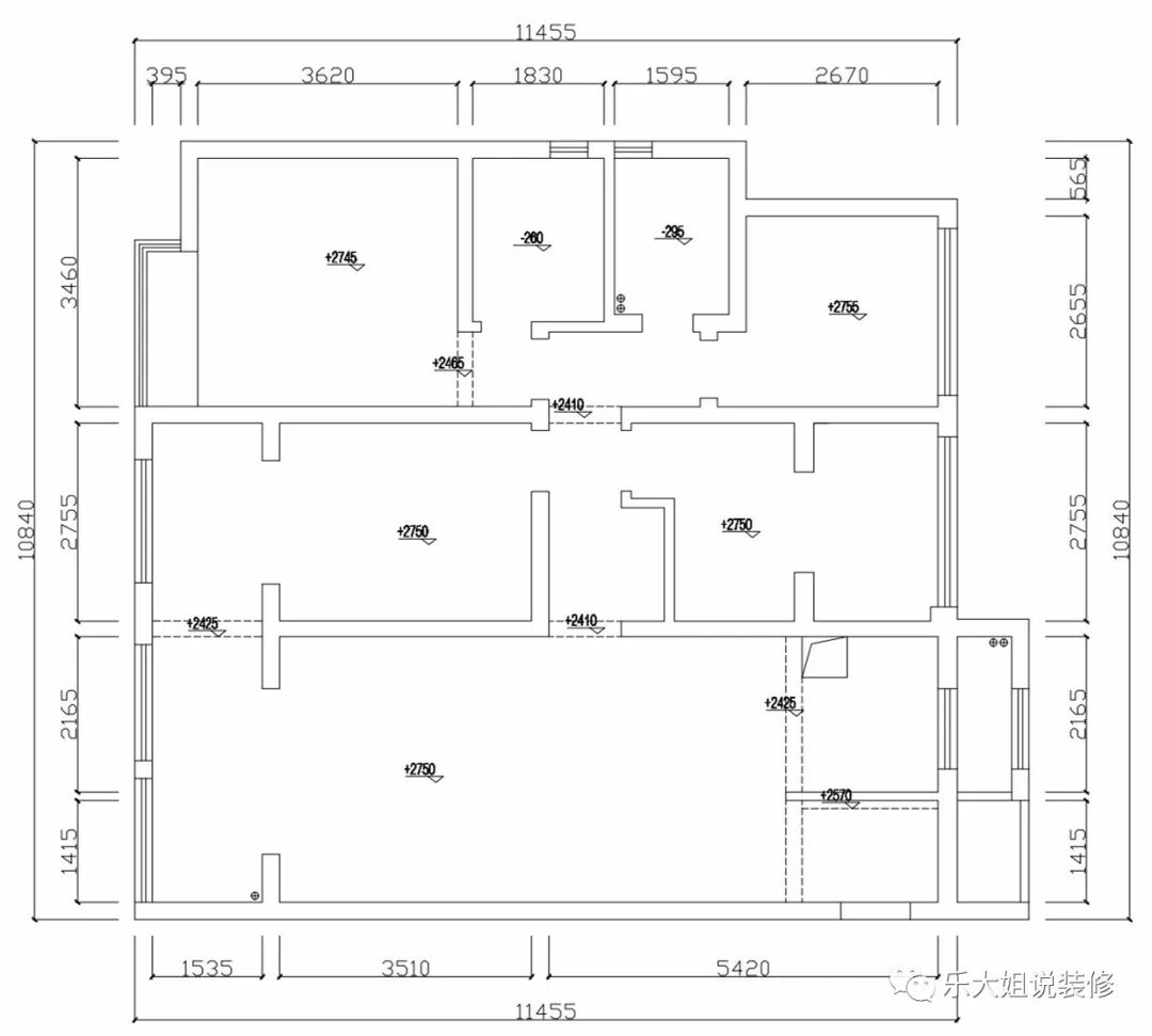
改造后户型图
全景图/Panorama
https://vr.justeasy.cn/view/8377758.html?from=timeline
如果您觉得乐大姐说的内容很有价值
欢迎分享转发至您的朋友圈
让更多的朋友都能轻松装修,自在生活!
当然,您也可以添加乐大姐微信号13382100888
或扫描下方的二维码
说出您的装修难题、让乐大姐为您答疑解惑
不管您是装修完工了
还是即将装修的
或者正在装修的
乐大姐一定知无不言,言无不尽
长按二维码添加乐大姐微信号
装修不烦 大姐来谈