清水江南别墅整装

设计说·第65期 | 195㎡二手房改造,大平层这样装才叫不负时光!

发布时间:2020-04-29

乐大姐

FM104.8《家在苏州--乐大姐说装修》栏目特邀嘉宾,

赫博别墅设计创始人之一;

多次受邀成为院校家居的授课讲师;

98年至今,

为万千家庭打造幸福家居同时,也相互成为了好朋友。

任何与装修有关的问题,欢迎您添加乐大姐微信:13382100888

乐大姐会为您做一对一解答。



图片

一个好的居所,

可以将一日的光阴变得清透,

最能懂得生活里烟火的日常,

亦能从烟火里找寻诗意,

晨昏明灭里,

一日日如诗。


项目地点:锦华苑
项目风格:现代美式
项目面积:195㎡
项目性质:全屋整装
项目状态:设计完成

本案是业主刚刚购买的二手学区房,准备长久自住的,所以需要拆成毛坯,重新装修!家中常住人口比较多,有两个小朋友,有老人,所以对实用性要求比较高,特别是客厅边上的学习区对于孩子们的学习娱乐以及与父母之间的相处尤为重要,因此功能上还需要多元化。


风格选择上,业主明确要求美式,因为家里有一套美式家具会保留,放置主卧。



图片

客厅/Living Room


图片

图片

最美的日子,是有阳光清风的抚慰,是有爱人眼神的温柔交汇。乐大姐团队设计师在做空间设计时,模糊空间之间的边界,客厅、餐厅、休闲区共处一个围合空间,彼此相通,从而让家人之间有更多的互动,产生更多的交集与对话。


细微处的设计总是能打动人心,也让房屋的能量保持一种心动却恒久的温度。


图片
图片
客厅主体家私选用的是现代美式的布艺沙发,质感温润而自然,铆钉的细节体现出家私的精致感。靠椅和坐凳也是选用同色系,使空间气质整体统一,宁静而淡雅。


图片图片
客厅克制色彩,通过巧妙地运用物料的“质”,让整体不同程度的淡雅灰调成为统领空间的主体温度,气质简洁却丰富。流畅的金色为空间增加了华丽度,成为了整个空间色彩中惊鸿一瞥的上升的0.2℃。

同时,用亮橙色、墨绿色和深蓝色做点缀色,高级感扑面而来的同时丝毫不显压抑感。

图片
电视背景墙没有过多的装饰,首先映入眼帘的是超大的投影幕布,搭配独特造型的吊顶,让整个空间更有层次感,想想周末一家人躺在沙发上,拉上窗帘,共品一部老电影,只盼时光越慢越好。

图片

餐厅/Dining Room


图片图片
餐厅与客厅相通,在视觉上更开阔,统一浅灰色为底色的墙面与柜面以及通透的大理石使用餐环境更明亮。特别定制的餐边柜增强了储物效果,侧边酒柜已不单是个储物空间,更像是业主陈列“艺术品”的展柜。

黄铜的金属质感打破木作的沉闷,为餐厅空间添加精致感。


图片图片
餐厅抽象元素的装饰画,体现都市的味道,画框的材质与灯具的金属质感相呼应,轻度奢华的感觉应运而生,整个空间并没有用跳跃色去打破统一的调性,而是点缀一些绿植去提升空间的生命力。


图片

休闲区/Leisure Area


图片

休闲区域由三种不同形式的空间陈设方式组成,既是书房又是日常休憩的场所,同时还隐藏着家中的收纳空间,饶有趣味性的组合,即舒适自在又有足够的空间解决业主的需求。


客厅与休闲区采取的东西两面开放式格局让整个公共空间有了一个很好的视觉通透感,延伸到不同区域抑或是户外景观,阳光也忍不住偷偷溜进来瞅一眼。


图片
图片
在窗边,随手摆上一把舒适的沙发,惬意的享受午后柔和的阳光,生活的步调变得缓慢而轻柔。


图片

主卧/Master Room


图片图片
主卧,延续公共区域的基调,美式与轻奢浓缩其中。米灰色背景墙以绿意盎然的风景画点缀,简单而不乏味;美式的深色木质家具,搭配蓝色系的床品,雅致而不失时尚;窗帘也选择了蓝紫色系,与整个房间色调呼应。


图片
图片
乐大姐团队设计师用一整排衣柜造型的隐形门将衣帽间与卫生间隐藏其后,让卧室的墙面更加干净整体。定制的衣帽间设置,将男女主人一年四季的衣物合理收纳,井然有序的生活更加轻松舒适。


图片

女儿房/Daughter's Room


图片图片

女儿房用浅灰色和白色打造出了更加轻快活泼的氛围;精心挑选的梳妆台和挂画显得年轻又富有张力,带着别具一格的时尚感;靠墙的衣帽柜增加了储物空间,美观实用。


图片

改造前现场照片


图片

业主买的这套二手房原来的装修风格偏中式,色调比较深沉,很多家具设备都比较老套过时了,动线也不是很明晰,采光比较差,储物空间也不够,不符合业主对生活的要求与规划,所以想重新好好装修一下。


图片

平面方案/Flat Plan


图片
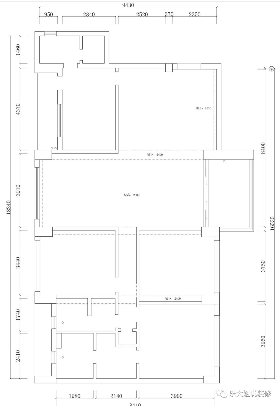
原始户型图
图片
改造后户型图
  • 本案户型是车厢式的,可改动的空间比较大,很多区域可以抹零重新分割,乐大姐团队设计师根据业主的需求规划了客厅、餐厅、休闲区、主卧、老人房、男孩房、女孩房、休闲区、卫生间以及厨房;
  • 把餐厅设计在门厅后的区域,这样离厨房比较方便;
  • 厨房区的改动为家里新辟一个房间,满足了老人房的需求;
  • 休闲区的功能比较多元化,同时也满足了借光的目的。


图片

全景图/Panorama


图片
https://vr.justeasy.cn/view/9020136.html?from=singlemessage


长按二维码添加乐大姐微信号

装修不烦 大姐来谈