
乐大姐
FM104.8《家在苏州--乐大姐说装修》栏目特邀嘉宾,
赫博别墅设计创始人之一;
多次受邀成为院校家居的授课讲师;
98年至今,
为万千家庭打造幸福家居同时,也相互成为了好朋友。
任何与装修有关的问题,欢迎您添加乐大姐微信:13382100888,
乐大姐会为您做一对一解答。
本案是改善性住宅,上叠户型,业主一家三口,比较注重生活质量,喜欢古典园林,所以在确定装修风格时非常坚定地选择了新中式。但同时业主并不喜欢过于繁杂的装饰,所以设计整体色调以黑白为主,适当地加入花格窗,以及园林式的门洞造型。
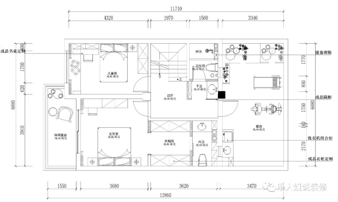
其次空间划分上,一楼以家庭活动、会客为主,二楼主要是卧室,还有一个阁楼,以储物休闲为主。儿童房则是地中海风格的,这是根据孩子自己的要求为他量身打造的专属于他的小天地,设计要充分尊重居者的想法。
客厅于一幅长轴画卷展开,乐大姐团队设计师通过艺术的手法将“荡胸生层云,决眦入归鸟。会当凌绝顶,一览众山小。”的白描胜景图从沙发背景墙延续至大理石电视背景墙,将两个功能空间连为一体,让人在日常起居中畅然入画,吸纳山水之灵气。东方韵味艺术品恰到好处地与客厅空间交融,崎岖的地毯肌理,如同岩石溶洞的时间记忆,已然超乎于生活之上。
色彩在空间中以画龙点睛的形式存在。整体采用克制及收敛的方式,色彩明暗的交替使用凸显出空间的沉稳与层次感,同时点缀部分饱和度高的色彩,使空间优雅又不显沉闷,创造出独特的审美,传递着当代东方美学的安然、笃定和恒久。
墨色格栅木饰面、黑色中式简约风家具、黑色花格窗、黑色门洞及黑色走边线条带着一方清冷与理性。
枫叶红的软装配饰让雅致的客厅有了活跃的元素。艺术品的选择基本都选用了新水墨风格的作品,用一种不浮夸的手法表达出了鲜明的文化色彩。同时,通透的空间格局,让居者无时无刻恣意享受明媚的光。


材质本身就是一种语言,用天然、质朴的材质,去诉说真实的故事。餐桌仪式的呈现是通过不同自然材质的器皿搭配和绿植的点缀、艺术品的展示,悄无声息的将生活的烟火气落定。
白墙和灯光,随便裁出一部分,都是红叶绿枝的完美幕布。细密的红叶,在幕布上重叠伸展,是初春里的生命图景。简洁、优雅、淡然的审美意趣,让人感受到一缕东方墨韵余香。
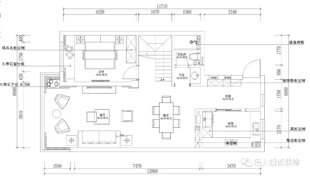
人流动线,真正贴合日常使用细节。入户玄关与楼梯过道垂直,不仅减少过道面积的浪费,也简化了行为动线。无论是去二楼主卧、儿童房还是餐客厅,仅需半条过道。

主卧位于二层,大面落地窗,外有阳台,可远眺独墅湖,景色宜人,是为明楼。床头背景融入东方禅意哲美,轻漾出一片涟漪的山川白云,与整体空间类似苏式庭院移步换景般的布局相呼应,无限通达心境况味,是乍见之欢的视觉感染,更是久处不厌的灵魂陪伴。时尚简约的床摆放在泼墨纹理的地毯中央,饶富生趣。以蓝、咖色为主的抱枕,与床头装饰画互为映衬,为房间注入清新宜人的活力气息。

主卧套房配备了独立卫生间及储物衣柜,让主人可以享受相对私密、自由的空间。惬意的阳台成为独处放空自我的第五空间,安静,舒服。每每闲暇,或小憩,或远眺一览湖景,心中亦有对生活的另一番超脱与气度。

儿童房,以海洋冒险为主题,充满浪漫主义的童话元素,来自对梦幻世界的有趣探索,搭建绚丽明亮的视觉城堡,在童年时光里熏染出不一样的浪漫色彩,开启半梦半醒的生活之旅。


在儿童房的设计当中,乐大姐团队设计师充分尊重孩子的需求与天性,精心考量空间舒适度,注重生活的细枝末节,融入人性化的关怀,无不向孩子传递着温暖、爱与智慧。

厨房的设计呈现一个长U字形,最大化地利用了厨房的空间。设施设备一应俱全,多橱柜满足烹饪收纳需求,温润的灯光搭配金色走边的灰色橱柜、黑色走边的灰色地砖,营造出一种温暖的感觉。
以大理石砖铺满整个卫生间,墙地面泼墨般的花纹给空间增添时尚气息。洗漱台与沐浴区半分离让空间更开阔,并有一定的延伸感。梳妆镜增添明亮的灯带打造人性化的卫浴空间。

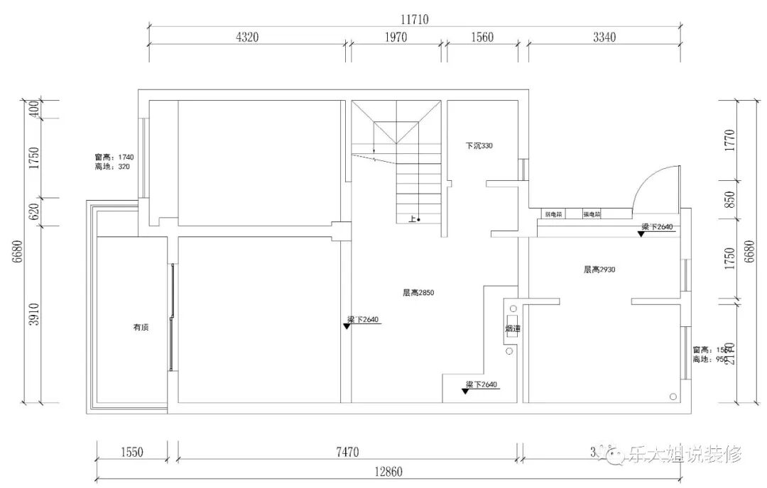
一楼原始户型图

一楼改造后户型图

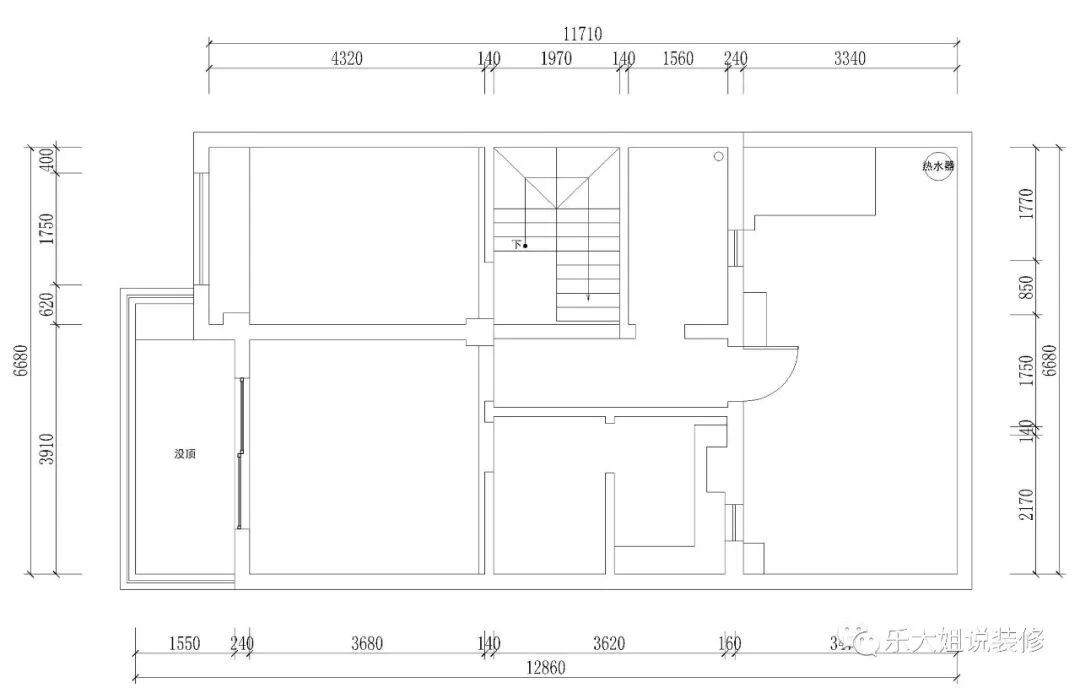
二楼原始户型图

- 本案是一个上叠户型,整体面积不是很大,结构比较规整,分为上下两层,一层主要是客厅、餐厅、厨房、外卫,二楼主要是以主人房为核心的起居空间,上下动静分开;
- 作为改善型住宅,本案主要以一家三口居住为主,原始户型中二楼有两个卫生间,乐大姐团队把内卫的洗澡功能取消,只留马桶和台盆,这样可以给女主人留有一个大小适中的衣帽间,而外卫则设置成干湿分离,完全可以满足生活需求;
- 一楼阳台由于不需要考虑晾晒,所以把它打通扩进客厅,从而使得整体空间感有所延展;
- 考虑到家庭人员结构以及舒适性,将所有的房间全部设在朝南的区域,采光通风都特别好;
- 二楼的露台则根据业主的需求做成了晾晒区、健身区及绿化区(女主人喜欢养花草)。
https://vr.justeasy.cn/view/9027456.html?from=timeline&isappinstalled=0&clicktime=1577767827&enterid=1577767827