
乐大姐
FM104.8《家在苏州--乐大姐说装修》栏目特邀嘉宾,
赫博别墅设计创始人之一;
多次受邀成为院校家居的授课讲师;
98年至今,
为万千家庭打造幸福家居同时,也相互成为了好朋友。
任何与装修有关的问题,欢迎您添加乐大姐微信:13382100888,
乐大姐会为您做一对一解答。
你向往的生活是什么样子的呢?是有一套属于自己可以随意折腾的房子?还是每个清晨日暮都在的爱人呢?或是三个奶声奶气的小影子?
每个人对幸福的定义都不一样,但是,幸福的人一眼就能看出来……
项目地点:国瑞熙墅
项目面积:181㎡
项目风格:现代轻奢
项目性质:全屋整装
项目状态:设计完成
本案是一套改善型住宅,2020年11月份才拿房的叠墅。因为是要长久住的,业主全家对这套房子的期待值都很高!业主夫妻俩是地道苏州人,他们有一个很幸福的烦恼,3个9岁的三胞胎儿子(这种幸福是很难得的,培养起来也是需要很多精力的)!业主是80后,很年轻也很时尚,所以整体设计采用的是现代轻奢风。因家里有三个男孩,希望空间沉静点,传统蓝色显得单调,乐大姐团队设计师在现代风格的基础上增加了一些鲜亮跳跃的色彩,从而使空间显得灵动,不会因为蓝色显得不够温馨。本案以当代城市精英阶层的本真生活状态为原型,在纷繁的“风格”中,保持冷静和理性,直观地洞见到美与奢的统一性,为他们实现有质地的生活空间。设计师根据业主的居住需求解构空间功能,将客厅、餐厅、书房三个功能区集于一体,呈现脉络清晰的生活动线。整个空间以灰色为基调,不同梯度的灰经由光线变化堆叠出丰富的层次感,如思想者般稳重的理性之美渗透于细部,经岁月积淀的睿智优雅、均衡的节奏维度在这方小场景中营造得游刃有余。
黑白相间的菱形格纹地毯纹络凹凸起伏,与沙发形成不同色阶的对比与延伸。高贵的灰色大理石为基调搭配出低调奢华之感,茶几拉丝面金属材质点亮了空间活力,空间疏密有致,调节空间节奏感,进而使环境和谐有序。
暗红色的绒布材质靠椅是整个空间不安份的元素,与墨绿色的沙发、蓝色的窗帘相冲撞,造型舒展,仿佛向人发出邀请,落座瞬间,又有一种被温暖环抱,拥有自己一片独立私密的小天地的体验。
电视背景墙上轻盈的灰蓝色装点在爵士白大理石周围,犹如室外穿透纱帘的阳光那般地柔和,又如幽蓝色海平面一样的深邃宁静,自然的气韵在此间静谧地生长,让内心得以片刻的安放与休憩。
乐大姐团队设计师设计师关注空间的灵活性和延伸感,客餐厅采取一体化的设计,通透宽敞,增加了整体空间的层次感。同时,采用不同色调以及材质的家具予以区分,餐厅上方的蜿蜒灯盏犹如热带丛林的植物果实,座椅的颜色同色系着客厅小坐凳的色彩,会讲故事的设计师得心应手以材料与色彩营造空间氛围。
我们面对繁忙与压力的同时,回归到家庭中,却也始终保持内心的柔软与宁静,品味着一杯香槟,约上三五好友朋酒之会,依然如此优雅而从容。


“大礼不辞小让”,真正的奢华隐藏于细节的雕琢之中,集于凝练成简洁、优雅的存在,才能直抵内心。主卧同样以低饱和度色彩为主、高饱和度装饰营造空间质感,带有自然系色彩,注重简单舒适的大气装修,以创意软装点缀 ,打造出极简轻奢的高雅生活风。有生活,有温度。
背景墙柔软的肌理线条与内嵌的射灯、悬挂的壁灯散发出柔软微妙的灯光,为空间增添细腻灵动的情调。间接光源带来的温暖质地,为现代风格卧室注入了一种旧时光的随意慵懒。
因业主家是三胞胎,设计师根据每个孩子不同的性格特征、兴趣爱好设计了不同风格的房间。其中二楼北次卧是以海洋冒险为主题展开的设计,加上富有童趣和设计感的物品装饰,整个格调显得生动活泼、童趣盎然。
乐大姐团队设计师应业主的要求,在一楼电视背景墙一侧隐形门后的儿童房里融入漫威电影元素(三胞胎中有一个宝宝喜欢),大红色和蔚蓝的碰撞,小巧精致的漫威卡通进行点缀,让室内的每一个角落都拥有个性而美好的氛围。
因三胞胎中有一个宝宝性格比较安静乖巧,设计师在二楼南次卧中摒弃了传统认知的鲜艳色彩,以白灰蓝为主调,整个空间显得沉静安然。同时,蓝色墙面上缀着小星星,地板上还有各种小动物造型的布玩偶,不乏童趣,可爱讨喜。

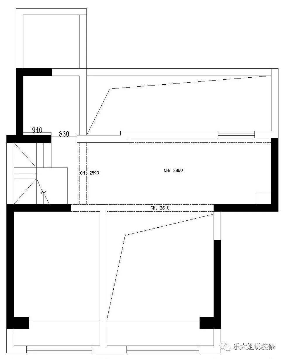
一楼原始户型图

一楼改造后户型图

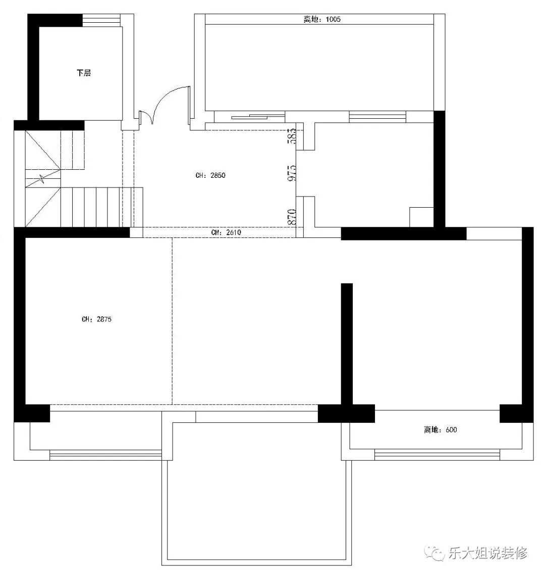
二楼原始户型图
- 本案是叠加户型,整体结构比较方正,需要改动的部分并不多,设计主要集中在优化局部空间布置上;
- 乐大姐团队设计师将厨房的位置缩小,使得餐厅的东墙与客厅的电视背景墙处于同一水平线上,同时将阳台缩小、客厅外扩,从而让整个客餐厅的整体性和通透性更强,更加宽敞、方正、大气;
- 客厅与餐厅交接处采用的是金属隔断,这样既避免了入户直接看到客厅不利风水,又实现了虚实结合;
- 原始户型中二楼只有两个卧室,但是家中常住人口除了业主夫妻俩还有三胞胎,设计师根据具体情况调整了房型结构,为家中每位成员量身定制了属于他们的卧室。
https://vr.justeasy.cn/view/9012600.html