发布时间:2020-04-29
乐大姐
FM104.8《家在苏州--乐大姐说装修》栏目特邀嘉宾,
赫博别墅设计创始人之一;
多次受邀成为院校家居的授课讲师;
98年至今,
为万千家庭打造幸福家居同时,也相互成为了好朋友。
任何与装修有关的问题,欢迎您添加乐大姐微信:13382100888,
乐大姐会为您做一对一解答。

岁月静好
——by 乐大姐团队原创
项目地点:秀岸花园
项目面积:130㎡
项目风格:简美
项目性质:全屋整装
项目状态:设计完成
“等我长大了,给你们买大房子住,买别墅住!”小时候,我们经常对父母长辈说过类似的话,逗得他们开心大笑。
本案是女儿女婿给父母准备的养老房,位于苏州镇湖。虽是给父母设计的养老房,但是看上去很年轻,选择的是简美风格,色调柔和温馨,以实木为主,走动空间比较宽敞,功能区间划分明确,不杂不乱。
客 厅/Living Room
与简约风不同的是,乐大姐团队设计师在客厅背景墙和家具的造型上多费了点功夫,线条的累积让空间有了质的变化。沙发背景采用石膏线打造了一副背景框,轴对称的的设计和简单重复的线框让空间摆脱了单调的印象,可以从侧面烘托出整体的基调。
餐厅/Dining Room
主 卧/Master Room
卧室明亮通透,雅致悦目的色调,给人带来直抵心灵的舒适品质感;奶咖色的墙面,搭配美式调的布艺靠背床,还有暖色调的床品,相得益彰,将简约温馨镌刻在美式情怀中。
卫生间/Bathroom
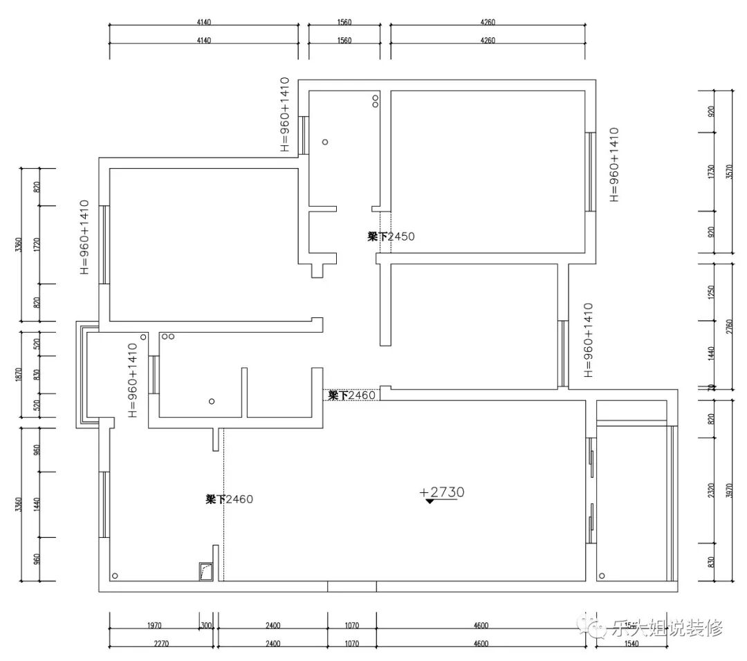
平面方案/Flat Plan
全景图/Panorama
长按二维码添加乐大姐微信号
装修不烦 大姐来谈