
乐大姐
FM104.8《家在苏州--乐大姐说装修》栏目特邀嘉宾,
赫博别墅设计创始人之一;
多次受邀成为院校家居的授课讲师;
98年至今,
为万千家庭打造幸福家居同时,也相互成为了好朋友。
任何与装修有关的问题,欢迎您添加乐大姐微信:13382100888,
乐大姐会为您做一对一解答。
项目地点:南山楠
项目性质:全屋整装
项目面积:191㎡
项目风格:现代轻奢
项目状态:正在施工
本案是改善性住宅,业主的工作和乐大姐算是半个同行,做工程的,对装修还是比较了解的,但是却有过一次失败的装修经历,之前装修的房子是业主自己亲自操刀装修的,设计、材料、施工等都是自己找的人,过程十分繁杂,全程各种操心,房子装修完成后效果也不是很好,家里人也不满意,直到现在还记忆犹新!提到要自己再操心一次装修,业主直说:受不了了,装修还是交给专业的团队吧!这套房子一家人是要长久自住的,业主对于设计及工程品质要求高!所以虽然房子是2019年12月25日才拿到的,但是业主提前一年多就在关注各家装修单位,且最终在2018年12月份和乐大姐团队敲定了方案。


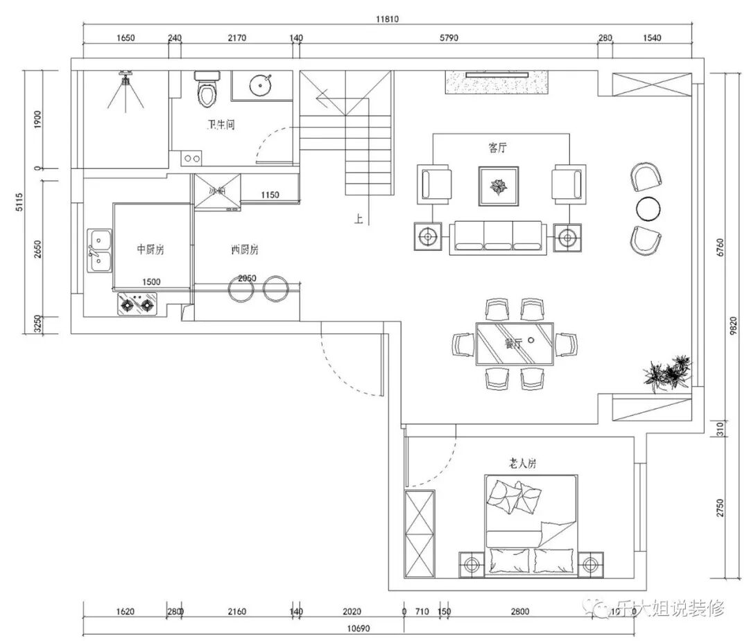
本案设计师坚持生活就是设计的灵感,紧紧把握设计的出发点——人的需求,更注重使用者的身、心、灵的感受。玄关柜中部留空嵌入光源,也方便日常一些零碎物品的放置收纳,金属走边的白色柜门、设计感极强的金属吊灯显得空间简洁明亮。
为了摆脱传统楼梯的臃肿感,让楼梯更富有设计感从而巧妙地融入整体设计风格中,乐大姐团队设计师采用了线条强烈的石材结构,配合通透的玻璃栏杆、金属扶手和金属镂空格栅,营造出丝丝仙气,把本可能是视觉硬伤的楼梯变成了亮点。在色彩选择上使用了灰色、象牙白、奶咖、驼色等比较百搭的颜色,让空间简洁耐看有格调。同时以金属色、蓝色、橙色作为亮色元素,色调上层层推进彰显丰富的层次质感,另外还搭配了一些艺术的画作和装饰品,艺术与浪漫结合,华美而精致,高雅的格调氤氲而生。材质的选择上,大理石的冰冷质感和木材质的温润质感互相中和,让整体色调偏中性。局部用金属线条加以点缀,散发出精致的轻奢意味,呈现出感官上的时尚感。
客厅窗边本身是阳台,把阳台整个做了封闭设计,休闲阳台和客餐厅形成无界限的统一,既使得光照充足,同时也留出足够多的活动空间,让大人能和孩子一起读书聊天做游戏,尽情享受亲子时光。阳台靠近餐桌一侧的尽头,是一整面的定制柜,各种杂物都能收进去。
餐厅的作用已经不仅仅是功能的需要,更是家人之间的交流圣地。开放式餐厅扩大了空间延展性,布局排列有序,节奏感韵律十足。利用石材、黄铜元素、丝绒、插花瓷砖乃至装饰品等,让空间的奢华感上升到一个新的高度。
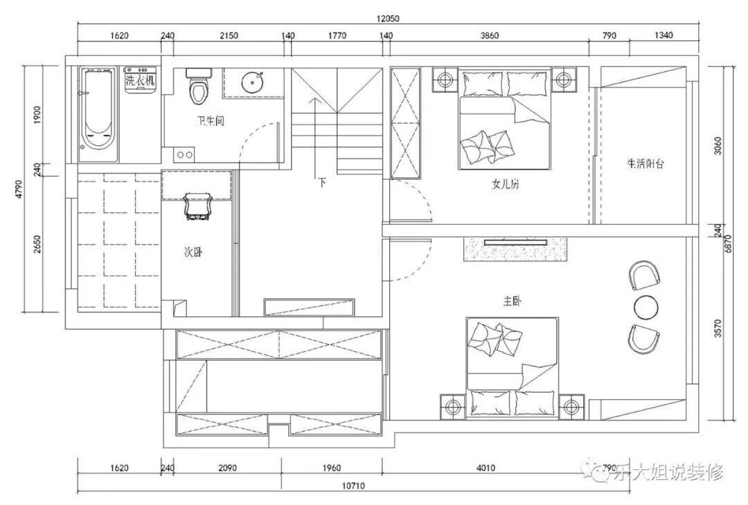
餐桌上优雅的陈设似乎在等待一场浪漫宴会的开始,极具情调。主卧的氛围内敛轻奢,随意轻松的氛围似乎让我们感受到女主人是一位精致优雅中带些许艺术情怀的女神。不同颜色的圆形金属组合床头装饰品展现着现代艺术美,而低饱和度的藕粉色和橙色传递着柔美活力浪漫的氛围,营造一种舒适的睡眠环境。将原有的阳台直接纳入卧室,既满足了光线的使用又兼顾美学美感,同时也方便了休闲椅、茶几、梳妆台与软凳的安置。泡上一壶花茶,窗外的美景,惬意而自如。
步入式衣帽间,用白色的木材做边框,用磨砂玻璃做柜门,在细节处使用不同材质,呈现出高雅耐品的个性质感。


2020年,我们的眼睛真的需要一点全新的百搭色,它不能是永恒的黑白,应该是一种充满治愈力的温柔的彩色。乐大姐团队设计师运用温柔的粉色、淡蓝色、灰色,让专属于孩子的睡眠空间沉静而有时尚感。
卧室是最温馨的地方,功能要求也是最人性化的地方。长辈房大面积的使用灰褐色,给人安定和包容的感受。柔和内敛的基调下,点缀在其间的布艺、挂画、摆件等小物件,为空间注入一股轻缓的文化氛围。
金色的金属线条镶嵌,演绎一种低调的奢华,更体现了业主的好品味。

中西厨的设计侧重收纳,既满足了功能使用上的便捷,又让空间显得宽敞明亮。温和的木元素贯穿整个厨房,冰箱门采用嵌入式设计,让空间整体又协调。白色大理石台面与黑色金属质感炉灶台面形成反差,提升了空间的层次感。西厨采用的是操作台+卡座的设计,在提升用餐体验感的同时,亲朋好友过来做客还可以在卡座上细细品味一杯,增加用餐聚会的情趣感。卫浴间考虑到潮湿、防滑、清洁性,所以在设计上以瓷砖为主。爵士白大理石砖通铺,在花纹、款式上达到了统一,再次印证了——颜色搭配也是需要精心设计的。设计师在台盆柜处选择了黑色的大理石砖装饰做跳色,整个空间瞬间变得明亮又时尚。
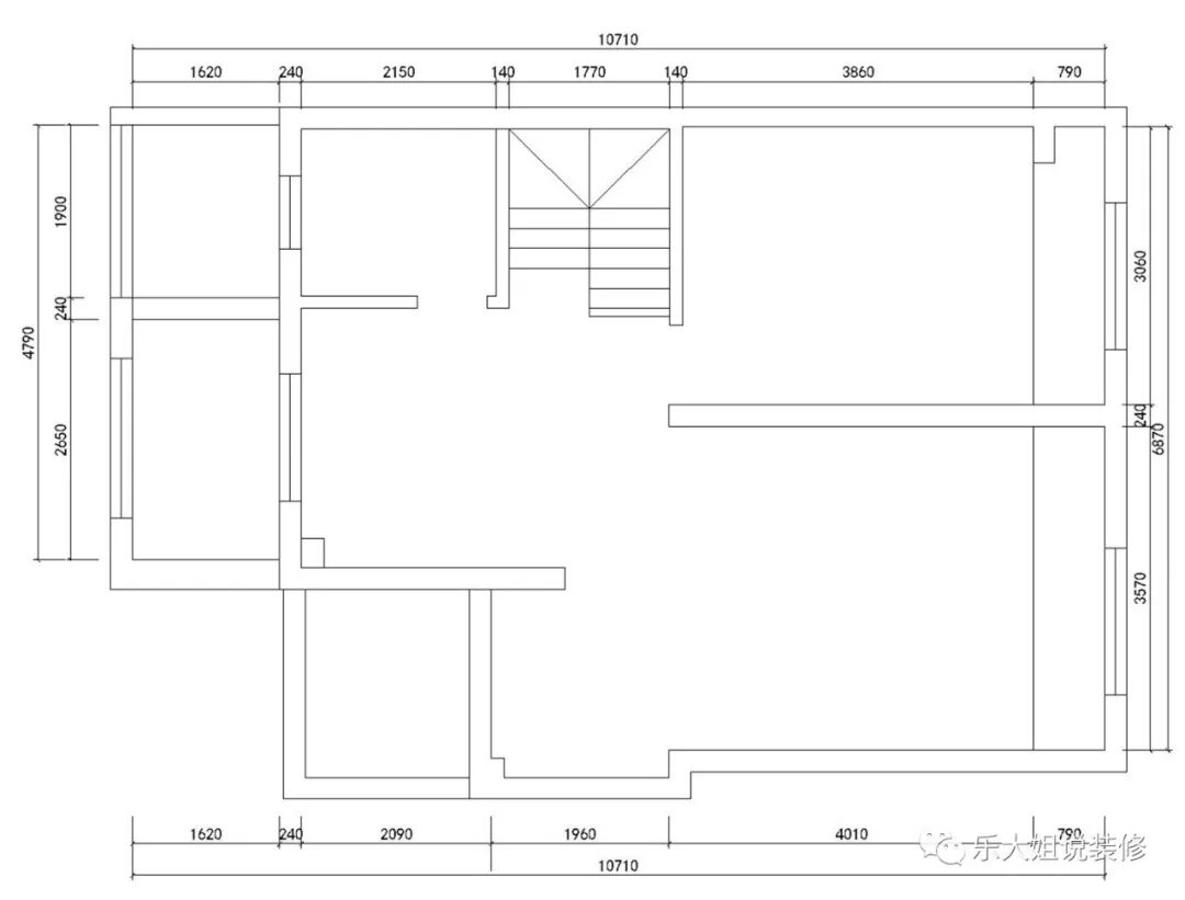
- 本案户型方正、通透,且因房子赠送面积比较多,有很多外机的位置,得房率比较高,故而乐大姐团队设计师通过结构上的微调,有效地提高了空间的利用率和居住舒适度;
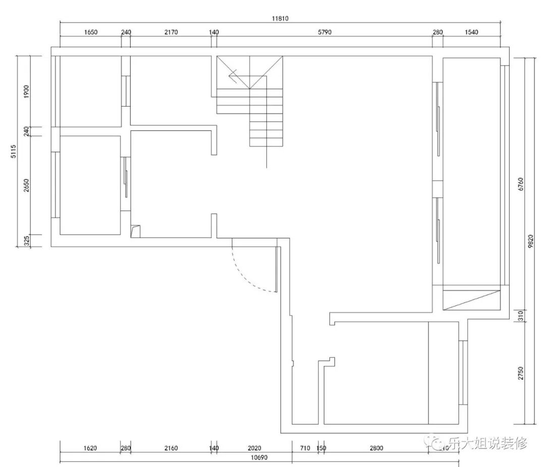
- 考虑到实用性,将一楼的厨房整体向北外扩延伸,把原始结构中的北面阳台纳入厨房空间,然后采用中西厨的设计;
- 考虑到居住舒适型,将南阳台直接纳入客餐厅区域,既使得空间更加宽敞通透,也满足了光照的需求;
- 原始结构中二楼只有两个房间,现根据业主的需求(父母房+主卧+女儿房+客房),将上楼平台处的部分空间直接改造成卧室(榻榻米)。