发布时间:2020-04-29
乐大姐
FM104.8《家在苏州--乐大姐说装修》栏目特邀嘉宾,
赫博别墅设计创始人之一;
多次受邀成为院校家居的授课讲师;
98年至今,
为万千家庭打造幸福家居同时,也相互成为了好朋友。
任何与装修有关的问题,欢迎您添加乐大姐微信:13382100888,
乐大姐会为您做一对一解答。

Bonus Time
不/可/辜/负
煮一盏浊酒,
吟半阙旧诗。
乘浮槎踏浪,诗酒乘年华。
美食与你,
皆不可辜负...
——by 乐大姐团队原创
项目地点:吴江盛泽自建别墅
本案是一套自建房,业主在盛泽买了2亩地,房子是五年前就盖好了的, 682㎡,之所以一直放着没有装修一方面是因为工作忙,没有时间和精力去装修,另一方面则是装修的操心、劳累让他们望而生畏,而这套房子他们是想作为祖宅长长久久住下去的,所以对设计、品质的要求都比较高。
业主为人处事成熟稳重,想要一种轻松休闲的现代有禅意的家居风格,表现出与众不同的感觉,最终选定为新中式,也与盛泽当地江南风情的大环境相融洽。
客厅整体空间设计上遵循古典美学原则,讲究纲常,讲究对称,布局阴阳协调,韵味浓烈悠长。设计以“简”为道,通过对材质、色彩、造型、氛围等细节的着重拿捏,营造出富有品质感的居住环境。
踏入空间,细细品味,一切都是生于意外,又蕴于象内,更加耐人寻味,将中式的意境之美表达得更加纯粹。
客厅古典与现代相融合,传统特色与现代元素相叠加,既儒雅又摩登;茶白、赭石气质相宜,婉约悠扬,顺着灰调大理石的纹路,使空间流畅而协调,营造出一个庄重与优雅并存,温润舒适的会客空间。
水墨、工笔画频繁出现在各个空间里,与充满设计感的灯具、桌几、配饰浑然一体,诉说着大繁至简的共性。
新中式与传统中式家具最大的不同就是,虽有传统元素的神韵,却不是一味照搬。有人认为中式家具好看不好用,过分横平竖直,与人体的腰背部曲线难以贴合,但是新中式家具在这方面有着极大优势。
传统与现代,有冲突、与取舍,也有平衡。中式与西式的厨房和餐厅的设计,让入户门一侧的空间融会贯通,兼顾功能与美学,有着一气呵成的气派。
中餐厅的设计不仅延续了含蓄、高雅的生活方式与礼制之道,提炼出经典元素加以简化和丰富,圆形实木餐桌更显简约与流畅,人性化布局搭配触感顶级的材质,营造安静、舒适的用餐空间。
中餐厅与西餐厅之间用镂空隔断将屋内的一切巧妙遮挡区隔,再搭配雅致的挂画、器物、禅意花瓶、绿植等,整体给人一种简洁利落的东方沉敛之美。
餐区花鸟横幅墙面背景与脚下的灰色地砖和简洁的光带延伸引领看似各别独立空间又互有的关系,刻意划破区域界线的墙面,采用木纹及富有简约图文肌理的壁纸映衬立面背景,使得空间具备有更大的包容力。
心之归处,是忙碌生活中最温暖舒适的向往。古人案牍劳神,最期盼的也是一方属于自己和爱人的心之所。 感受东方文化的韵味,闲看庭前花开花落,在快节奏的工作之后,享受家给予我们的舒适时光。
地下室原始户型图
地下室改造后户型图
一楼原始户型图
一楼改造后户型图
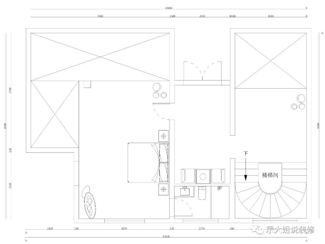
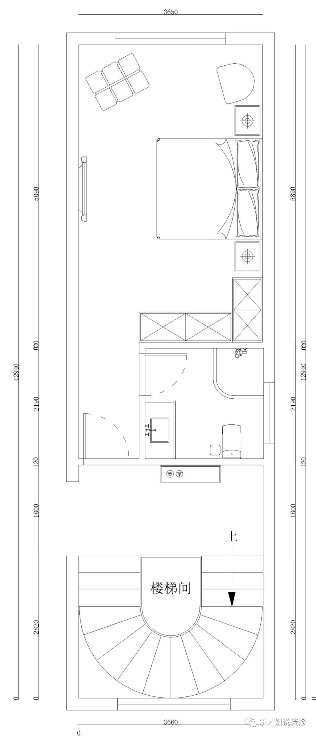
一楼半原始户型图
一楼半改造后户型图
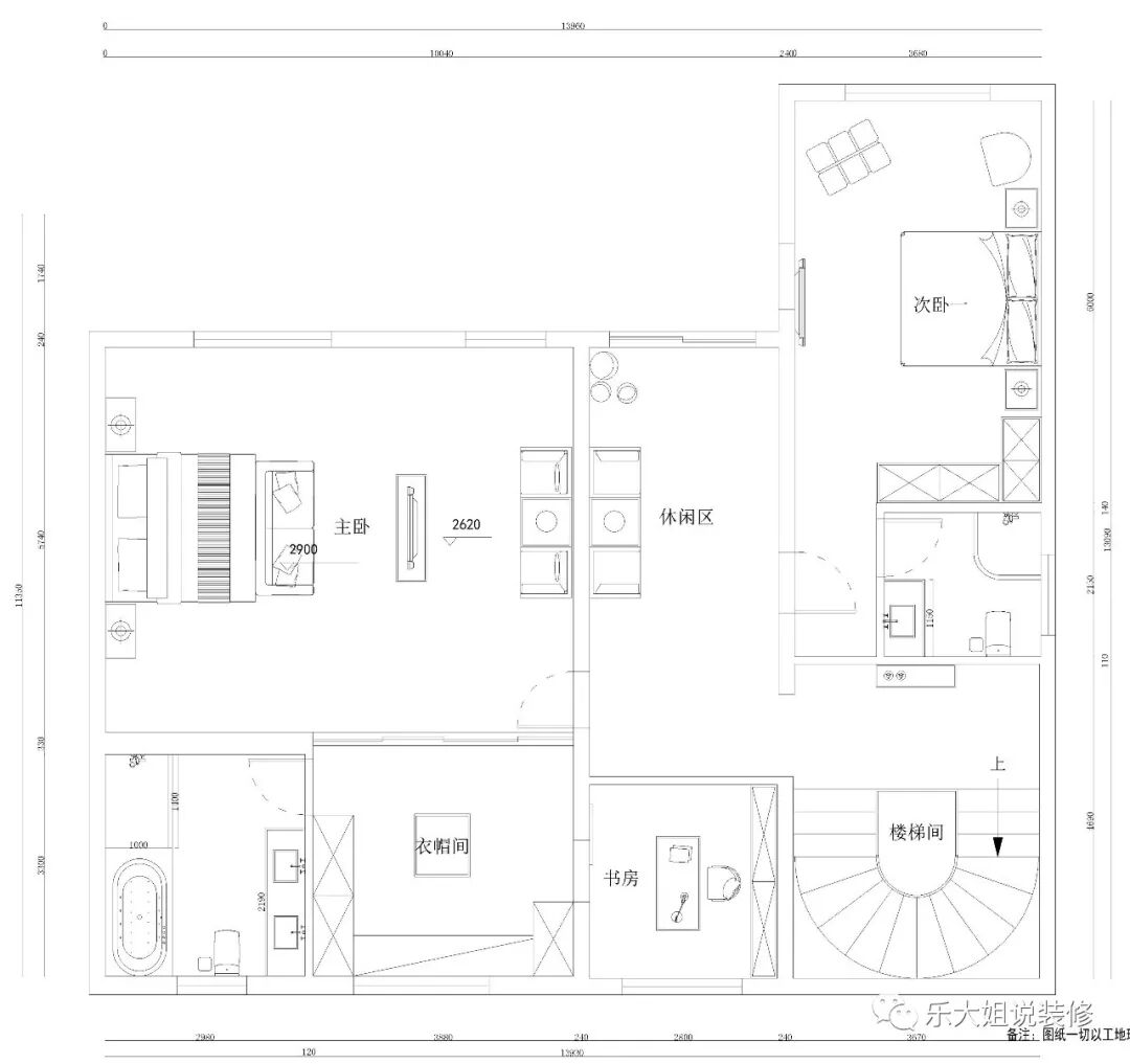
二楼原始户型图
二楼改造后户型图
三楼原始户型图
三楼改造后户型图
四楼原始户型图
四楼改造后户型图
本案是自建别墅,总面积约600多平,地面上总共四层,另外在一楼还有一个跃层结构,所以加上地下室,整个别墅总共有六层,整体布局比较合理,大的改动没有太多;
因业主是做生意的,比较注重风水,故原始户型中一楼进门的位置原本正对着楼梯,且对面就是一个窗户,后来乐大姐团队设计师直接在楼梯与门之间的位置设计了一个隔断,同时将对面的窗户封起来;
根据整体结构的需要和业主的需求,设计师单独做了一个楼梯间的位置,楼梯则采用的是弧形的旋转楼梯。
长按二维码添加乐大姐微信号
装修不烦 大姐来谈