
乐大姐
FM104.8《家在苏州--乐大姐说装修》栏目特邀嘉宾,
赫博别墅设计创始人之一;
多次受邀成为院校家居的授课讲师;
98年至今,
为万千家庭打造幸福家居同时,也相互成为了好朋友。
任何与装修有关的问题,欢迎您添加乐大姐微信:13382100888,
乐大姐会为您做一对一解答。

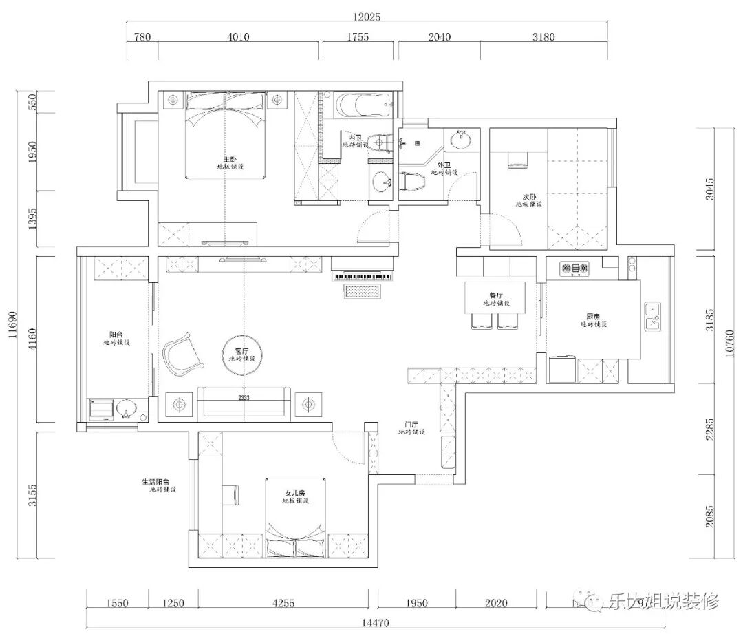
■ 项目地址:湖畔天城
■ 项目面积:141㎡
■ 项目风格 :美式
■ 户型结构:平层
■ 项目性质:全屋整装
■ 项目状态:已完工(年后入住)
■ 照片来源:现场实景(ps,乐粉们,因业主要求不展示重新装修前的现场照片,故而没做对比哦)
Space reality display 空间实景展示
本案是一套二手房重新装修改造。业主之前有过装修经历,当时选择的是半包,花了钱不说还更费时间和精力,所以这次想找个能让自己既省心又放心的装修模式及单位。因为是二手房,要拆除的东西比较多,施工要求相对新房来说也更加精细。
因本身面积不大,怎样提高空间利用率是本次重新装修设计的关键。根据业主对家的喜好和愿望,最终选定的设计风格为美式风格,整体设计以白色为主调,间以红色、蓝色等做跳色,为业主营造一个具有简洁、淡雅、沉稳兼跳跃、活泼的居住空间。作为各空间的联系纽带,玄关选用的是铁艺的镂空隔断,既将各个空间紧密相连,又巧妙分隔,加强了空间的通透性,在视觉上更开阔。
地面采用仿古砖以及花砖铺贴,为玄关整体营造出一种典雅美。精致的挂画和摆件传达着业主对品质生活的追求,将自然和谐融入家宅。
客厅的整体注重对线条、造型和颜色块面的灵感性运用。每一个角落似乎都渡上了一层金色的阳光,土壤般泛着暖意的地砖,仿壁炉式样的电视背景墙,厚软的沙发,各色花纹的抱枕,柜子上饶有意趣的小摆件,以及精心摆放的绿植,让整个空间美得恰到好处。
借助优良的采光,客厅通透明亮,经典美式皮质沙发、布艺沙发和茶几搭配,棕色与米灰色彩交融,将美式的高贵优雅气质与随意不羁的复古情调完整呈现眼前。多沙发的布置也满足三代人的需要,电视柜和台几等木制作,为整个空间增添了一份稳重大气。
适逢冬日艳阳,惬意地躺在沙发上,盖上一条小毯子,沏一杯茶,看窗外云卷云舒,三冬不寒。客厅采用了主灯加辅灯的多层次光线布局,丰富和满足了空间的光照需求。为了让空间有丰富的层次感,设计师精心描绘,墙面用石膏线条勾勒,用装饰画和壁纸做装饰,为整个空间定下温润自然的基调,在沙发、桌旗等软装上采用鲜艳的颜色,搭配材质和谐有序,为空间添加了一抹亮色。
对我来说,最最幸福的,就是你在身旁,父母子女平安。客厅与餐厅之间有一块空地,现在是以装饰画和植物点缀,等业主年后搬家后这里将同时安置一架钢琴,偶尔会有一双灵动的手(业主的女儿),在这里为家人奏起乐章。
餐厅是家居生活的心脏,也是本案整个设计的亮点。整个空间非常具有画面感和视觉冲击力,犹如电影片中的定格场景。大红色的背景墙砸入素色的基底中,交融碰撞出特立独行的格调品行,点亮了整个空间,塑造出了空间的层次感。
因餐厅空间面积不大,设计师特地采用了卡座设计(一侧餐椅则由收纳柜组合而成,靠墙而立),既能同时满足一家人的用餐需求,又能腾出空间方便进出厨房,又能增加收纳空间,还方便做饭时与家人闲聊。墙面的装饰柜和挂画,为整个餐厅添色不少。
一面的嵌入式定制柜用于摆放装饰,兼有收纳功能,精致的酒杯、餐具摆放有序,餐厅就是一个家庭生活态度最好的体现。
不同于没二次装修前厨房的狭窄阴暗,改造后的厨房采光优渥,布局精简,开阔明亮,干净清爽;同色系仿古砖和橱柜,勾勒出宁静的美式风情,空气中仿佛弥漫着一阵人间烟火气。
橱柜选择了模压门,强调美式风格,分隔收纳设计也内藏玄机,各种电器设备齐全。柴米油盐才是生活,每天为家人准备丰富的餐食是幸福而温暖的。
厨房与餐厅之间选用玻璃推拉门的设计,使厨房既具开放厨房的空间感,采光通透,又能拥有封闭式厨房的独立性,彼此之间自由互通,家人齐聚一堂。


卧室延续整体的风格,高背床作为经典的美式家具给房间带来轻奢之感。卧室墙面素雅,用素雅的碎花墙纸、石膏线和挂画进行装饰,低调中透出一丝雅致,木质地板和木作家具使整个空间踏实了起来。
女儿房以浅色为主,壁纸较为素雅,便于孩子休息睡眠。米色家具似小主人的纯洁童真,在每个角落诉说这个年纪的美好,麋鹿小兔的装饰画增添了些许童趣。同时设计上也非常注重实用性,充分考虑了收纳的需求。
- 原始户型中女儿房的开门正对玄关,缺乏私密性,重新装修改造中乐大姐团队设计师直接将开门从玄关挪至客厅背景墙处,确保了女儿房的隐私;同时,将原始门框改造成一个衣帽架,方便出门回家放置衣物;另外,在女儿房内将原始户型中门的位置改造成一个书架,增加收纳空间;
- 原始户型中厨房空间非常狭小,动身都十分不便利,业主强烈要求扩大空间,根据业主的需求设计师将北阳台纳入厨房空间(北阳台本身面积不大,很鸡肋),改造后做饭洗菜都十分方便;
如果您觉得乐大姐说的内容很有价值
欢迎分享转发至您的朋友圈
让更多的朋友都能轻松装修,自在生活!
当然,您也可以添加乐大姐微信号13382100888
或扫描下方的二维码
说出您的装修难题、让乐大姐为您答疑解惑
不管您是装修完工了
还是即将装修的
或者正在装修的
乐大姐一定知无不言,言无不尽
在看是一种鼓励|分享是最好支持
点击右下角 写留言 发表你的心声
我们期待与您的交流