发布时间:2020-04-29

乐大姐
FM104.8《家在苏州--乐大姐说装修》栏目特邀嘉宾,
赫博别墅设计创始人之一;
多次受邀成为院校家居的授课讲师;
98年至今,
为万千家庭打造幸福家居同时,也相互成为了好朋友。
任何与装修有关的问题,欢迎您添加乐大姐微信:13382100888,
乐大姐会为您做一对一解答。


初见心欢,
久恋怦然,
在这阳光乍泄的日子里,
一路树木参天,
沿途溪水潺潺
……
——by 乐大姐团队原创
项目地点:昆山同进君望
项目面积:208㎡
项目风格:现代轻奢
项目性质:全屋整装
项目状态:正在施工
客厅/Living Room


本案的亮点在于空间与色彩的完美交织,乐大姐团队设计师给我们展现了一个灵活开放的空间,用隐形门、金属隔断等将隔断的空间打破,做到各功能区的融合,空间的流通正如家人或爱人之间彼此割不断的羁绊。
客厅的沙发背景由优雅绿与低调灰两色组成,让墙壁突破了单一的色彩限制。金属质感的家具和金色白色交织几何形地毯给客厅一种独特的质感。




软装陈设为家带去独特的调性。柔和的阳光透过窗户,散满整间屋子,白色和绿色两层窗帘的设计细节,满足了对客厅不同采光的需求,且与客厅整体色调相呼应。定制整体柜,让客厅收纳空间最大化,辅光源的运用,使客厅呈现更好的光泽感。
主卧/Master Room


主卧的自然氛围得益于整体软装的搭配,木质地板、淡绿色护墙板的大背景,为整个空间打下清爽、精致的基调,地毯、床尾凳、床头背景装饰品、床头柜、床头灯轻奢感强烈,丰满整片空间,整体色系淡雅,低调而不失华贵。


得益于户外花园优渥的采光,主卧通透明亮。清晨醒于暖阳中,为心灵种下一点光明;白天徜徉在花香里,感受大自然的清新;夜晚眠于星光下,洗去一身疲惫,怡然自得。
次卧/Second Room

次卧简洁又不失格调,低饱和度的色彩搭配出极度舒适的视觉效果。设计师用石膏线和金属走边让背景墙更立体,提升卧室空间的整体质感,打造温暖宜居的睡眠空间。


阳光清新透亮,鲜花粉嫩无暇,绿植亭亭如盖,水果甘甜诱人。隔绝繁忙与焦虑,只想与你一起享受悠闲的“草本生活”,让冬日的午后更加恬静、迷人。
卫生间/Bathroom


主卧卫生间采用灰色大理石砖铺设,充满现代感高级感,在明亮的灯光照射下更显奢华。洗手盆采用台下盆的设计,不易溅水,方便清洁。


合理利用墙面的收纳空间,灰色壁龛、金属置物架等让各种物件整齐摆放,又可当做小型展示架装饰空间。卫生间都能如此精致,见微知著,更何况生活。
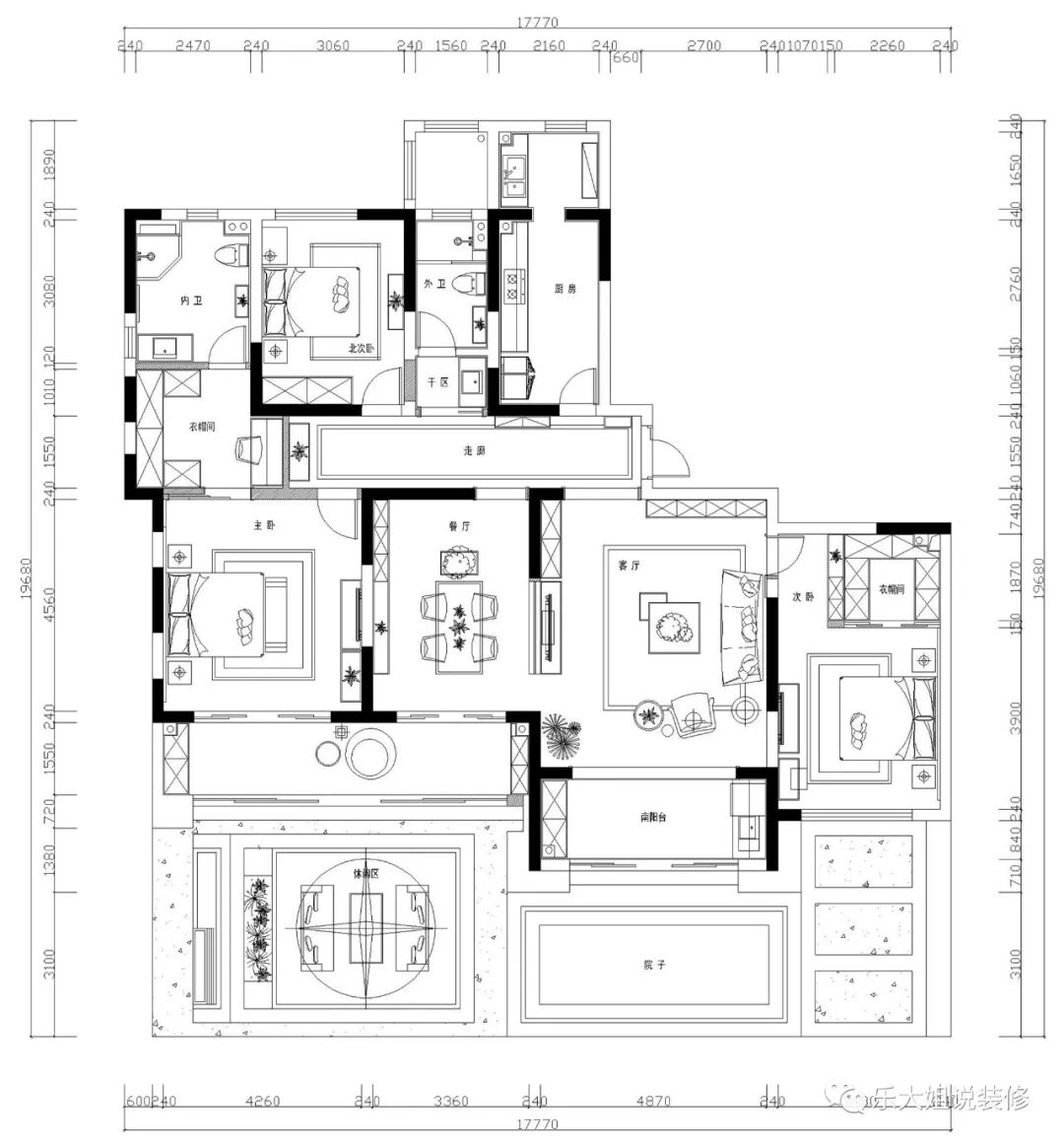
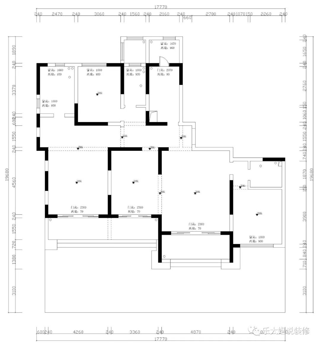
平面方案/Flat Plan

原始户型图

全景图/Panorama

https://vr.justeasy.cn/view/8437768.html?from=timeline

如果您觉得乐大姐说的内容很有价值
欢迎分享转发至您的朋友圈
让更多的朋友都能轻松装修,自在生活!
当然,您也可以添加乐大姐微信号13382100888
或扫描下方的二维码
说出您的装修难题、让乐大姐为您答疑解惑
不管您是装修完工了
还是即将装修的
或者正在装修的
乐大姐一定知无不言,言无不尽




在看是一种鼓励|分享是最好支持
点击右下角 写留言 发表你的心声
我们期待与您的交流
长按二维码添加乐大姐微信号
装修不烦 大姐来谈