发布时间:2020-04-29

乐大姐
FM104.8《家在苏州--乐大姐说装修》栏目特邀嘉宾,
赫博别墅设计创始人之一;
多次受邀成为院校家居的授课讲师;
98年至今,
为万千家庭打造幸福家居同时,也相互成为了好朋友。
任何与装修有关的问题,欢迎您添加乐大姐微信:13382103377,
乐大姐会为您做一对一解答。

我们每个人
都试图从一开始就把
生活过成自己理想的样子,
精致、优雅而得体,
但后来的时光证明,
人生的曲折
就像木作上的花纹,
是它们酝酿了人生的芳华。
本案业主夫妻俩都是老师,这套房子是4、5年前他们买的二手房,之前因为几方面的原因一直没有装修——一是资金不充裕;二是有房子住;三是听周边这几年装修过的的朋友说装修实在太烦,等等,今年业主突然想装修了也是因为现在住的房子实在不舒服,空间小,使用起来非常紧张,家里两个孩子都大了,老人年纪也大了,想给家人更好的居住环境!业主说“早装晚装都是得装,本来早点装修就可以早点享受生活了,结果错过了好几年,生活也将就了好几年!”
门厅/Lobby



设计师把门厅的作用极致化,柜子与隔断,像极了显露与深藏的爱,入门处是一整面墙的柜子,方便业主出入时更换衣服和鞋子;再往前几步就是隔断,透过隔断就可以看见家人开心的笑脸。
你风尘仆仆的归来,这里用柔软将之包围;你精神奕奕的出门,这里用温暖将之填满。一进家门的爱意和温馨,全部在门厅给你。
客厅/Living Room


“开放式的过渡错层空间”设计是本案的一大亮点,从门厅到客厅,客厅到餐厅,餐厅到中西厨,打破传统空间模式,强化功能性,满足生活需求,整个空间开阔敞亮,令人心旷神怡。
客厅落地窗的设计,阳光投射进来的同时,给整间屋子注满生机,记录着岁月的沉淀,给人一种非常自然、低奢的美感。


客厅采用嵌入式石膏吊顶,搭配精致的古铜色吊灯,营造出一种怀旧、浪漫的感觉。以大理石砖作为地面装饰材料,光泽感极佳,在沙发区铺上大幅花纹地毯,使空间区域划分更加清晰。复古造型的组合沙发,以及茶几都具有上乘的质感,让美式古典风格得以进一步的彰显。

窗前才是家里最美好的地方,有风、有光、有景,占据了绝佳的地理优势。在窗前窝着看看书,与家人一起喝茶或者喝喝咖啡聊聊天,放松身心。


餐厅/Dining Room





厨房分为中厨和西厨两块,以适应不同的需求。西厨则是采用了美式常见的敞开式的设计,与餐厅相连,配备了中岛,便于备餐和物品摆。清晨起床,为自己和爱人做一顿简单的早餐,你在餐厅,我在厨房,背后就是你。
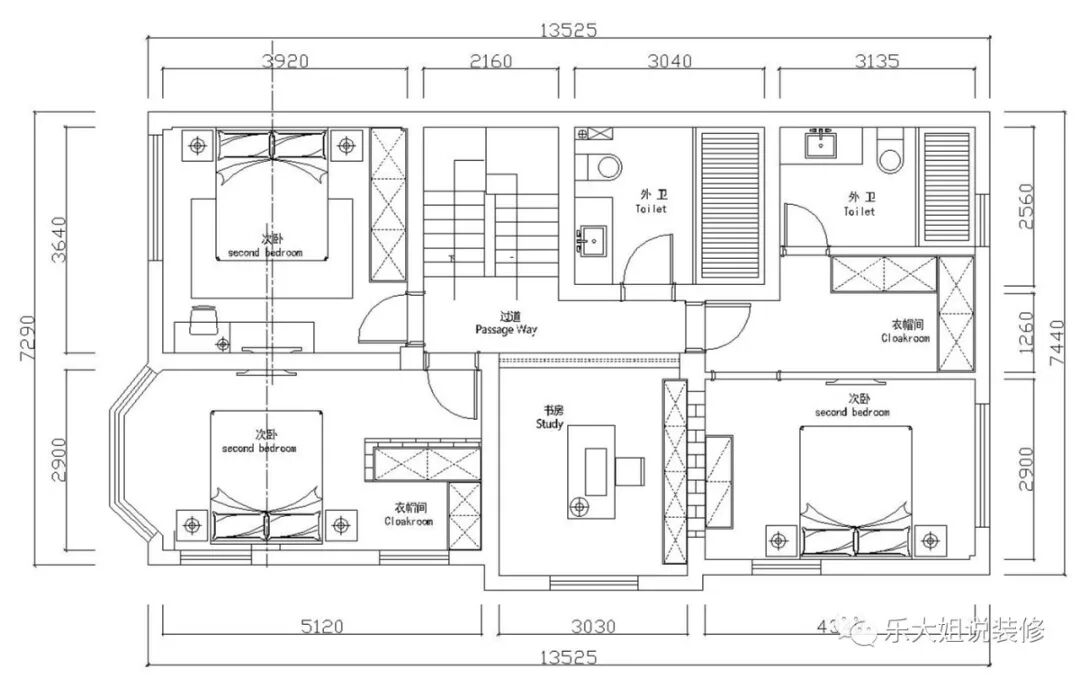
主卧/Master Room


居室的一点一滴,都是对生活的一种态度。重视睡眠质量的业主希望卧室明亮,设计师努力创造宽敞视觉,并带有独立步入式书房、衣帽间、卫生间,形成一个大套间,同时配合木作的香气使人心境平和,营造沉稳宁静、容易入睡的氛围。



男孩房/Boys' Room



整体空间是简单的颜色,是男孩子的清爽风格,干净的蓝色如同对未来生活充满好奇的明眸。深海鲸鱼的床头壁纸背景诠释着男孩子活力探索的一面。女儿房/Daughter's Room




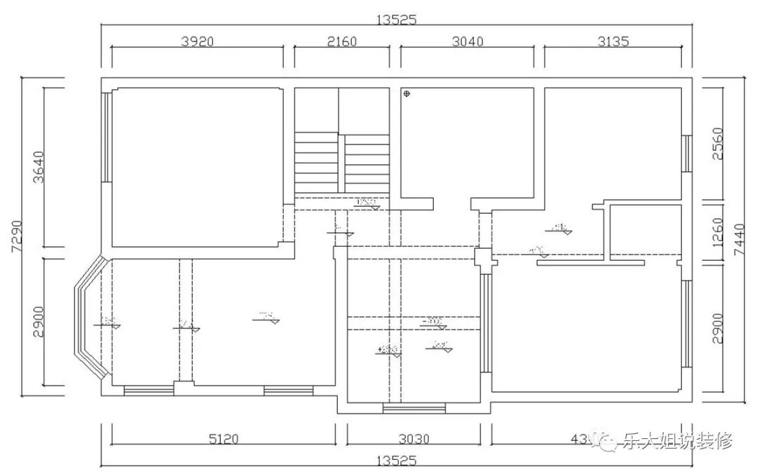
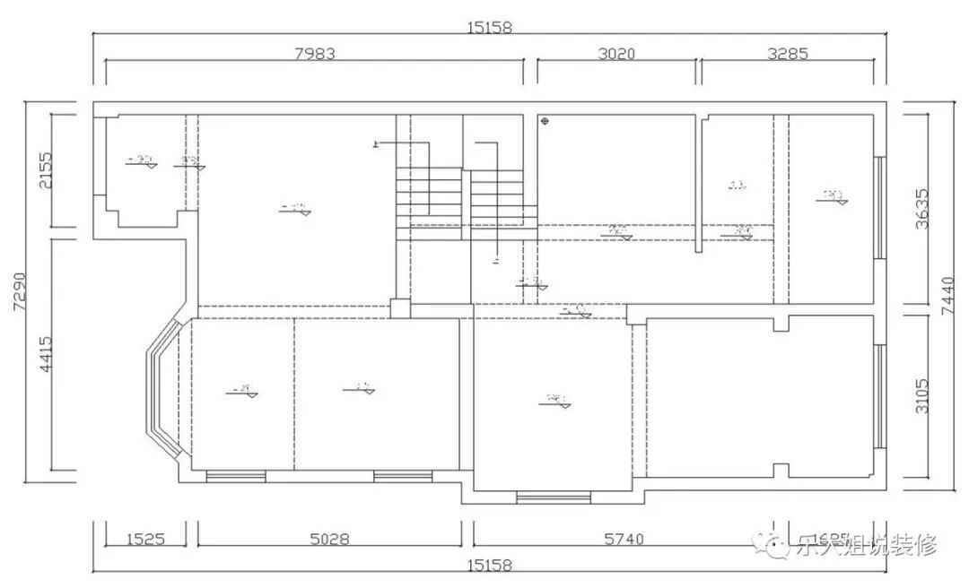
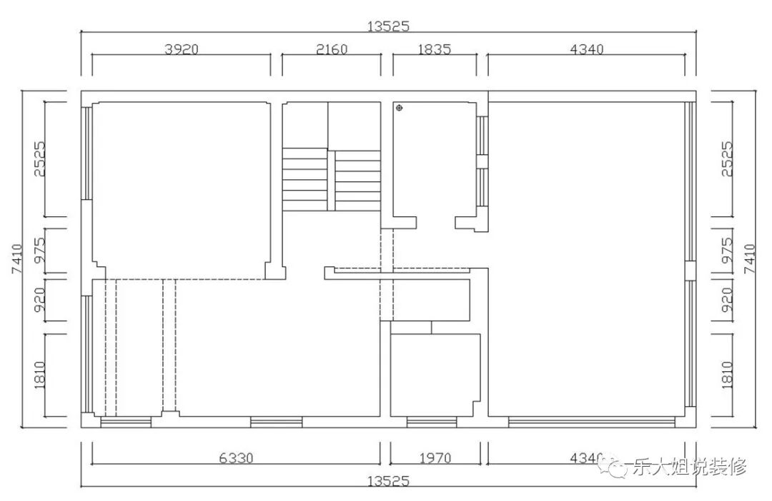
平面方案/Flat Plan






全景图/Panorama

https://vr.justeasy.cn/view/7858103.html?from=timeline&isappinstalled=0

如果您觉得乐大姐说的内容很有价值
欢迎分享转发至您的朋友圈
让更多的朋友都能轻松装修,自在生活!
当然,您也可以添加乐大姐微信号13382100888
或扫描下方的二维码
说出您的装修难题、让乐大姐为您答疑解惑
不管您是装修完工了
还是即将装修的
或者正在装修的
乐大姐一定知无不言,言无不尽




在看是一种鼓励|分享是最好支持
点击右下角 写留言 发表你的心声
我们期待与您的交流
长按二维码添加乐大姐微信号
装修不烦 大姐来谈