发布时间:2020-04-29

乐大姐
FM104.8《家在苏州--乐大姐说装修》栏目特邀嘉宾,
赫博别墅设计创始人之一;
多次受邀成为院校家居的授课讲师;
98年至今,
为万千家庭打造幸福家居同时,也相互成为了好朋友。
任何与装修有关的问题,欢迎您添加乐大姐微信:13382103377,
乐大姐会为您做一对一解答。
A good life
begins with a sense of ritual!


/
业主说

这是“我”的新家,能想到吗?刚拿到这套房子的第一感觉是太小了,特别是一楼的客餐厅,一楼的卧室和土建楼梯完全挡住了玄关的采光,客餐厅缩在一角;现在我们在玄关竟然可以感受到阳光的轻吻,孩子在客厅离竟然可以自由的嬉戏……效果,比我想象的更好!
——by 业主王先生
满意度100%
在和乐大姐、苏州电视台《第一时间》拍摄老师等攀谈的过程中,王先生说起了他对整个家装的过程,和完工的效果都很满意,业主说因为之前自己以及身边朋友的一些装修经历,所以刚开始心里比较忐忑,有空的时候经常会去现场检查、确认,甚至找了家里一个做装修工作的侄子帮忙把关,但是整个装下来发现这些担心是完全没有必要的,乐大姐的整个设计施工服务团队对整个装修过程各个阶段把控得十分到位,甚至业主微信群每天、每周都会及时收到项目进度和施工情况。他的侄子也说乐大姐团队很专业,可以放心交给他们做!
“我们小区的物业还拍了我们家装修好了的照片放到我们小区业主群里,给大家做参考,经常有业主过来我们家看装修,有个物业的小姑娘家里在姑苏铭著也有一套房,她说他们家装修的时候要参考我们家来装!”王先生还特别骄傲地说道,“像我们隔壁邻居跟我们家是差不多时间开工的,他们家现在还在施工,而且他们家设计的格局我不喜欢,采光没处理好,一点都不通透。”


/
竣工酒·情意满满
一次装修 终生朋友




▲ 业主王先生与乐大姐团队举杯相庆竣工之喜
食物是舌尖上的美味,也是生活美学的凝聚。家宴上从爽口的蔬果,到肥而不腻的荤菜,不仅满足了口腹之欲,也品出了生活的滋味!食物滋养了胃,情感更是滋润了心,共享此刻温馨的相聚,每一个细节,每一个用心,一顿家宴,承载着业主对乐大姐团队的无限用心与认可。



/
确认过眼神
遇见对的装修团队
姑苏铭著的这套案例乐大姐有分享到自己的微信朋友圈里,获得了一致好评,精致的设计虏获了很多人的芳心,也获得业主的极大肯定,项目交付后业主王先生对这个家非常满意,觉得还原度达到了90%,实景效果要比效果图还要好!现在大家和乐助手一起来看一下整个装修过程和装修效果吧(悄悄话:小编告诉你哦,这套案例实景效果的视频过年期间会在苏州电视台《第一时间》播出),大家可以对比一下设计效果与实景效果之间的还原度哦)







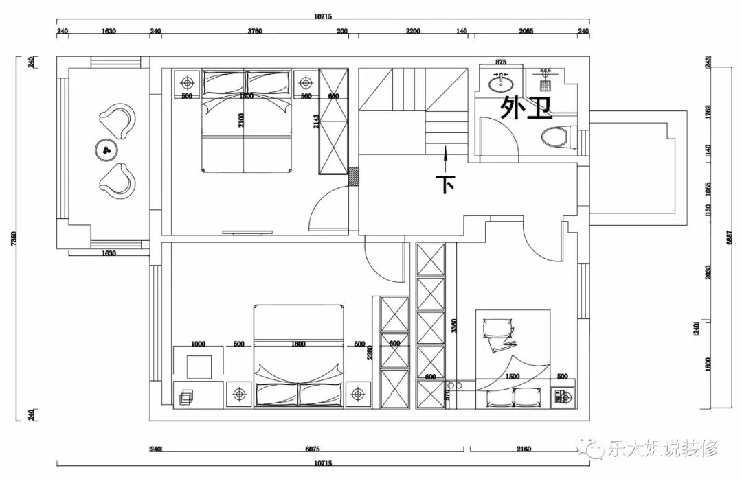
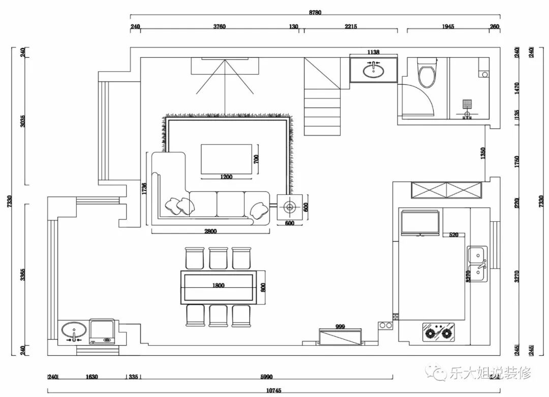
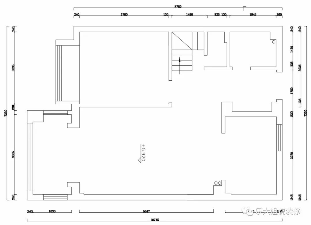
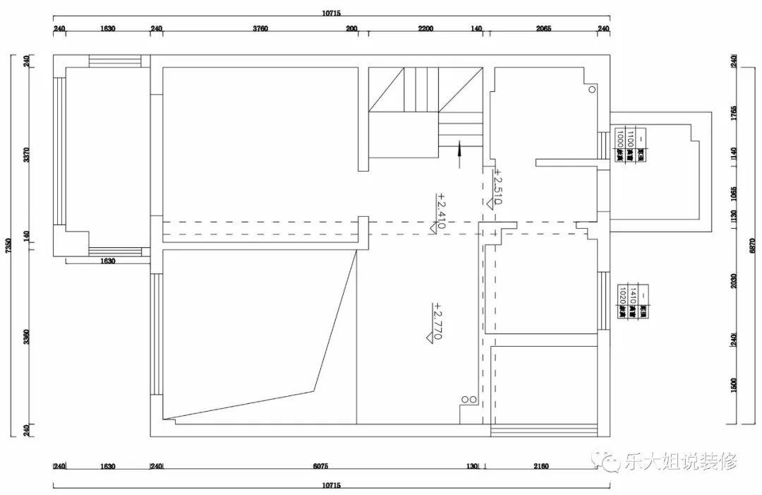
二楼改造后户型图

























如果您觉得乐大姐说的内容很有价值
欢迎分享转发至您的朋友圈
让更多的朋友都能轻松装修,自在生活!
当然,您也可以添加乐大姐微信号13382100888
或扫描下方的二维码
说出您的装修难题、让乐大姐为您答疑解惑
不管您是装修完工了
还是即将装修的
或者正在装修的
乐大姐一定知无不言,言无不尽




在看是一种鼓励|分享是最好支持
点击右下角 写留言 发表你的心声
我们期待与您的交流
长按二维码添加乐大姐微信号
装修不烦 大姐来谈