
乐大姐
FM104.8《家在苏州--乐大姐说装修》栏目特邀嘉宾,
赫博别墅设计创始人之一;
多次受邀成为院校家居的授课讲师;
98年至今,
为万千家庭打造幸福家居同时,也相互成为了好朋友。
任何与装修有关的问题,欢迎您添加乐大姐微信:13382102277,
乐大姐会为您做一对一解答。
Love Paradise陈慧琳 - sylish index
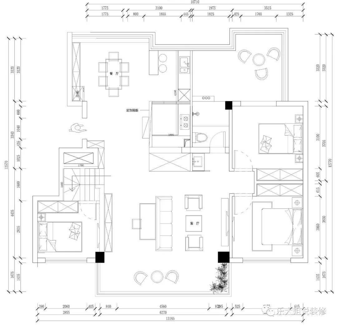
本案是父母准备给儿子的婚房,业主是苏州本地人,从事的是与装修相关工作,之前几次装修都是自己找人施工的,效果一般。因这次是给儿子准备的婚房,业主不敢自己来,想交给专业的团队才放心!业主是2018年12月份来找乐大姐团队定下装修,提前9个月保住价格不涨,省下一笔不少的费用!本案所有设计都是业主儿子与设计师在线沟通完成的,当时他还在当兵未归只给了个方向,其余全权交给乐大姐团队打造,给予了充分信任。功能方面,储藏空间越多越好;希望进门和客厅的位置尽量用储藏柜代替传统背景墙设计,用整体代替局部重点;楼上整体做了一个套间,让小夫妻两人充分享受独立空间。呼吸的整个过程,唯有保持吸气、吐气平衡,身体才能得到舒适。设计也是如此,冷与暖的适度调和,让空间达到最佳效果。有别于原始结构,乐大姐团队设计师根据业主的需求,打破紧凑的空间格局,打通客厅与阳台之间的隔断,让空间得到舒展,变得宽敞明亮;在客厅与书房的交界处则抛去繁复直接以开放式的沙发墙作为隔断,随性而自由。壁上灯带点亮重点区域,将整个空间润色,温情与浪漫缓缓漫延...
空间主色调为原木色调,抛光大理石纹理自然古朴,在光线的映照下呈现出自然美观的光泽。温润的木质饱有细腻的纹路,金属走边和隔断散发着轻奢感,低饱和度的色彩搭配,间以跳色加以调和,柔软与刚硬交错糅合。港式的轻奢与内敛,现代的简约与克制在这方寸之间缓缓展现。
电视背景墙墙面以纯色为主,加以金属走边,简单大气,家具光泽质感明显,色调温暖柔和,冷与暖之间适度调和,携手营造了这样的一片轻盈空间。
吊灯主灯、沙发、圆形茶几既有轻奢感,又有现代设计感,选用绿植、深色窗帘与其他软装搭配,点活了整个轻奢空间,久居也不会有单调乏味之感,只觉得淡妆浓抹总相宜。纱窗轻闭,闲时读书品茶,感受环境所带来的内心平和。

餐厅空间有限,但与客厅气息相通,如果用“延展”的思维去思考时,局限的空间也能有无限的表达,在设计这块区域的时候赋予了它更多的生活元素,功能上也更加健全。家具经过精挑细选,更贴近原始的质感。看似高冷的色泽当中,不乏自然的生活痕迹。


餐边柜兼具储物、展示的功能,给餐厅增加更多的灵动空间。阳光从长长的透明玻璃窗穿透而入,光影斑驳,交错其中,在虚与实之中发现并追逐生活的本质。
设计上将朝北靠近餐厅的一个小空间改造为西厨,同时将原厨房的开门改为玻璃移门,既避免出现暗室的格局,又有效地防止了中厨内油烟的外溢。这样整个厨房餐厅动线都很舒服,采光也增加了不少。对于喜爱烹饪的美食家来说,没有什么比同时拥有两个整洁明亮的厨房更让人满足的了。主卧的自然氛围得益于整体软装的搭配,木质地板、木色墙面的大背景,为整个空间打下沉稳的基调,地毯、主灯、床头板、床头灯现代感强烈,丰满整片空间,整体色系淡雅,低调而不失华贵。
在房子的整体布置中,每一件物品都是精心挑选的,不论色彩、材质、位置还是角度都需要设计师综合考虑到,在满足业主需求的条件下将空间美发挥到极致。

设计师对次卧进行了细腻的描绘,简洁的线条勾勒下填充原生态的纹理,展现出质感和温暖的力量。
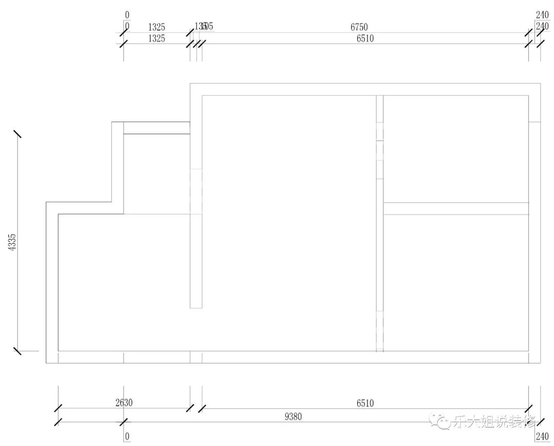
- 本案户型客厅是挑高空间,考虑到业主的整体需求,乐大姐团队设计师将挑高空间现浇做隔层处理,楼上作为主卧室使用,这样就可以增加主卧的功能需要,加大对主卧使用的舒适度,隐私性;
- 考虑到实用性,二楼增加卫生间,二楼空间更加独立性;
- 考虑到家庭人员结构,厨房餐厅全部外拓增加使用面积,阳台移门打通与客厅融合。

https://vr.justeasy.cn/view/7810351.html?from=timeline
如果您觉得乐大姐说的内容很有价值
欢迎分享转发至您的朋友圈
让更多的朋友都能轻松装修,自在生活!
当然,您也可以添加乐大姐微信号13382100888
或扫描下方的二维码
说出您的装修难题、让乐大姐为您答疑解惑
不管您是装修完工了
还是即将装修的
或者正在装修的
乐大姐一定知无不言,言无不尽
在看是一种鼓励|分享是最好支持
点击右下角 写留言 发表你的心声
我们期待与您的交流